Просторная квартира на ВДНХ
Авторские проекты дизайнеров.(Посты не по теме будут удаляться!)Доброго всем дня ) у меня накопились проекты поэтому буду выкладывать )

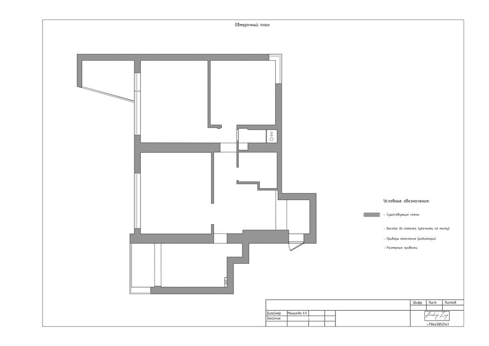
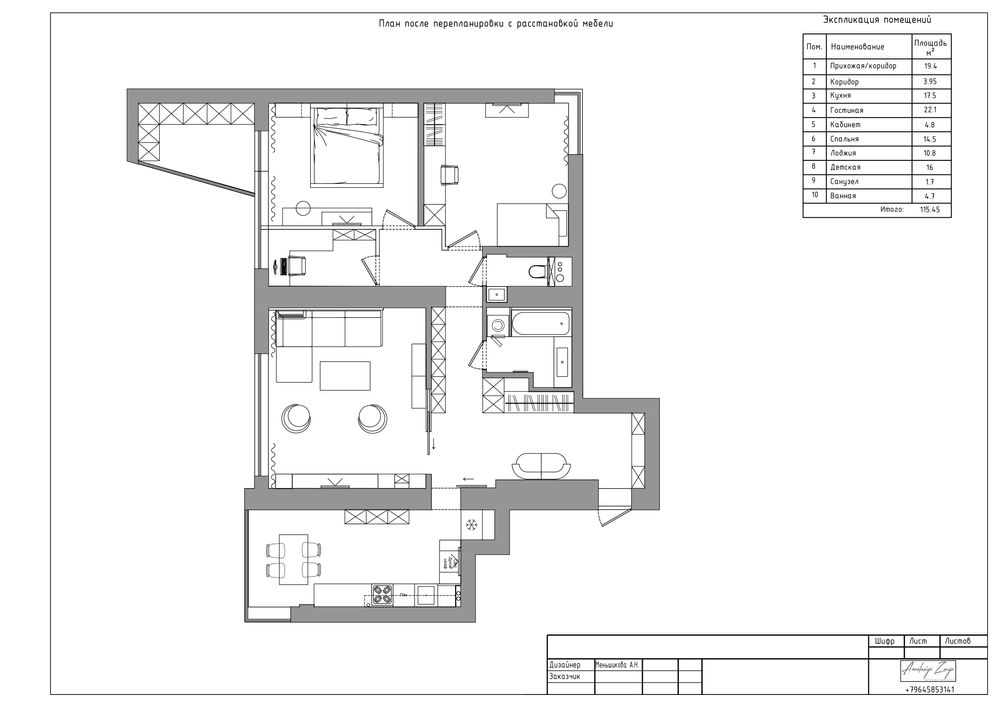
Данную квартиру разрабатывали для семьи из трех человек общая площадь квартиры составляет 115 м2
Квартира вторичка , с достаточно толстыми несущими стенами, что свойственно кирпичному дому , в таких домах очень хорошая шумоизоляция это явный плюс .
Одно из главных изменений в планировочном решении это было в спальне выделить рабочий кабинет или место .
То что имели по факту :

Итоговое планировочное решение :
На лоджии заказчики не хотели кабинет , только вариант гардеробной и вот что я предложила чтобы решить ситуацию .
Мы выделили отдельное помещение в спальне за счет смены оконного стеклопакета и увеличения импоста, что дало нам поставить перегородку в широкий импост
Я так рассчитала там секции окна чтобы и с внешней стороны это выглядело гармонично
Такое решение я как-то делала в другом проекте в 2018 году ссылка на проект

И вот такую красоту мы получили :
ПРИХОЖАЯ


Ранее она выглядела так , диванчик заказчики попросили сохранить с перетяжкой и заменой ножек .

ГОСТИНАЯ



Ранее она выглядела так

КУХНЯ
Вообще изначально у заказчиков был запрос на сохранение максимально кухни-это корпусов , столешницы , фурнитуры
Сразу скажу запросы такие обычно сложные в работе , так как и мебель уже не новая , после демонтажа , скорее всего ее не собрать в первоначальный вид и мебельщикам в подгонке новых фасадов тоже усложнение после монтажа старых корпусов , далее хранение огромной тяжелой столешницы и так нюансов очень много
НО нижнюю базу по конфигурации я сохранила с пеналами , изменив только верх , я его облегчила



Ранее она выглядела так

СПАЛЬНЯ



Ранее она выглядела так :

КАБИНЕТ который выделили из площади спальни


ДЕТСКАЯ для девочки



Ранее она выглядела так

ВАННАЯ


Как она выглядела ранее

САНУЗЕЛ


Как он выглядел ранее

Спасибо за внимание )
И я хочу напомнить что мы занимаемся не только полными дизайн-проектами ,а так же разрабатываем отдельно планировочное решение для вашей квартиры , дома и т.д .
Инстаграм Dekoza
Сайт Dekoza
tel: 8 964 585 31 41 WhatsApp
Работаем с любым гором России
Лучший ответ