Девочки, помогите определиться с кухней
Интерьерное решение кухниДевочки, какая планировка лучше. В варианте с островом, по второй стене все шкафы и холодильники высокие. Много хранения. В варианте со столом - кухня без верхних шкафов. Но просторно выглядит. Не знаю какой вариант выбрать. Помогите, пожалуйста , определиться


Лучший ответ
Julia Tim
Мне ни один не нравится... Непонятно, что вверху, а что внизу (вход на кухню? окно? выход на балкон?).
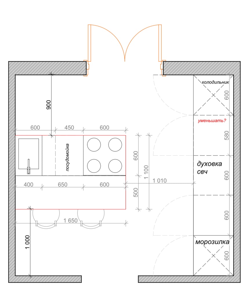
Я бы духовку и свч слелала рядом с варочной поверхностью. А холодильник рялом с морозилкой. И рабочей поверхности как-то маловато получается.
25.05.2025
Ответить
Julia Tim
Ein Sof, когда вход на кухню по центру, то очень мало места, чтобы удобно разместить технику и мебель. Мы дверь специально переносили в левый нижний угол. Тогда по правой стороне прекрасно помещаются духовка, свч, варочная и мойка. И ещё много места под рабочую поверхность остается, туда же и посудомойку.
У нас холодильник в верхнем левом углу стоит, а у окна - стол и стулья. Но у Вас выход на веранду, поэтому так не выйдет. Как вариант, по левой стороне поставить холодильник, морозилку и обеденный стол.
25.05.2025
Ответить
Виктория Лукьяненко
😅никакой бы не выбирала из этих, ни рабочей поверхности нет, и техника стоит не совсем удобно
25.05.2025
Ответить
Ксения
Посмотрите про правило рабочего треугольника, мне в обоих вариантах не понятно где рабочая зона
25.05.2025
Ответить
NG
Второй вариант вообще непонятный. Взял из холодильника и бежишь? Потом нужно в морозилку, и опять бежишь к раковине? Одна беготня с углами по пути. Нужно пожарить что-то, кто-то сидит тут же ест - вообще неудобно и небезопасно.
Морозилка маленькая предполагается? Не высокая? Холодильник вроде нельзя располагать рядом с духовкой... В первом варианте я бы не отказывалась от верхних шкафов, а то мест для хранения мало будет.
25.05.2025
Ответить
Ein Sof
NG, в варианте со столом да, морозилка маленькая под столешницу.
А в варианте с островом - на кухне мы максимум завтракаем. Обедаем и ужинаем за обеденным столом в гостиной. Поэтому решили может остров на кухне сделать.
Спасибо за мнение
25.05.2025
Ответить
NG
Ein Sof, раз кухня для готовки, то тем более не продумана для этих целей... А вам кто-то разрабатывает эту кухню или сами? Я бы ещё варианты рассмотрела, более эргономичные.
25.05.2025
Ответить
Ein Sof
NG, дизайнер нам рисует планировку. Но что-то мне ничего из этого не нравится. Может дизайнера поменять
25.05.2025
Ответить
Анна
Надо 10000 раз подумать, прежде чем совсем отказываться от верхних шкафов.
Я бы делала справа два шкафа колонны, куда уйдет морозилка над ней духовка + свч + вверху хранение, следом идет встроенный холодильник + наверху хранение. Можно и поменять местами.
Слева сделать углом. Этот угол хранение, затем мойка, затем посудомойка , затем плита под ней хранение и последний ящик с выдвижными ящиками ( вилки / ложки + хранение) . Стол около окна.
Получается не тянуть воду к окну. Скорее всего мокрая точка ближе к двери.
Сохранен рабочий треугольник, много рабочей поверхности и больше хранения. Размерами ящиков можно поиграть.
ну да, почти как ваш первый вариант.
ну да, почти как ваш первый вариант.
27.05.2025
Ответить
Анна
Анна, ой, прочла, что вверху выход на веранду. А я подумала это дверь. Значит зеркалим.
Около входа колонна и угол кухни, к окну и веранде стол
27.05.2025
Ответить
Татьяна Специалист по недвижимости
остров с водой и плитой около сидящих за столом имхо не удобно
в первом варианте не нравиться расположение духовки, вот вынули горячий противень и побежали через всю кухню
мойку и пмм тоже лучше поменять местами, так рабочая поверхность будет меньше биться
я бы взяла за основу вариант 1 и колонну с духовкой перенесла к основной линии, а морозилку перенесла к холодильнику,то есть там оставить две колонны и над морозилкой место для хранения
25.05.2025
Ответить
Julianna
По мне оба варианта не удобные. Второй вообще намудрили, типа модно, но совершенно не практично. На плите планируете готовить? во втором варианте плиту посередине кухни-это сильно)
25.05.2025
Ответить
Оставшиеся комментарии доступны после регистрации
Зарегистрируйтесь и получите полный доступ ко всем функциям сайта.