Выбор планировки
Интерьерное решение жилых помещений.Добрый день.
Планируем ремонт в двухкомнатной квартире. Стен сейчас нет, на свои местах остаются только вокруг санузлов, остальные можно переносить как угодно. Все стены планируются из ГКЛ, перегородки в спальнях и внешние стены будут с шумоизоляцией.
Начинать жить будем вдвоём, но рассчитываем в будущем на двух детей, поэтому строим планировку с учётом этого. Сейчас выбираем из двух вариантов планировки - один наш, второй начинающего дизайнера.
С одной стороны, в первом варианте как-будто бы больше площади используется под что-то полезное, с другой, возможно он будет более громоздким и мы недостаточно понимаем объёмы в виду отсутствия опыта. Поэтому прошу совета какой из вариантов лучше выбрать и можно ли что-то улучшить.
Прикладываю сами планировки. На них указаны доп. комментарии по некоторым местам.
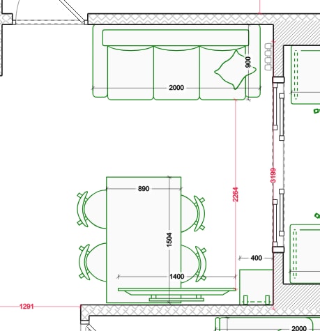
Первый вариант:

Второй вариант:

Лучший ответ
*Стены: пирог ГКЛ/ГКЛВ 2*12,5 + 75 каркас + звукопоглощающие плиты, например, "Rockwool Акустик Баттс" 50 + 27мм.
А вот так в чистоте:
Может быть что-то привлечет ваше внимание в таком варианте.
На стене плиты "Акуборд", а на полу и потолке самая тонкая рулонная изоляция "Tecsound". На полу она одновременно служит подложкой под финишное покрытие. Почему я еще предпочитаю ПГП, потому, что при правильной их укладке не нужна черновая отделка поверхности, можно сразу финишное покрытие. Это большая экономия сил и средств. На всех своих объектах я использую их, причем толщиной 80 мм, и нет никакого резонанса от стен. А это в чистоте:
И я не понимаю, что такое "мастер, занимающийся шумоизоляцией", вот честное слово). Чтобы сделать звукоизоляцию, специальный мастер вообще не нужен.