Помощь в расстановке мебели в 1-комн квартире для семьи из трех человек
Интерьерное решение жилых помещений.Здравствуйте. Есть ли здесь те, кто может помочь распределиться в пространстве в 1-комн квартире. Живет семья - папа, мама, дочка 3 лет. Пока смена жилплощади не планируется, поэтому хотелось бы максимально с пользой использовать то, что есть. У самой уже не складывается. Возможно есть начинающие дизайнеры, предоставляющие услуги за символическую плату. Готова рассмотреть.

Лучший ответ
Анна
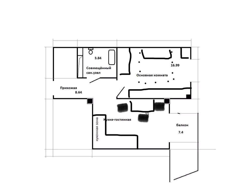
Чертеж непонятный. Площади на рисунке не пропорциональны написаным размерам, поэтому даже не получается собразить, как можно расставить что-либо.
Комната 11 метров изображена равной комнате 16,99, а прихожая 8,5 метров нарисована меньше, чем 4хметровый санузел.
Это застройщик так планировки начертил? Боюсь предположить, что он тогда настроит с таким подходим
06.10.2025
Ответить
Солнечная
Анна, да это не буду говорить кто срисовывал, но не я)))) Прикрепила план от застройщика.
06.10.2025
Ответить
Катерина
Елена0010, интересный вариант! Есть и спальня и детская комната и кухня с гостиной, вполне рабочая планировка. Главное освещение хорошо продумать или перегородки со стеклом, без дневного освещения половина квартиры
06.10.2025
Ответить
коала
Елена0010, вариант отличный, только у автора для него слишком маленькая площадь. Кухня-гостиная всего 11 квадратов. Если на спальню забрать 7, останется 4 на кухню или гостиную.
Я б не делила эти крошечные помещения еще больше, Вы просто не сможете пройти.
Кухню в левом нижнем углу, диван в правом верхнем, к нему стол, напротив тв.
В комнате кровать, детская кроватка, шкаф. Можно сделать складную кровать, которая прячется в шкаф. Это сильно сэкономит место
06.10.2025
Ответить
коала
коала,
У меня в кухне диван не влез, но по идее должен стать.
Точками - складная кровать, в сложенном виде под ней диван. Слева детская кроватка, справа стеллаж, снизу шкаф
У меня в кухне диван не влез, но по идее должен стать.
Точками - складная кровать, в сложенном виде под ней диван. Слева детская кроватка, справа стеллаж, снизу шкаф
06.10.2025
Ответить
Виктория
У нас подобная квартира. Кухня-гостиная 21 м и спальня 16. Покупалась и делали ремонт до рождения сына и детей вообще не планировали
Сейчас в ожидании большой квартиры сделали там ремонт: две спальни с окном и кухня-гостиная без окна (18 м вышла)
Напишите мне в личные сообщения я вам смогу скинуть фото или видео
19.10.2025
Ответить
Дарья
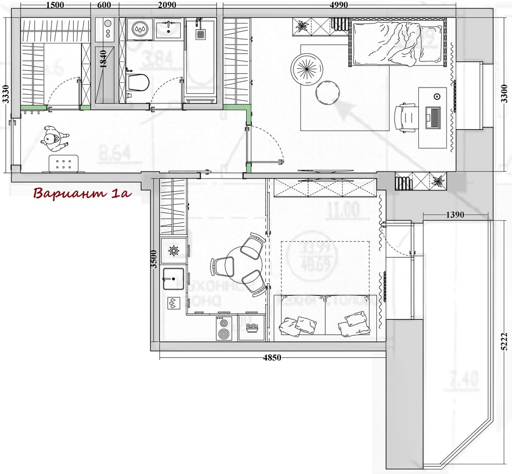
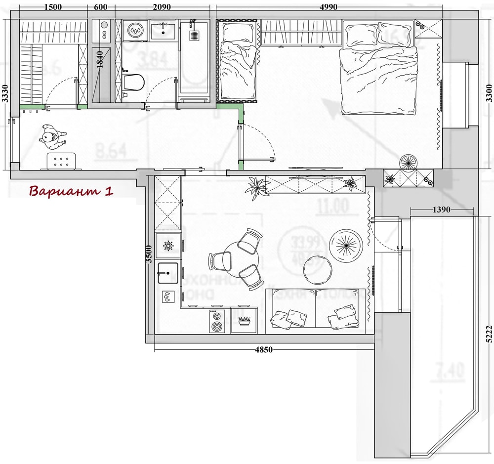
Солнечная, добрый день, у меня такие варианты с небольшой доработкой планировки получились: вар.№1 - «на сейчас»
и вар.№2 - «ближе к школе».
и вар.№2 - «ближе к школе».
08.10.2025
Ответить
Солнечная
Дарья, ой, как вы все хорошо изобразили, спасибо! А в первом варианте между кроватью родителей и ребенка там же по идее можно большой высокий шкаф поставить? и перегородка небольшая, и хранение.
И еще, может глупый вопрос))) во твором варианте получается уже комната отдельно для ребенка и там посередине круглое, это что?:)))) просто игровая зона обозначена?
09.10.2025
Ответить
Дарья
Солнечная, добрый день! Рада помочь!
Не стала бы делить комнату поперек шкафом, места мало, останутся минимальные ~ 60см проходы к кроватям. Можно организовать нишу под детскую кровать, закрыть плотной шторой, в дальнейшем, при желании/необходимости отдать комнату ребенку, перенести в нее шкаф = 180см.
Круглое в №2 - пуф (кресло-мешок) +столик, да, игровая зона.
В объеме/ цвете может быть так. В прихожей разместила настенную вешалку + узкую полку + зеркало+ пуф.
10.10.2025
Ответить
Солнечная
Дарья, оо, так вообще все великолепно складывается в моей голове))))) Если вас не затруднит сделать такой же эскиз для первого варианта, буду очень благодарна.
11.10.2025
Ответить
Elena
Может быть как-то так:
Если важно иметь какую-то общую зону, то там, где кровать родителей поставить диван. Гостей нет, диван разложен и 2 спальни. Гости пришли, диван собрали, и стала гостиная. Возможно, где-то должен храниться раскладной стол, который можно будет там поставить. А для ежедневных приемов пищи использовать небольшой в кухне, который соединен с самой кухней.
Если важно иметь какую-то общую зону, то там, где кровать родителей поставить диван. Гостей нет, диван разложен и 2 спальни. Гости пришли, диван собрали, и стала гостиная. Возможно, где-то должен храниться раскладной стол, который можно будет там поставить. А для ежедневных приемов пищи использовать небольшой в кухне, который соединен с самой кухней.
06.10.2025
Ответить
Мария
В комнату диван для родителей, для дочки кресло складное. Кухню, оставить кухней.
06.10.2025
Ответить
Еленка
Интересно, на плане визуально кухня меньше спальни. Может ошибка? 11 метров это в целом мало для к-г
06.10.2025
Ответить
Солнечная
Еленка, ну я вот прикрепила еще план от застройщика. Слышала сплетню что наша квартира изначально планировалась как студия, но в последний момент из неё сделали то что сделали))))
06.10.2025
Ответить
Фаина
Мы тут вам сейчас понасоветуем, конечно.
Но у вас на плане кухня-гостиная 11кв больше, чем комната 17кв.
06.10.2025
Ответить
может посмотреть в сторону такого варианта?
прихожая
су