Эх,хрущевка, да еще и однакомнатная,что с тобой сделать то?
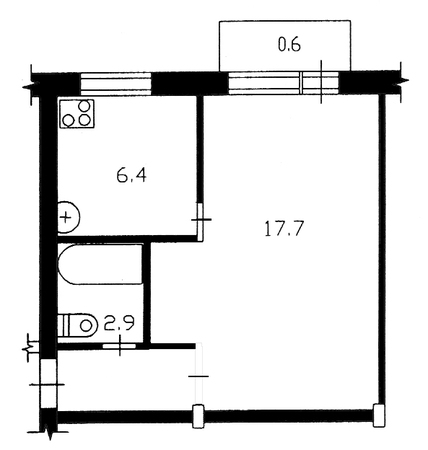
Вопросы и ответыВот не так давно перехали в СВОЮ квартиру,1 комн хрущевка...маленькая,но зато теперь мы живем отдельно от всех))Решили к лету преобразить наше скромное жилище,но все никак не можем что-нибудь стоящее придумать...перепланировку точно надо делать, может у кого есть похожая квартира и как вы ее изменили,интересно)))или может у кого возникли какие нить идеи глядя на этот рисуночек:

Лиля(Ману,Регина,Чоби и др Итал марки
мои знакомые сделаипримерно так же, как вам дала ссылку Анжела...они соединили корридор и кухню
11.02.2010
Ответить
Ксения
http://www.babyblog.ru/com/housedesign/325186
вот так у нас!квартира похожа,но ваша больше будет! как вы плнируете перепланировку делать? Мы ничего не перепланировали и я не жалею(думали совмещать кухню с комнатой),все таки комнатат одна и хоть на кухне можно отделиться от всех,а вообще с однокомнатной как ни крути,все равно получеться однокомнатная!
09.02.2010
Ответить
Tanya
...
картинка почему-то загружается в плохом качестве...
могу на почту выслать
...
картинка почему-то загружается в плохом качестве...
могу на почту выслать
09.02.2010
Ответить
Tanya
я бы не советовала в прихожей отказываться от кладовки, она же в будущем может выполнить роль шкафа для одежды
09.02.2010
Ответить
Evgenia
вместо нее конечно можно сделать шкаф,но хотелось бы вообще это пространство освободить...
09.02.2010
Ответить
Tanya
а вещи куда? особенно зимние?шубы там...очень некрасиво смотрится когда они просто висят
09.02.2010
Ответить
Evgenia
шкаф конечно нужен,но много мета занимает, может обойдемся и без него если моя мама приютит наши вещи у себя на 100 квадратах...
09.02.2010
Ответить
♥ღஐ♥RadistKKat♥ღஐ♥
у нас по всему коридору шкаф-купе на заказ, меньшей глубиной - вся одежда и все там. БЫла открытая прихолжая - жуть честно было, даже если держать только сегоднешнюю НО зимнюю одежду.
09.02.2010
Ответить
Evgenia
надо просто по обстановке судить, просто мне кажется,что эта часть квартиры и так слишком маленькая для впихивания шкафа...
09.02.2010
Ответить
Tanya
вы получили то, что я вам выслала? посмотрите: главное грамотно всё разместить...впихнуть можно всё (в разумных количествах канеш)
09.02.2010
Ответить
♥ღஐ♥RadistKKat♥ღஐ♥
Вот вот и у меня такая же, но без балкона и кладоски.
В ванной в том году мы сделали перепланировку. Было как у тебя на рисунке и раковина между унитазом и ванной, нависая над ванной и напротив унитаза машинка стиральная была с верхней загрузкой. Седлали так - влевом углу кабинка душевая с высоким подонном (то есть реебнку есть где плескаться) потом вправо от нее узкая стиралка стоит и смотрит люком на дверь, унитаз остался где был и над ним шкаф навесной, а напротив унитаза раковина, зеракало и тумба под мойку. Я в шоке от того как стало просторно))). Вся химия и т.п. в шкафу над унитазом и еще за унитазом полочка спряталась - гипсокартоном над турбами сделали и с люком и плиткой закрыли.
В коридоре длинный шкаф купе в том году поставили, была прихожая до этого простая, так ВСЕ там и хранится и дверка большая с зеркалом шире кажется. Вот этот странный проходик комната-кухня мы обыграли гипсокартоном уже давно (потолок) и там лишь комодик стоит высокий с детскими вещами, в комнате ничего не переделывали - но чую потом и до нее доберусь.
Кухню вот сейчас новую буду делеть, но у меня минус, там где у тебя плита у меня газовая колонка и из-за этого холодильник прям слева от двери стоит(((((((( - голову всю сломала как что поставить, думаю еще помучаюсь неедльки 2 и начну ремонт, так как кухню уже выбрала.
09.02.2010
Ответить
Evgenia
спасибо за подродное описание)))нам тоже надо ванную переделывать,места вообще не хватает((у нас там раковины нет, а напротив стены,где унитаз стоит стиралка,но она у нас не очень то и узкая...45 см,видела некоторые ванную расширяют за счет зала...но это уж совсем грандиозно...
09.02.2010
Ответить
♥ღஐ♥RadistKKat♥ღஐ♥
Уже посмотрела вашу кухню и завидую)))) и батарея у вас под окном - у нас там ледянной холодильник - удобно для банок, но из-за этого батарея там где у вас таьбуретка... Колонку думали переносить но не получится, так как там по среди кухни дымоход и еще дверка отдельная чистить его((((( - то есть всего шкафа можно вешать а дальше красиво "ВСЕ ЭТО ДОБРО" обыгрывать... Да и газавщиков спрашивали, когда у нас трубы меняли, отказали. Сказав что надо проект новый утверждать и потом ЕСЛИ РАЗРЕШАТЬ они сделают... По сему плюнула((((
09.02.2010
Ответить
Ксения
у нас тоже было так же и тоже никак не становилось все,только холодильник если сразу слева от входа или уже в прихожую,но у меня это вообще не увязывалось все в голове,поэтому и пренесли и никакго проэкта не делалаи,втихую сделали и все,и если внимательно посмотрите,то там у нас вообще "до" были лианы из труб газовых,но пришел хороший мастер и всю это красоту спрятал,а после этого намм уже сто раз газовщики приходили и никто и слова не сказал,что у нас не правльно что то (ттт),так что ищите хорошего мастера!И дверца чистить и тфгу проверять у нас тоже чуть за холодильник заходит,а вытяжная труба из колонки длиновата(ну и что),зато все стоит так ,как мне нравится!!!
09.02.2010
Ответить
♥ღஐ♥RadistKKat♥ღஐ♥
Ну может у вас все таку просто, у нас с ГАЗОМ темболее ВСЕ узаконивать надо. Частные фирмы которые и колонки устанавливают, сразу предупреждают что лицензии на переделку не имеют и все лишь по закону. Так что мне честно это муторно все по закону делать...
09.02.2010
Ответить
Ксения
да по закону,это не точ то муторно,это просто пипец!!! просто попался нам хороший мастер,котороый 15 лет в жеке отработал и все это знает,вот и сделал нам хорошо!!!А расстояние у вас от колонки до стены большое??? может быть узкий холодильник влезет?
09.02.2010
Ответить
♥ღஐ♥RadistKKat♥ღஐ♥
гггыыыы 20 см)))) у нас мосгаз за это отвечает, жек отношения к этому не ммеет увы...
09.02.2010
Ответить
Ксения
лиан нет на фото,т.к. фото с уже поменяной колонкой,но видно пятно прямоугольное(с синей краской)по центру - вот это и была колонка старая там,а к ней сто труб и все по стене-кошмар как вспомню....
09.02.2010
Ответить
Марьям - детский коуч
Женя, можно свою идею вставлю? правда я не архитектор, и никогда не планировала квратиры) но люблю когда квартиры хорошо сделаны)
Мое видение: кладовку бы убрала! или продлила бы стену до конца (в два раза уже, чм сейчас): там можно сделать гардеробную - и запихать все шкаффы и ненужные вещи туда (ну просто мой фетиш - гардеробная)))
Стену между кухней и комнатой сломала бы - если не несущая. Поставить встроенную технику, и отделить кухню от комнаты - различными уровнями на потолке (+точечный свет), и разными напольными покрытиями. Т.е. стол на кухне (хороший и стулья со спинками) - когда вы кушаете превращается обеденный, а когда не кушаете - играет свою роль в зале: почитать книги, пописать чего-нить, поставить ноут и т.д
у стены рядом с гардеробной - можно поставить кровать или диван (на чем вы спите) справа между кроватью и ТВ - детский уголок (кроватка и что еще есть - вещи и так уже в гардеробной) Для компьютерного стола место не осталось
.
или еще можно так: если диван и не большой, то посреди комнаты, у стены - комп.стол, а у стенки справа - детский уголок.
На большее у меня фантазии не хватает...
.
или еще можно так: если диван и не большой, то посреди комнаты, у стены - комп.стол, а у стенки справа - детский уголок.
На большее у меня фантазии не хватает...
09.02.2010
Ответить
Evgenia
спасибо за идеи)))про гардеробную я б и не подумала))хотя и вещей у нас хоть отбавляй))на счет сноса стены мы тоже думали,если это можно будет согласовать,то возможно и сломаем,просто не хотелось общее пространство делать,иногда надо иметь закрытое помещение типа кухни,когда ребь спит...а вот идея со столом мне вообще понравилась)),мы еще планируем мой комп стол в два раза урезать или продать нафиг(заказывали по инд размерам,но он огромный...)и вот на счет цвет гаммы есть определенные наметки - бежево-венге-белый+зеленый ввиде цветов))
09.02.2010
Ответить
♥ღஐ♥RadistKKat♥ღஐ♥
Да Да Да именно на кухне когда деть спит я и спасаюсь, закрыв дверь, плюс телик вечер во время сна тоже там смотрим, так что я всеми руками в этом случае за отдельную кухню с дверью. Комп раньше стоял у кровати, столик сейчас на дачу отвезли и купили ноут и он "живет" на кухне теперь - подоконник/стол, опять же удобно когда деть спит и не мешать ему.
09.02.2010
Ответить
Evgenia
+100))а вот у меня хоть и ноут,но для него стол я (почему то) захотела большой,чтоб еще мфу вошло...вот и стоит теперь эта гробина, что на меня тогда нашло,когда я по размерам заказывала?...у нас еще же это угловая-там окно маленькое напротив стены, а у вас есть?просто на рисунке окна почему то нет...
09.02.2010
Ответить
♥ღஐ♥RadistKKat♥ღஐ♥
Не поняла окно где - комната, кухня??? у меня не угловая окна как у тебя на рисунке первом - балкон только и комната 18,5 видимо за счет не имения кладовки. А окошко в ванной смотровое было хаделали его его в пору первого ремонта)))
09.02.2010
Ответить
Evgenia
окно напотив той стены за которой кухня, у нас окошечка в ванной нет,думаем тоже сделать))
09.02.2010
Ответить
Evgenia
да я тоже тешу себя мыслью,что переедм лет так через 5,но т.к. мы пока в этой кв. надо ее ремонтировать,купили и так в состоянии уд., кладовку убрать однозначно,мысль одна есть по перекрытию двери на кухню и продолбливании проема в стене...а вот что еще?...
09.02.2010
Ответить
Evgenia
дааа,мебель для такой мини-квартиры надо подбирать,но я не жалуюсь,у меня муж-мебельщик,диван сделал)))
09.02.2010
Ответить
