Aнастасия @archi.larionova
Готовый эскизник (совершенно такой же как на картинке) - 4500.
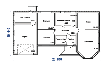
№5 - 186 м.кв.
№1 - чуть позже.
Если вы из Белгорода, то в главном посте написан мой телефон.
№1 - чуть позже.
Если вы из Белгорода, то в главном посте написан мой телефон.
12.09.2012
Ответить
Aнастасия @archi.larionova
162,88 м.кв с гаражем.
План добавила.
Готовый эскизный проект (без переделок) = 4500 руб
Готовый рабочий проект (без переделок) = 17 000 руб (АР, КЖ1,КЖ2, КД)
Материалы: фундамент ленточный монолитный, цоколь монолитный облицованный кирпичем, стены керамзитоблок + утеплитель + облицовочный кирпич, перегородки кирпичные.
В подборку коттеджей с разных сайтов добавила новые коттеджи, похожие по виду и планировке. Облицовку можно любую. ссылка
30.04.2012
Ответить
Aнастасия @archi.larionova
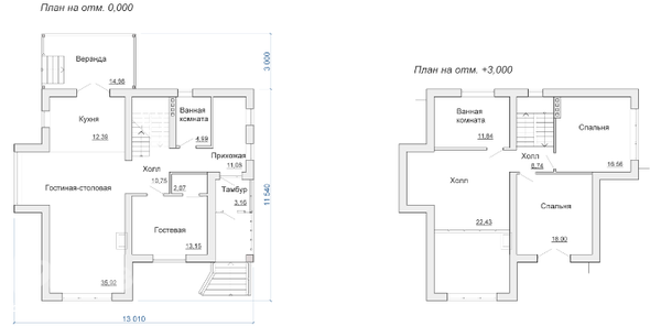
Именно этот проект без переделок 4500. Планировку добавила.
16.04.2012
Ответить
Лапкатапка
4 миллиона-правильно...а что входит-работа рабочих и материалы...или что
16.04.2012
Ответить
Aнастасия @archi.larionova
эм.....какие такие 4 миллиона? 4 500 руб за эскизный проект + пересылка, если нет возможности личной встречи. Именно этот. Т.к. он готовый. За изменения в этом проете или другой проект - цена, естественно, выше. Рабочий проект - тоже отдельная цена.
А сколько он обошелся заказчикам...не знаю. Т.к. такие вещи мне не сообщют - сколько денег у них ушло на постройку. Я только проектирую.
17.04.2012
Ответить
Aнастасия @archi.larionova
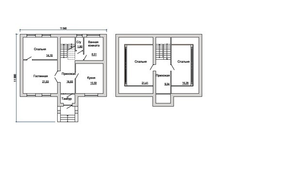
Второй домик с гаражем, просто это вид с двух сторон. Планы выставила.
20.03.2012
Ответить










