Елена
ДУ! Настя,собираемя построить дом для сезонного проживания,но не просто садовый домик,т.е. с коммуникациями и т.п. Участок-35м*24м (8,4сот)Расположение-24м-это боковые стороны участка. Наверное мансандрового типа,т.к. у нас в семье 5чел-мы +семья сына,поэтому минимум 2 спальни нужны. Скважина будет для воды(мин60м).Проект можите предложить? без гаража, с выходом на 2 стороны. Нравится типа №7 и чердак ,где можно гостевую оборудовать http://www.babyblog.ru/community/post/Kottage/1696105#commentsСпасибо
02.03.2014
Ответить
Arina
хорошие домики. единственное в первых 5 входной узел можно решить более функционально, а все остальное здорово
21.03.2013
Ответить
Aнастасия @archi.larionova
Заказчики не всегда прислушиваются к советам. Иногда им просто хочется и все. А раз это не угрожает жизни и здоровью, то я делаю то, что они хотят. Мое дело - предложить и объяснить как экономнее или более функционально. Хотят - хорошо, не хотят - их право. Я хоть и сама инженер-архитектор, но свой дом тоже не делала абсолютно функциональным, экономичным и "правильным". Иногда просто хочется сделать ТАК и не иначе.
21.03.2013
Ответить
Arina
да с заказчиками порой не легко договориться,они чаще всего понимают уже после того как одежду весить некуда или тесно в коридоре
21.03.2013
Ответить
Aнастасия @archi.larionova
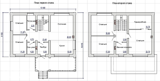
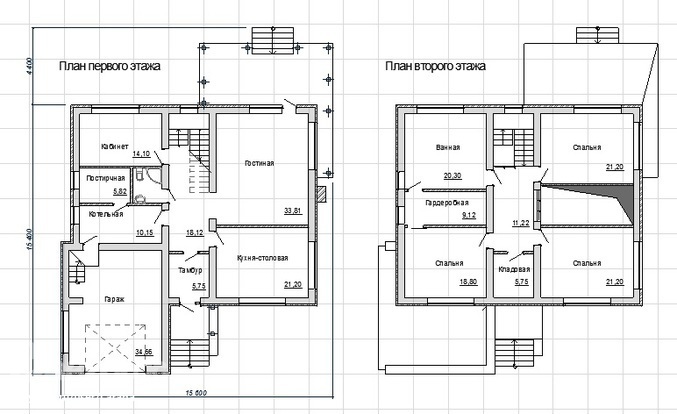
И для тех, кто будет смотреть, чтобы знали о чем речь:
обычно, более экономично и правильно все помещения типа "кухня, топочная, с/у, постирочная" и т.д. совмещать в один узел. Экономия на вентиляции, водоотведении и канализации. Но это не закон.
Часто бывает так, что такой узел просто не вписывается в заданные рамки. Или по расположению не устраивает заказчика. Ситуации всегда разные и индивидуальны. Никакие стандарты это не нарушает.
Данные коттеджи выполнены максимально функционально в заданных рамках.
21.03.2013
Ответить
Светлана
Анастасия а Вы занимаетесь только проектом?понравился дом на стр.5 сколько стоят Ваши услуги?
25.06.2013
Ответить
Aнастасия @archi.larionova
http://www.babyblog.ru/community/post/Kottage/1697597
В смысле "только проектом"?)
30.06.2013
Ответить











