расстановка мебели в детской
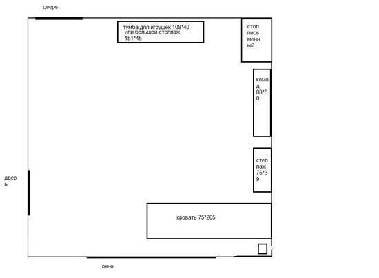
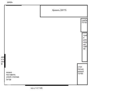
Вопросы и ответывот придумала 2 варианта. отличаются в принципе только тем, где будет стоять кровть. по размерам все подходит. но немного все в притык. а если уменьшить колличество мебели- вдруг игрушки не куда будет сложить. короче посмотрите и подскажите, пожалуйста.


ну вот прерно так. как вам кажется.лучше чтоб кровать у стены или у окна? когда у окна- мне кажется. больше игрового места.
а мебель вот примерно такая, пока что. мне пока это по душе.


Ольга. Оформление праздников 8 925 353 39 71
эта мебель фирбы гербор холдинг если не ошибаюсь? не советую ее - не качественная она у них...
16.03.2012
Ответить
Нина
вот не знаю точно,что за фирма((но я уже все ранво другую присматриваю))спасибо за совет))
16.03.2012
Ответить
Леля
Я думаю второй вариант, т.к.
1. кровать не у окна
2. стол письменный близко к окну-хороший дневной свет
3. кровать не напротив входной двери
4. тумба для игрушек в центре-много место в середине комнаты для игр
02.02.2012
Ответить
Нина
да, видимо то, что приходит первым на ум всегда лучше))))это вариант как раз и был первым)))
02.02.2012
Ответить
Марина
Поставьте тумбу или стеллаж слева от окна, рядом с дверью.
Кровать как на втором рисунке, стол под окно, так больше солнца будет. А игровая зона посередине будет. А уж какую-нибудь кухоньку уж найдете куда приткнуть.
31.01.2012
Ответить
Inga
Не ставьте кровать у окна (поддувать может, окно не откроешь для проветривания, встанет на кровати и не дай Бог полезет открывать или игрухой долбанет, или прыгать на кровати начнет, а рядом окно)... Так что однозначно второй вариант =)
31.01.2012
Ответить
Нина
ну насчет безопасности- это точно не проблема)))окно ей не открыть никак.да и если ставить кровать у окна, то она будет не совсем у окна. спасибо за совет)) скорее если поставить стол у окна - она на него залезет))но все равно не открыть окно.и взрослому то тяжело открыть, да и открывается всего щелочка.окна там не простые)))
31.01.2012
Ответить
Нина
а мне как то жалко. к окну будет вообще не подойти.я туда хочу поставить Полину кухню.а то её тож куда то надо ставить)))
31.01.2012
Ответить
Нина
ну да. стол гораздо меньше окна.окно большое и почти до пола. блин этих игрушек куча.куда их девать все. коляски эти.самокаты, кухня. хорошо хоть шкаф для одежды не нужен.можно стеллаж поставить для игрушек
31.01.2012
Ответить
Екатерина
да согласна, потому что свет должен падать слева. В первом варианте его там вообще нет, а во втором варианте он падает справа из-за спины
31.01.2012
Ответить
