Стоит ли делать перепланировку?
Перепланировки стен. Согласование перепланировки квартир и нежилых помещений.Девушки, доброе утро! На ББ я уже очень давно, а вот в этом сообществе совсем недавно, раньше не было надобности, живём 10 лет в общаге, какие тут уж перепланировки и дизайн. А недавно мы осуществили нашу заветную мечту - купили квартирку, 2-шку на большую не хватало средств, а теперь вот думаем - есть один ребёнок будет второй (планируем), как мы там все разместимся? Вот и хотим сделать небольшую перепланировку, как вы думаете ?
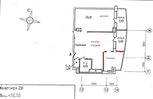
Вот так есть
Вот так приблизительно хотим сделать 
Как вы думаете удобна ли такая кухня совмещенная с гостиной? Я уже ничего не пойму, может оставить так как есть? Спасибо.
Aleksandra www.aleks-design.ru
Анна, добрый день! Позволю повторить здесь в топике свой вариант, который считаю оптимальным.


04.11.2012
Ответить
татьяна
Я бы разбила зал на : зал без окон( или слуховое сделать) и детскую с балконом и окном.Балкон можно утеплить и будет плюс к детской. Или зал и спальню для родителей.14 и 12 метров вполне нормально.
27.10.2012
Ответить
Анни
Спасибо за комент! Мы думали сделать почти так же ка Вы пишите, только вместо детской с гостинной соеденить спальню для родителей, только надо теперь придумать как дизайнерски раздельть красиво две зоны.
27.10.2012
Ответить
Яюшка
Вам удастся получить разрешение на удаление половины наружной стены в бывшей кухне??
27.10.2012
Ответить
Анни
Видела в живую такую перепланировку, хозяивам удалось получить разрешение, значит и у меня получится! Там стена не несущая думаю проблем не будет.
27.10.2012
Ответить
Анни
Видела в живую такую перепланировку, почему и захотелось самой реализовать, там батарея была вынесена за внешнюю стену, т.е. на балкон, может и не нельзя я не спорю, просто пока только думаю стоит ли вообще заморачиваться с такой перепланировкой.
27.10.2012
Ответить
Яюшка
Сейчас за правильностью планировок и перепланировок бдят и будут бдить ещё более старательно, тем более за изменением в системах отопления. Но это у нас .в России, как там у вас в Украине, не знаю. .
27.10.2012
Ответить
Oksana
Я бы не стала делать перепланировку. По крайней мере, такую (без обид).
На верхней схеме я вижу довольно-таки большую кухню, 14-ти метровую спальню родителей (где в первое время может стоять детская кроватка следующего малыша) и огромную детскую!! Сперва детская только для сына, а потом и для двух детишек. В прихожей я бы снесла только одну маленькую стенку кладовки. И поставила бы длинный зеркальный шкаф от входной двери до большой комнаты (с отделениями для верхней одежды, коробок с обувью не по сезону, для пылесоса, гладильной доски, гостевых подушек-одеял и пр.).
Как-то давно я была в гостях у приятеля моего мужа. У него трёхкомнатная квартира, но комнатки маленькие-маленькие, потолки низенькие-низенькие, НО! Квартира кажется большой из-за того, что стены в комнатах оклеены светлыми обоями, а главное - в комнатках нет шкафов. Совсем. Шкафы хозяин сделал собственными руками и разместил их в прихожей. Я даже сразу и не заметила, что одна стена в прихожей - это длинный ряд неглубоких шкафов и шкафчиков. Очень здорово получилось. В одном из промежутков этих беленьких шкафчиков была незаметная белая дверца - дверь в объединенный хозяином санузел!
Если все как следует продумать, обыграть правильными цветами и мебелью, то визуально квартиру можно сделать очень большой и уютной.
Жаль, что у меня нет дизайнерского таланта, а то бы я уххх......
27.10.2012
Ответить
Анни
Спасибо! Какие обиды мне очень понравилось Ваше мнение, я тоже против загруженности шкафами, была мысль у меня, чтобы сделать в большой комнате вдоль одной стены (которая за кладовкой) огромный шкаф купе под потолок с зеркальными дверями и всё, этого для вещей я думаю хватило бы. Плюс шкаф купе в прихожей. Я просто не могу представить где я буду принимать гостей, вроде ни в детскую ни в спальню не приведёшь? на кухне? Хотя мысль о кухне-гостинной с угловым диваном тоже была.
27.10.2012
Ответить
Oksana
Ндааа.... с гостями затык.... у самой такая же ситуация... под праздники использую комнату сына, благо она не завалена игрушками (а только всякими проводочками, паяльниками и другим радиотехническим хламом)
Спальня у вас для приёма гостей отпадает точно... Что остается? Кухня и детская. Детский праздник, гости детей - в детской комнате стол! Взрослый праздник, взрослые гости - милости просим в кухню-гостиную :-)
Наверное как-то так.... 

27.10.2012
Ответить
Oksana
В детскую, однозначно! Сынулю на ночь к себе, а гостей на надувной матрац (так они уж точно не задержатся надолго) 

27.10.2012
Ответить
Анни
Класс, я бы не додуиалась до такого, чесно! Я согласна, что к себе в спальню, даже любимых родителей ну никак... Надувной матрас есть 

27.10.2012
Ответить
Снежана
А обычно где гости тусуютс? У нас так всегда на кухне сидим, а с близкими подругами в спальне на кровати валяемся. Гостиная ащще никчемноеместо :)
29.10.2012
Ответить
Снежана
Вот я точно так же все увидела: спальня 14 м, отличную кухню и большую детскую :)
29.10.2012
Ответить
Екатерина
я бы так не делала, если у вас кухня и так 12 м. просто присоедените к ней балкон и будет вам кухня - гостинная, в маленькой спальне тоже можно так сделать и будет возможность разделить ее на зоны, что бы и для второго в будущем был свой угол. Или наоборот большую комнату так сделать.
27.10.2012
Ответить
Анни
Спасибо! На счет большой кухни-гостинной тоже думаем, это наш запасной план.

27.10.2012
Ответить
