Зефир
Итак, еще одна планировка и эскиз из благотворительных.

Запрос звучал так:
"Дом монолит-кирпич,проживать будут 2-е взрослых и 2-е дочки 4,5 года(двойняшки).
Немного расширить туалет и ванную, часть бОльшей комнаты присоединить к кухне, метров 15 отдать для детской, в коридоре хочу гардеробную.
Балкон поделить на пополам и присоединить к кухне и спальне."
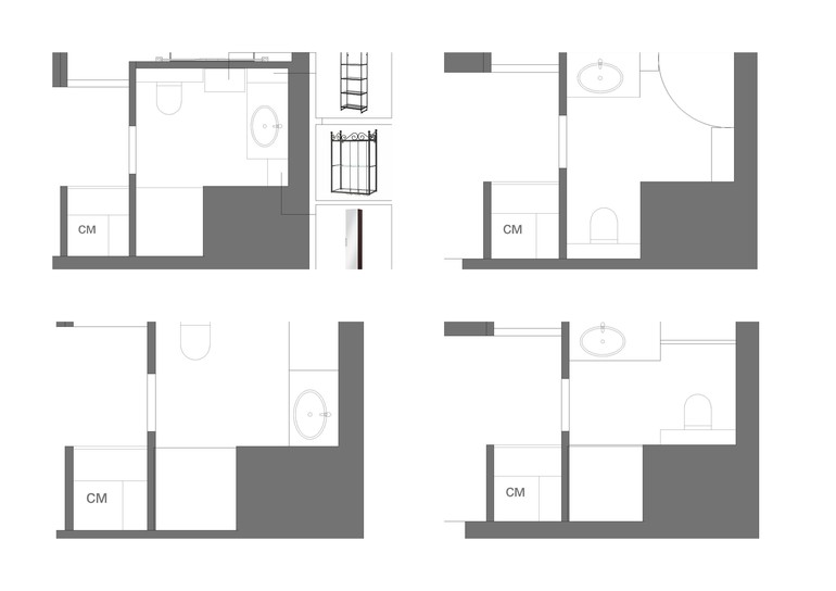
План квартиры:

Мое решение:

Тут еще заказчица решила поменять ванную на душевую, искали варианты.

Еще попросили сделать детскую.
Для девчушек хочется чего-то нежного, воздушного... Как зефир))

Счастья в новом доме и легкого ремонта этой семье!))
Александра Панькова
Изначально там неудобный узел с ванной в прихожей- с ним пришлось помучится. А вот большой коридор и 2 окна в комнате - это да, большой плюс))
18.03.2014
Ответить
Elena
Думаю, это было от того, что заказчица просто пока не решила что именно хочет: ванну или душевую... ;-)Очень все лаконично...
18.03.2014
Ответить
Наталья
А самая первая картинка, шкафчик с полками. Это чье производство. Спасибо!Сочетание бирюзы белого и розового мне очень нравится!
14.03.2014
Ответить
Александра Панькова
Это Икея, серия Хесквик для детской. Сегодня почему-то не нашла на сайте ее, возможно сняли с производства.
14.03.2014
Ответить
Инна
Саша, интерьер сказка)))) Слов нет просто!!! Подскажите пожалуйста что за обои? Спасибо!
12.03.2014
Ответить
Мария
Сашенька! не было ни одного коллажа, который бы мне не понравился! Вы большая умница :)
12.03.2014
Ответить
Анна
Приятная палитра! Замечательный коллаж! Жаль, вовремя не увидела объявление о бесплатных проектах)Нужно в гостиной ремонт делать)
12.03.2014
Ответить
Анна
Просто невероятно красиво! Подскажите пожалуйста, что за обои с цветами и птицами и что за покрытие на полу?
12.03.2014
Ответить
Александра Панькова
Спасибо за отзыв))Обои Isabelle Blue Wallpaper by Monsoon На пол я бы доску положила, а что выберут хозяева - не знаю.
12.03.2014
Ответить
Анютка
Александра, очень красиво получилось! Подскажите, пожалуйста, что за стол для девочек?
12.03.2014
Ответить
Александра Панькова
Спасибо))Это икея. Можно Выбрать любую столешницу и ножки, и тумбочки))
12.03.2014
Ответить
Оставшиеся комментарии доступны после регистрации
Зарегистрируйтесь и получите полный доступ ко всем функциям сайта.