Дизайн проект от идеи до воплощения.
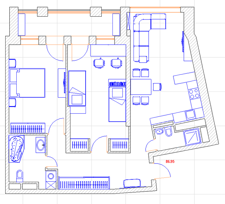
Всем добрый день, начала новый проект - ЖК "Маршал". Квартира 2-х комнатная, проживает семья с маленькой дочкой. Балкон на кухне присоединяем и тем самым увеличиваем площадь, т.к. в помещении и кухня, и гостиная.Пока сделано 2 комнаты, детская в процессе и это сиреневый, ну вот уж не знаю что делать с Заказчиком
Если говорить откровенно, то очень хочется добавить немного цвета в то, что получилось, НО.... клиент всегда прав!
мой сайт:http://www.dizdom.ru
контакт: http://vk.com/design_for_house










Надежда (детская одежда и шапочки для девочек)
ДД! Подскажите а что за плитка коричневая на кухне!!!???Заранее спасибо.
17.06.2015
Ответить
ВикторияДизайн
Татьяна,а что это за панели на стене в спальне?дорогое это удовольствие?
26.04.2014
Ответить
Татьяна (дизайнер интерьеров)
Я их планирую сделать из шпона, сколько это будет стоить на данный момент не знаю, но можно взять эко шпон или любой похожий материал, хотя последнее внешне будет не совсем похоже.
26.04.2014
Ответить
Юлия
хорошо, спокойно и красиво. Но вот хозяйка явно замучается с каждой "волны" на тумбочке и стенке под ТВ пыль протирать )
25.04.2014
Ответить
Татьяна (дизайнер интерьеров)
Тумбочка Ebon, отделка белый глянцевый лак glossy white №27 cat. C, топ стекло, арт. CZ.BST.CZ.308 продается в NEOPOLISCASA, но думаю что их много кто продает, почти все салоны мебели.
25.04.2014
Ответить
Elena
Иногда очень хочется дома иметь спокойный интерьер. Все подобрано очень лаконично.Единственное, что я бы (для себя) изменила: душ сделали бы в туалете при входе, а на месте душа в ванной разместила бы хозяйственную комнатку со стиральной машиной.Я бы так сделала из практичности и возможности принять душ/ванну одновременно двум разным людям.
25.04.2014
Ответить
Татьяна (дизайнер интерьеров)
Там нет места, глубина всего 550, и то я 100 украла у кухни, что не разрешено, но этого никто не заметит;))
25.04.2014
Ответить
Elena
А как было бы удобно :-).Я просто посмотрела, что на исходном плане вход в кухню идет перпендикулярно к стене напротив, образуя тупой угол с линией воздуховода. Интересно, если душевую делать неправильной трапецевидной формы, то можно было бы разместить? Душ крепить к стенке 55, а помывочное место там, где расширение?Но это уже просто размышления ;-)
25.04.2014
Ответить
Татьяна (дизайнер интерьеров)
Да какой формы не делай все равно мужчина не войдет, идея то была такая, хотели сделать вот так. 

25.04.2014
Ответить
Elena
Да, тоже интересный вариант :-).Хорошая работа, Татьяна!С удовольствием познакомилась с вашим сайтом! Взяла себе на заметку ;-).
25.04.2014
Ответить
Татьяна (дизайнер интерьеров)
Пытались сделать планировку с перспективой, но потом от нее отказались.
26.04.2014
Ответить
Надя
Ой, а можно узнать, в спальне кондиционер висит на стене гардеробной, а куда осуществляется вывод горячего воздуха? Нам просто наша бригада сказала, что у нас в холле (квартира типа распашонка, где холл между двумя комнатами) невозможно установить кондей, его обязательно надо вешать со стороны наружней стены или на стене примыкающей к наружней.
25.04.2014
Ответить
Татьяна (дизайнер интерьеров)
Вашим рабочим просто лень штробить стену и тянуть трассу;))) Например,на кухне, если вы посмотрите, кондиционер висит у окна, здесь самое удачное место и стена несущая, конечно ее лучше не трогать.В спальне так сделать нельзя, простенок маленький и попадать будет на спящих, стену можно штробить:)
25.04.2014
Ответить
Надя
Наверное))) ну у нас ремонт уже заканчивается, штробить сейчас уже не будем.
25.04.2014
Ответить
Татьяна (дизайнер интерьеров)
Теперь да, это нужно продумывать в период создания интерьера, если проект не делаете, то во время разводки электрики.
25.04.2014
Ответить
Надя
О там с самого начала подразумевался кондиционер, и электрика была разведена с учетом кондеев))) а потом оказалось что туда невозможно провети вывод для кондея, у нас по этой стене метров восемь и по ней идут все коммуникации, газ, вода, стена проходит через кухню и ванную комнату, и еще какая-то каменная балка на всем протяжении примерно на одну треть стены сверху, которую тяжело штробить, может есть какие-то другие варианты типа шлангов в коробах через потолки, но мы торопились и просто забили на это.
25.04.2014
Ответить
Татьяна (дизайнер интерьеров)
так вы же знали про коммуникации в самом начале, и кстати еще есть вариант вывода в санузел.
25.04.2014
Ответить
Надя
Ахаха, я вообще не знала что что-то куда-то выводится)))) А потом мне рабочие сказали, что невозможно, и я начала тупить "А почему? В смысле горячий воздух? А дааа???"))) Просто в сам санузел?
25.04.2014
Ответить
Татьяна (дизайнер интерьеров)
Надя, это ни какой не горячий воздух, это конденсат, который выводится через трубку. ЕЕ выпускают или на улицу или сразу в канализацию в квартире.
25.04.2014
Ответить
Nurka
И мне очень понравилось. Зато такой монохромный интерьер можно разбавлять яркими аксессуарами по настроению. Только стулья на кухне не понравились.Слишком громоздко смотрятся. И зачем их аж 6 штук в 1 комнате для семьи из 3 человек?
25.04.2014
Ответить
Татьяна (дизайнер интерьеров)
Семье нужно чтобы восемь было, т.к. бывают часто гости, я понимаю, что можно убрать складные в гардероб, но лучше показать, что 5 за стол встанет спокойно и движению это не помешает:) И спасибо за оценку;)
25.04.2014
Ответить
Мамочка дочек - Мария:)))
Очень красиво!!!! Нежно, аккуратно ни чего лишнего:)))) супер!!!!!
25.04.2014
Ответить
