Девочки, помогите советом!
Дорогие мой девочки, мы недавно купили квартиру 3-х комнатную "убитую", так сказать. Но ремонт сможем начать не раньше следующего лета. Но меня прям разбирает от желания "поделать" ремонт и все "попланировать". Хотелось бы спросить у вас совета - насколько сложно сделать перепланировку и потом есть ли возможность ее узаконить (хотя я думаю жить мы там будем долго...)? И вообще как вам такая идея перепланировки? Жить будет семья: муж, жена, ребенок 7 лет, и старенькая бабушка, возможно когда-нибудь еще один ребенок...
И еще вопрос - возможно ли все самим спланировать или прям точно нужен дизайн-проект? Кто с этим сталкивался? Для меня принципиально сейчас сделать удобную и функциональную планировку и инженерные системы, так как на дорогие материалы нет денег и вообще на любые материалы. Планируем сделать черновой ремонт и переехать, поэтому думаю визуализация и прочие цветовые варианты в ближайшие пять - десять лет мне не светят.

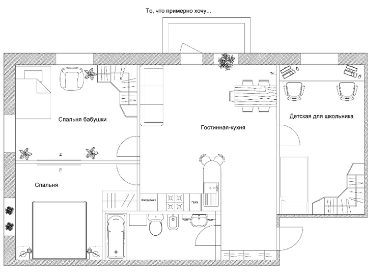
Девочки, спасибо за участие!!!...Послушала все ваши замечания и вот что получилось. Но тоже не совсем то, что я хочу... В гостиной нет места для телевизора с видео, ауди техникой, и шкафов также маловато. Дайте советы или покритикуйте, пожалуйста!!!!
У нас газ, но с переносом кухни готова отказаться от газовой плиты, но газовая колонка остается...
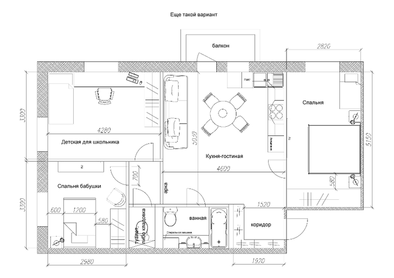
Еще узнала, что объединить санузел не получится - в этой стене дымоход под газовую колонку.
