Освещение в детской... SOS
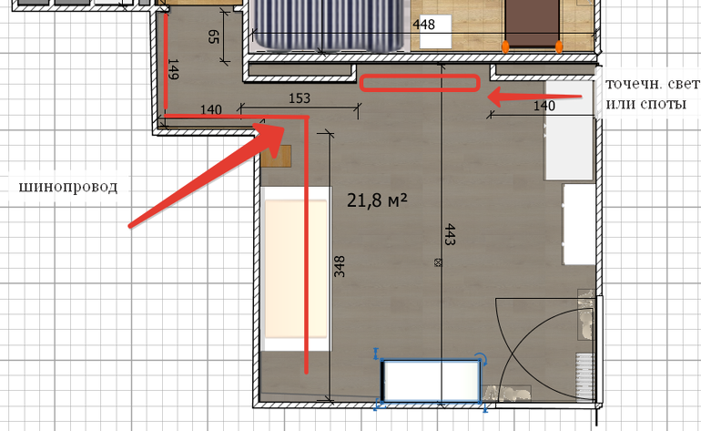
Электрика, освещение.Девочки, посоветуйте, плиз, по освещению в детской. Завтра придет электрик... Имеется комната, люстра по центру. В "предбаннике" свет не предусмотрен, тоже надо что то делать
Вопрос: стоит ли делать шинопровод как на картинке отмечено? Отступила от стены на случай перестановки в будущем. Или делать выводы под светильники - споты на 2-3 светильника (как на фото 2,3)? где лучше их разместить? В нише лучше точечный свет в г/к коробе или одиночные споты прикрутить вдоль стены к потолку (последнее фото)?




