перепланировка 2-ки в 3-ку.
Хотим купить квартиру. 70м. Подскажите, пожалуйста, идеи переделать в 3-х комнатную. 
Имеется 2 детей разного возраста и разного пола :) . Сыну 15 лет, а дочке 5. Возможно ли сделать им отдельные комнаты?. Думала может кухню в прихожую перенести. Посоветуйте, пожалуйста. Заранее всех благодарю :)
Мария Давыдова
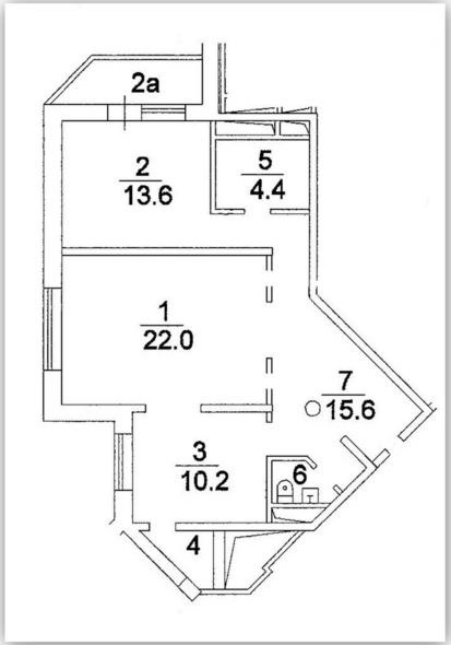
Здравствуйте! Что в помещении 4 - кладовая? и в помещении 5- сан узел?
Кухню возможно перенести в коридор, только отказавшись от сан узла 6. И то, это зависит от стояков горячей и холодной воды и канализации, чтобы обеспечить необходимый уклон для кухни.
03.09.2017
Ответить
Елена
Если вы хотите узоконенную перепланировку то тут" не поиграть", а если для себя то можно подумать.
17.08.2017
Ответить
Ирина
Здравствуйте, для себя хотим. Может что-рибудь посоветуете? Заранее спасибо
17.08.2017
Ответить
Елена
У моей подруге в зале он у вас 22 м сделана кухня гостиная , модно диван кровать поставить а в две др комнаты это спальни. У них ооочень уютно .в кухне -спальну можно фигурную.деревяную перегородочку ненавящевую установить
17.08.2017
Ответить
Евгения
У вас на плане не ясно, где несущие стены, а без этого ничего планировать невозможно.
16.08.2017
Ответить
Ирина
Женя, на плане сплошные линии капитальные стены. А прерывистые нет. Но их и нет сейчас в квартире. Спасибо
16.08.2017
Ответить
Анна Иванова
Если квартира не на посленем этаже, то вместо кухни нельзя сделать комнату. третья комната может быть спальней без естественного освещения, но ее тоже нельзя будет согласовать как жилую комнату. Может есть возможность еще планировки поискать?
16.08.2017
Ответить
Ярославна Галивец дизайнер интерьера
Очень удивительно, что в данном посте опять нет ни одного слова "пожалуйста"!
Нет ни одной выложенной потуги сделать что-то самостоятельно!
Давайте, рабы ББ, бегом работать на хозяйку Ирину! Мечите свои идеи, чертите планировки!
16.08.2017
Ответить
Ирина
Извините, пожалуйста. Вообще я всегда всем благодарна за помощь. А здесь просто забыла написать.
Пожалуйста, помогите идеями.
Ярославна Галивец, если Вам сложно, можете просто прокрутить мое сообщение и не обращать внимание.
16.08.2017
Ответить
Marina
Я все жду, когда же тут заблокируют эту Ярославну. В каждом посте ненавязчивые оскорбления от нее
17.08.2017
Ответить
Елена
Ой она мне в личку тааакой монолог катнула))))и что я хамов защищаю (это автор поста по ее мнению) и что ей пришлось от кружки чая оторватся😂😂😂 и читать этот пост, а там нет пожалуйста. Я ее тоже коменты видела. Человек который ищет соринку в чужих текстах очень в жизни не устроен и не признан.
17.08.2017
Ответить