Зелёный красавец-интерьер
Авторские проекты дизайнеров.(Посты не по теме будут удаляться!)Зеленый цвет в интерьере - уютно, приятно глазам, по-весеннему свежо и радостно. В этом проекте стоит обратить внимание на классную идею с гардеробной в прихожей, необычную рабочую зону и о-очень уютную кухню. При относительно небольших финансовых вложениях получился крутой эффект - просто за счет правильных акцентных решений.
Понимаете, почему здесь яркая стена смотрится стильно, хотя в большинстве квартир что-то подобное конкретно давит на присутствующих? Светлая мебель сглаживает впечатление - это раз. Плюс верно подобранный рисунок и цвет. Ну и золотое правило яркой стены: не стоит заклеивать цветастыми обоями всю комнату. Достаточно поставить акцент на какой-то одной из стен.

Если у вас часть комнаты оклеена обоями с ярким рисунком, подберите тематические принты в той же гамме, чтобы повесить их в рамках на однотонной стене напротив.

Заказчикам была нужна рабочая зона в гостиной - но так, чтобы она не выглядела как письменный стол с компьютером. :) Пришлось немного поломать голову! А потом нашелся славный, почти забытый в наши дни предмет мебели - секретер.

В коридоре мы поставили гардеробную вместо стандартного шкафа. Естественный свет проникает внутрь через матовые и слегка тонированные стеклянные перегородки; по периметру изнутри проведена светодиодная подсветка, которая создает парящий эффект.

Единая П-образная столешница, пущенная по периметру кухни, - это не только классная идея для увеличения рабочей зоны, но и прием, позволяющий визуально расширить маленькое пространство. Заказчики - молодая семейная пара, так что для них двоих места вполне достаточно. Кстати, для посиделок с гостями есть лоджия, где мы предусмотрели столешницу-подоконник и 4 стула.

В спальне хотелось видеть более спокойные оттенки, настраивающие на сон, поэтому остановились на светлом варианте с синим и серым. Советую уделять пристальное внимание выбору постельного белья! Аляповатый комплект с розами может испортить даже самый лучший дизайнерский интерьер.

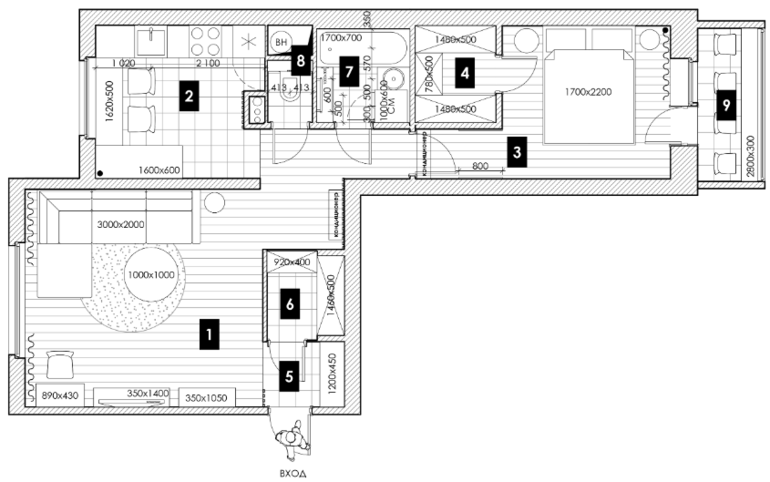
Общая площадь квартиры - 54,74 кв.м, «сталинка». Как таковой перепланировки не делали, только демонтировали стену, отделяющую коридор от гостиной. Так мы добились ощущения большего пространства и «воздуха» и внедрили современные тренды, которых так хотелось заказчикам. Смотрится отлично, но при такой планировке стоит учитывать, что песок может попадать в комнату, так что прихожая нуждается в более тщательной уборке.