Реализация
Сказать, что я просто рада - ничего не сказать...Но я реально очень рада, что мой проект практически реализовался. Начинала я его делать, еще будучи беременной, и перед декретом сдала, а пока сидела дома - строители практически все сделали. Такая красота получилась!Простите за нескромность))) Но все что было на бумаге ожило...
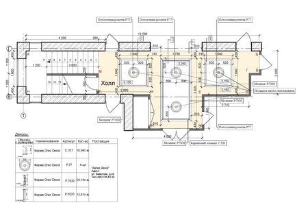
Смотрите сами:


_________________________________________________________________



_________________________________________________________________





_________________________________________________________________







Да, это всё промежуточный этап: нет пока красивых штор, мебели, картин. Но самый сложный этап можно сказать пройден! Это работа с деревами - деревянные элементы, декоры, - главная основа внутреннего пространства этого дома.
В общем прыгаю от счастья 
П.с.: и всегда актуально http://www.babyblog.ru/community/post/housedesign/728330


. Добавлю Вас в друзья (если не будете против), тоже начинаем в этом году строительство родового гнезда))
Спасибо, Марин!!!!!!!!!
Не тяни резину! Книгу может быть в твоих руках! и я верю, что будет))))))...и в моих!

