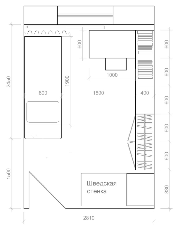
Комната для мальчика 3950х2810.
Мои работыПерепланировка для участницы BB. Комната 3950х2810.
http://www.babyblog.ru/community/post/housedesign/1720851



Светлячок
Наталья, скажите, а если комната подобного вытянутого плана, но дверь посередине. можно ли как-то попробовать разместить для 2 мальчиков (5 и 2,5 года? Если надо вышлю размеры комнаты
25.06.2014
Ответить