Итак, банька.
Наша усадьбаЯ уже писала о том, что для меня баня
, поэтому к выбору проекта подошли мегадотошно.
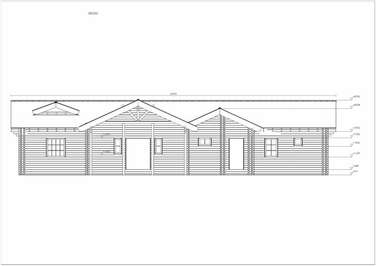
Знакомьтесь, наш будущий дом-баня: 

Мы ласково зовем его "Банька"))). 160 м2 счастья)))
Если честно, то о Большом доме пока даже и не думаем. Может быть потом. А пока нам всем нашлось место и в Баньке. Поживем-увидим! Надо ее сначала построить
.
Отдельно напишу пост, какими муками мы шли к этому проекту и к выбору строителей. Надеюсь - не прогадаем.
П.С. А это неудачный опыт разработки проекта, за который мы отвалили 30 000 р. Теперь бьемся с ними, чтобы хоть часть денег вернуть.

Люция
Здорово! Вот это банька))) Кстати, я закончила кафедру деревообработки на лесопромышленном факультете, потом немного работала в сфере деревянного домостроения. Оттуда знаю парочку отличных архитекторов, которые занимаются только деревянными домами, банями, беседками и т.д. Удачи вам в ваших планах!!!
10.11.2014
Ответить