планировка детской спальни

Анастасия а что это за программа? Мне так хочется порисовать в такой, у нас ремонт и надо бы уже планировкой расстановкой заняться
26.04.2012
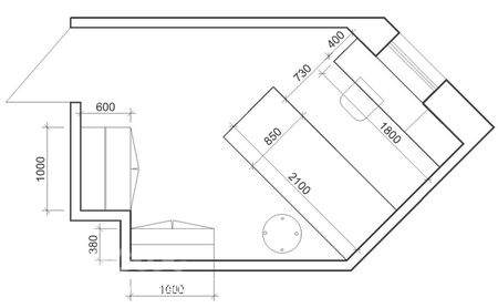
Решила для вас порисовать. Кровать-машину я бы расположила так,  чтобы входя в помещение её было видно в эффектном ракурсе,  и было бы  достаточно места  для  кругового обхода.  Есть еще один момент. Психологический, так сказать. Машина  пусть и  не настоящая, но  у неё должна быть  возможность свободно «выехать» из пространства. Иначе  она выглядит  замурованной.  Габариты  мебели из Икеи. Гардеробы для одежды и стеллажи для книг серии Пакс,  стол у окна  и навесные полки серии Бесто. Габарит  кровати взяла  самый большой  с сайта  http://dreamracer.ru/car/undefined undefined
16.02.2012
 спасибо вам большое, я пока не очень представляю, сын проснется надо померить.. кровать,которую мы выбрали немного больше в ширину.. еще попользуюсь вашим таланом.. если у окна не стол... что туда можно поставить? стол в комнате не особо нужен,есть еще одна комната,где он стоит)
16.02.2012
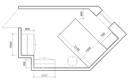
Тогда еще проще) Комод для постельного белья  удобно у кровати иметь. Эти точно подойдут. http://www.ikea.com/ru/ru/catalog/products/40176318/http://www.ikea.com/ru/ru/catalog/products/00195861/http://www.ikea.com/ru/ru/catalog/products/20190221/http://www.ikea.com/ru/ru/catalog/products/00158731/А если будет возможность поставить комод 80 см шириной  - выбор увеличивается.Предполагаю,  кровать не больше 1200? Если  больше -  вместо комода тот же узкий  стеллаж Пакс 50х38 см.undefinedА еще на комод  поставить бы хороший бесшумный увлажнитель воздуха, основной компонент для детской по-моему мнению) 
16.02.2012
увлажнитель есть) кровать такая ссылка .. Спасибо вам большое
16.02.2012
идея прикольная! но я бы поставила кравать к стене и шкаф переставила на место маленького стола, тогда увеличится игровая зона
25.01.2012
дело в том,что сын там играть не будет, это только спальня,есть комната игровая. это так программа нарисовала)) не стол там маленький,а комод для вещей...))) вот думаю как это со стороны выглядит) спасибо большое за отзыв! будет кровать-машина, и вдоль стены ее ставить жалко,тк не видно всей "красоты"..
25.01.2012
ну тогда да! только добавила бы к кровати прикроватную тумбу для ночника и будильника! а то что около стола красное это тоже комод??   а вообще можно сделать встроеный шкаф из гипсокартона на место маленького стола (комода) у двери!  получится небольшая арочка (+ место над дверью)
25.01.2012
Здорово про встроенный шкаф,спасибо!!!вот только толщина стен 12 см,как думаете,нормально будет смотреться такой тамбур при входе?
26.01.2012
если боишься что будет как тамбур то над дверью можно и не делать, а толщина стен не страшна! пыталась найти в интернете как должно быть нашла только вот это http://kvotvet.ru/pictures/pic5780.jpg , представь что тут дверцы а в нутри как тебе нужно по полкам....
26.01.2012
кровать-машина Моя маленькая кухонка.