Перепланировка 3-х комнатной хрущевки
Перепланировки стен. Согласование перепланировки квартир и нежилых помещений.Привет, ББшечки! Очень- преочень прошу вашей помощи! Назревает ремонт в квартире. но для полного счстья мне нужно снести стену)) Возможно ли это? Дом панельный... Стена, которая мне мешает, между комнатой и кухней, ее толщина 14 см..

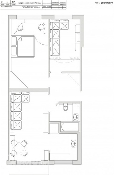
Я нашла проект с аналогичной планировкой

именно так бы и хотелось)) Может у кого-то есть что-то подобное...
Это мое первое сообщение на ББ, надеюсь, все сделала правильно!
Анастасия
В любом случае, на след. неделе иду в Гражданпроект, посмотрим, что там скажут.... А то непонятно, какие стены несущие. Эх. плохо будет, если все!

16.08.2012
Ответить
Татьяна (дизайнер интерьеров)
Ну что сказать, проектов в интернете всегда много, но не всегда они правильные и возможные :))) А дом у вас какой серии? И где вент. шахта находится, что-то все очень ровненько...
15.08.2012
Ответить
Анастасия
Дом не известно, какой серии, уже весь интернет перерыла(( а вент. шахта скорее всего в стене где плита....
15.08.2012
Ответить
Татьяна (дизайнер интерьеров)
А из туалета с ванной тоже должны идти вент. короба и подвод труб и канализации, я на схеме вашей не увидела, она уж очень маленькая....Возьмите постучите по стене, снимите покрытие обычным скребком и увидите что внутри, тогда можно будет точно сказать можно убрать или нет, по схеме понять сложно.
15.08.2012
Ответить
Анастасия
Да нет... там стена тонюсенькая, из гипса! вент. шахта скорее всего в стене между кухней и подъездом. А все трубы и канализация в стене между туалетом и коридором) во как строили))))
но меня интересует стена между комнатой и кухней! чтобы вот так было


16.08.2012
Ответить