Может кто то уже сталкивался?
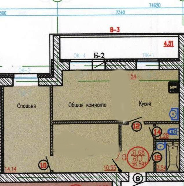
Перепланировки стен. Согласование перепланировки квартир и нежилых помещений.Что будем в ближайшем будущем иметь))) 2-х комнатную квартиру))) очень хочется спальню , ну и сыночка не хочется обделять детской.
Пожскажите пожалуйста как можно выйти правильно из ситуации, из 2 шки 3 ку? но как правильно?
Может еще какие нибудь будут предложения?

Aleksandra www.aleks-design.ru
У вас отличная площадь! Решений здесь может быть достаточно много, предлагаю рассмотреть такой вариант.
У вас отличная площадь! Решений здесь может быть достаточно много, предлагаю рассмотреть такой вариант.
18.04.2013
Ответить
Надя
Александра спасибо огромное за пример))) очень подробно)))
очень вам признательна))) сегодня вашу красоту мужу покажу)))
19.04.2013
Ответить
Aleksandra www.aleks-design.ru
Обращайтесь, с удовольствием продолжу работу над вашей площадью!
19.04.2013
Ответить
Катерина
http://forum.homeideas.ru/thread21963.html вот попалась тема. Может поможет
16.04.2013
Ответить
Надя
спасибо огромное за такую прелесть)))
только у нас будет газ(((((( а так ваш проект супер ))))))
хотела спросить еще про зонирование комнат ?как думаете это вариант в нашем случае или совсем крохотная комната в детской получится, подскажите пожалуйста)))
15.04.2013
Ответить
Оля
А у вас там газ или электричество? Знакомые у меня протянули в зал все комуникации и сделали из неё кухню-гостинную а себе в кухне спаленку и ребетёнку соответственно комната досталась)) Я когда в гости первый раз пришла даже не поняла что это двушка))
15.04.2013
Ответить
Katinka
Хм... тоже имеем двушку и год, пока дом строился все спорили с мужем - нужна гостиная или нет)))) в итоге имеем - детскую, нашу спальню и кухню-гостиную)))) правда гостиной ее трудно назвать, тк нет пока ничего, зато у каждого свой уголок отдыха есть. Смотрите по ритму вашей семьи - нужно помещение для встречи гостей или нет. Мы за год поняли, что нет. Тк всегда сидим на кухне, а танцы-песни - в кафе или баре)))) собираемся на семейные обсуждения тоже на кухне. Как то так))))
15.04.2013
Ответить
Алена
А стена между кухней и общей комнатой не несущая? Емли это просто перегородка, можно было бы ее сдвинуть левее к окну комнаты, тем самым уменьшив комнату и увеличив кухню. И еще можно объеденить санузел, оставив вход в него как сейчасв ванную. Т.о. кухня получится метров 15, если не больше и из нее делаетсякухня-гостинная с диваном, телеком и т.д. И остаютсядве полноценные спальни, имокрые зоны переносить не надо.
15.04.2013
Ответить
Оставшиеся комментарии доступны после регистрации
Зарегистрируйтесь и получите полный доступ ко всем функциям сайта.
может так, правда комнаты проходные и коридор маленький будет






что то типо этого)))