Двухкомнатная хрущевка
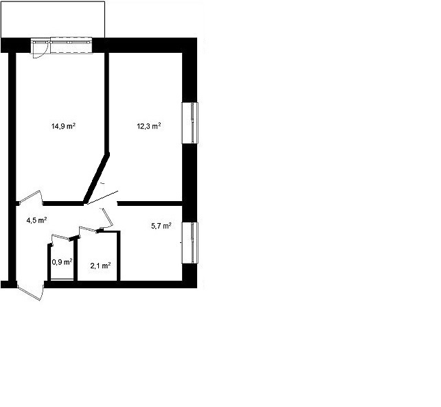
Имеется такая квартира, надеюсь поменяем (досталась по наследству мужу) Хочется ее как-то облагородить. Нужна детская(для погодок) и нам с мужем гостинная спальня. Согласна на перепланировку. Кто-может что-то посоветовать. Я уже голову сломала. Вот план

Katyshka
Танюш, я тут на ББ с девочкой-дизайнером интерьеров познакомилась, она нам делала план и помогала с планировкой (и разводкой электрики), если ещё нужно могу дать контакты, может поможет)))
23.06.2015
Ответить
LadyRain
Катя, это давний пост, пока перенесли глобальный ремонт до лучших времен, но от контактов не откажусь(на будущее)
23.06.2015
Ответить
Маруська
я бы комнату 12.3 перегородила по окно и сделала в части с окном спальню,а остальную часть отнесла к гостинной. ну а большую комнату детям, а по стее с коридором вглубь детской шкаф купе для всего барахла. дверь между комнатами заложить, вход в спальню через гостиную
30.05.2013
Ответить
LadyRain
Так был у меня такой план(сколько их было!!!) только везде пишут нежелательно спальню без окна.
30.05.2013
Ответить
Маруська
уж больше чем было, можно сделать нормальный уголок,уместив него все что нужно и поставить небольшой раскладной диванчик (для гостей)
30.05.2013
Ответить
LadyRain
Может вы и правы, гости у нас сейчас не часто, да и больше 6 чел не собирается за раз. Посоветуюсь с мужем. А за идею как уместить шкаф в нашей "огромной"прихожей спасибо.
30.05.2013
Ответить
Маруська
не за что,у самих двушка хрущевка, но более удобный вариант. так я сделала детскую,спальню,гостинную и кабинет. ну и кухня еще))) пусть комнаты небольшие,зато у нас отдельная спальня,детская, и даже кабинет мужа( в который я собираюсь запихать кучу хлама)
30.05.2013
Ответить
LadyRain
Еще один больной вопрос у меня как уместить двоих детей в одной комнате. Вы как сделали?
30.05.2013
Ответить
Маруська
у меня девчонки,мне проще) процесс пока идет но вот как то так планирую
ня детская от икеа. вдоль окна с обоих сторон два узких пенала-один стеллаж для игрушек, другой для одежды,которая на вешалках, все что не мнется-в комоде. между пеналами в будущем планируется стол письменный и два стула, пока там икеевские стол и стульчики маммут(стол еще не купила, его заменяет квадратная тумбочка)
детская 3.8 на 2.3 метра. у вас большую комнату можно разделить как то так
ня детская от икеа. вдоль окна с обоих сторон два узких пенала-один стеллаж для игрушек, другой для одежды,которая на вешалках, все что не мнется-в комоде. между пеналами в будущем планируется стол письменный и два стула, пока там икеевские стол и стульчики маммут(стол еще не купила, его заменяет квадратная тумбочка)
детская 3.8 на 2.3 метра. у вас большую комнату можно разделить как то так
30.05.2013
Ответить
Маруська
вместо перегородки можно использовать стеллаж, на полки поставить коробки с игрушками, книги,да вообще что угодно), а напротив поставить шкаф для вещей у окна(если ширина стены от угла до окна позволит)или стеллаж,дальше пока маленькие можно детские стол и стулья поствить,стеллажи с игрушками, типа икеевских, ну вообще игровую часть сделать,наверху телевизор над ней.чтобы с обоих кроваток было видно, а ближе к двери поставить шведскую стенку с турником.
30.05.2013
Ответить
LadyRain
Спасибо, я себе тоже картинок насохраняла с инета. Такие варианты расматриваю, так как 2-хэтажную кровать не хочу. Вот понравились какие. Только в первом варианте одну кровать более мальчуковой сделать, Что-то меня в последнее время на зеленое потянуло. 







30.05.2013
Ответить
Маруська
я тоже против двухярустных кроватей-у меня старшая любит ночью побродить(
31.05.2013
Ответить
Маруська
я тоже так думаю-минимум перепланировок, стена между кухней и комнатой точно не несущая, и между коридором тоже, а вот между комнатами и кухней и ванной-думаю несущая
31.05.2013
Ответить
Маруська
это не моя квартира)
в хрущевках все просто-несущие те стены,на которых плыты лежат,а плыты в хрущевках видно,особенно стыки)) здесь несущие вертикальные стены, ну и т.к. угловая квартира еще и горизонтальная которая на улицу, та что в подъезд под вопросом.
вообще в хрущевке не несущую стену видно-пни,она и развалится)
31.05.2013
Ответить
Маруська
это вам в бти сказали? все таки я думаю что стены между комнатами и между ванной и кухней несущие.
прежде чем сносить-лучше уточните у них
31.05.2013
Ответить
LadyRain
По плану так. Но уточнять конечно буду, так как перепланирову хочу узаконить, чтоб потом не было проблем с продажей.
31.05.2013
Ответить
Маруська
плану то сто лет...дом старый,все стены параллельные несущим будут приравниваться к несущим.стопудов.
сейчас можно не узаконивать если не трогали несущих стен вроде,или я ошибаюсь
31.05.2013
Ответить
fox
вам хочется отдельный вход в детскую? сделайте его в стене где кухня. дверь на кухню уберите вообще. мы убрали. у наших соседей кстати все двери раздвижные (купе). место экономит, звукоизоляция правда фиговенькая....у нас тоже хрущевка двушка но чуток от вашей отличается: туалет с ванной слева от входа (в вашем случае сразу справа) и вход в комнаты раздельный.
30.05.2013
Ответить
Счастливый Лелик))
у моей тети такая квартира, она перенесла стену между кухней и маленькой комнатой к окну(увеличила кухню, а из маленькой комнаты сделала спальню себе.
30.05.2013
Ответить
LadyRain
Был у меня и такой вариант, только думала обьеденить кухню и маленькую комнату. А у тети дети есть? Где детская, где гостиная?
30.05.2013
Ответить
Счастливый Лелик))
дети есть, детская - это большая комната. мне кажется, что она ее немного уменьшила(см на 70), так как в коридоре во всю стену шкаф. у нее получилось: большая кухня-столовая, маленькая спальня и детская.
30.05.2013
Ответить
ЕС
никак не трогайте ее)))
у нас соседка снесла стену между маленькой комнатой и кухней.
так у всех остальных соседей треснул потолок)
30.05.2013
Ответить
fox
видимо не ту стену трогали. много знакомых живут в хрущевках и как только не двигали стены и какие только перепланировки не делали....все у всех целое
30.05.2013
Ответить
LadyRain
Может это и не хрущевка. Дед говорит, что строили в 70-х годах. А хрущевки вроде раньше строили. Дом кирпичный и несущие стены только по периметру квартир. Многие наделали перепланировки и все стоит.
30.05.2013
Ответить

