есть ли варианты?
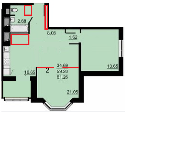
Перепланировки стен. Согласование перепланировки квартир и нежилых помещений.Девочки, нам как военнослужащим, предложили вот такой вариант 2ки. Отказываться уже смысла нет, будем брать. Вот съездила, посмотрела планировку..

Для ребенка будет маленькая комната.
Кухня меня повергла в шок крошечным окном + балкон = темнотаааа.
Коридор вообще для меня непонятный, вешалку можно с трудом вместить.
Появилась идея вынести окно кухни и дверь, расширить оконный проем (возможно ли это в несущей стене?), утеплить балкон и сделать его частью кухни. На оконный проем положить столешницу (стойка?).
Вопрос в том, возможно ли каким то чудесным образом сделать и небольшое мое личное пространство (спальню), и место для посиделок - гостиную?
Какие вообще возможны варианты перепланировки в моем случае?
Ольга
Спасибо большое! В таком варианте съедается полезная площадь в виде коридора в детскую, а кровать по размерам не встанет в мой закуток((( Надеюсь, вход в детскую можно перенести.... В любом случае надо думать что-то в этом стиле..
07.06.2014
Ответить
Elena
У вас несущая стена между комнатами. Если возможно сделать проход в комнату в другом месте, то спальную можно отодвинуть на место коридора.В вашем случае остается только большую комнату поделить. Либо спальная у окна, либо гостиная. Если спальная у окна, то обидно такой источник света (эркерное окно) прятать в спальной, а гостиную делать темной.Если делать гостиную у окна, спальная в глубине, то наличие света и воздуха решаются раздвижными дверьми, которые прикрываются для интимных моментов или когда есть гости. Раздвижные двери хорошо пропускают воздух, они не плотные как обычные. Сделав их стеклянными (матовое стекло) то будет достаточно светло и при закрытых дверях. Лучше направить двери в сторону окна.Конечно, в моем рисунке не соблюден масштаб, но можно использовать как идею.
07.06.2014
Ответить
Ольга
Да, вопрос со стеной остается открытый.. ну и с размерами закутка...встанет ли кровать... пытаюсь уточнить размеры стен, но пока не смогла. Мне вообще сложно представить на бумаге... В любом случае, СПАСИБО!
07.06.2014
Ответить
Elena
Для кровати и 2-х тумбочек вполне может хватить квадрат 260 на 260, если достаточно кровати 140. А 300 на 300 вообще достаточно ;-).У нас спальная зона примерно 350 на 300, стоит детская кроватка 60, наша кровать 140, шкаф 60 и проходы.
08.06.2014
Ответить
Sviri
Вещи из магазина Интерьерная Лавка вдохновят вас на создание неповторимого интерьера в процессе ремонта. Здесь можно выбрать действительно мебель и вещи "с душой". Интерьер становится наполненным, уютным, таким близким и умиротворенным...
06.06.2014
Ответить
Олеся (Лесёнок)
По поводу кухни- не разрешат вам в несущей стене проёмы расширять.
По поводу кухни- не разрешат вам в несущей стене проёмы расширять.
06.06.2014
Ответить
tatiana
ja bi snesla steni mezhdu kuhnej i zalom i mezhdu zalom i koridorom.........otdelila vistup v zale, sdelav komnatku dlja vas, a ostaljnoe prostranstvo bilo bi gostinnaja — kuhnja studija.........tam gde sejschas kakaja to zagorodka pri vhode v spaljnju, vo vsju stenu sdelatj shkaf -kupe........eschje mne ne nravitjsja schto dverj v tualet prjamo u vhodnoj dveri, ja bi odjedenila tualet s vannoj schto bi ubratj tu dverj...........
06.06.2014
Ответить
Ольга
спасибо) чем больше идей — тем проще принимать решение)) мне тоже не нравится туалет/ванна в этом варианте, склоняюсь к объединению)
06.06.2014
Ответить
Tesa
для себя я бы сделала так:
родительская спальня лишь для кровати и крохотной тумбочки, сверху стены я бы сделала вставку стеклоблоками, чтобы и в спальне-чуланчике был свет и уют. гардероб или кладовка — очень важная вещь в доме, либо на месте неё вместительный шкаф.ну и недостающий свет в кухню дополнительно будет поступать ещё и от большого окна в зале — всё таки как ни крути — зал-гостинная должна быть светлой и красивой, там мы отмечаем даты и приводим гостей, отдыхаем.
родительская спальня лишь для кровати и крохотной тумбочки, сверху стены я бы сделала вставку стеклоблоками, чтобы и в спальне-чуланчике был свет и уют. гардероб или кладовка — очень важная вещь в доме, либо на месте неё вместительный шкаф.ну и недостающий свет в кухню дополнительно будет поступать ещё и от большого окна в зале — всё таки как ни крути — зал-гостинная должна быть светлой и красивой, там мы отмечаем даты и приводим гостей, отдыхаем.
06.06.2014
Ответить
Tesa
незачто! у вас тогда получится полноценная спальня и гостинная с окном! пусть и 14 квадратов примерно, но у народа есть и поменьше)кстати гардероб можно перенести как ниже на чертежах — около ванной! тогда света станет больше!
06.06.2014
Ответить
Ольга
Вот и вопрос как все сделать в лучшем виде. Дом еще не сдан, если сделать перепланировку сейчас, его сдадут с нашими переделками? Пусть хоть французское окно будет для света, а то там непонятность вместо окна...
07.06.2014
Ответить
Tesa
21 кв.м делится и потом — вам не жуть ЗАЛ — ПРИЁМНАЯ КОМНАТА для гостей без окон????? и — читайте внимательно мой комент: "сверху стены я бы сделала вставку стеклоблоками, чтобы и в спальне-чуланчике был свет"в спальне мы лишь спим по ночам. там нужна по сути кровать. а ГОСТИННАЯ собирает всю семью, гостей. застолья — вам не жуть оставлятьЕЁ без окон???? нелогично както!
07.06.2014
Ответить
Ольга
Балкон объединенный с кухней изначально в проекте, вопрос возможно ли..Итак 1 вариант — недостаток в коридоре к детской — потерянная площадь...
вариант 2 не ясно, можно ли будет перенести вход в детскую дальше по стене, а так получается большая гардеробная, плюс полезные закрома на кухне. Встает вопрос о некой "изоляции" коридора, но можно решить красивой шторой на угол или еще как то продумать.
ванну/туалет пока не знаю..
вариант 2 не ясно, можно ли будет перенести вход в детскую дальше по стене, а так получается большая гардеробная, плюс полезные закрома на кухне. Встает вопрос о некой "изоляции" коридора, но можно решить красивой шторой на угол или еще как то продумать.
ванну/туалет пока не знаю..
06.06.2014
Ответить
Mammy SA, та самая )))
Забыла комментарий написать )))Обратите внимание, что при объединении санузла часть его пространства "съедается" встроенным шкафом. Это необходимо, чтобы прихожая не стала совсем уж тесной. А за дверью можно разместить открытую вешалку для верхней одежды и обувницу, они сейчас есть глубиной 20 см.Размеры кладовой, которая за ванной комнатой, определяйте сами. Единственная рекомендация: если будет такая возможность, не делайте вход с торца, кладовой будет сложно пользоваться.Диван бы я поставила спиной к кухне примерно на месте снесённой стены. Тогда можно будет телевизор повесить на стенку между гостиной и детской, а виден он будет даже из кухни.На месте бывшего окна между кухней и лоджией сделать стол — положить столешницу на оставшийся кусок стены.
06.06.2014
Ответить
Ольга
спасибо огромное! вариант санузла очень привлекателен))) как и мебели в зале-кухне, а вот окно на балкон по ширине около 30 см...
06.06.2014
Ответить
Mammy SA, та самая )))
Посмотрите тогда это.А вот места для своей спальни Вы отводите мало...
06.06.2014
Ответить
Ольга
классно) дополнительное спальное место на балконе)) век живи, как говорится)на самом деле я рисовала приблизительно, саму идею прикинуть.. там на деле надо будет уже просчитывать.. Хотя вариант Солнечного лета мне очень приглянулся)
06.06.2014
Ответить
Mammy SA, та самая )))
Я не за такое расположение спальни. Почитайте отзывы о спальных комнатах без дневного света. Это только на первый взгляд кажется, что ничего страшного. Если всё-таки рискнёте пожертвовать уровнем серотонина, тогда уж спальню лучше делать на месте коридора. При условии, что можно будет переносить дверной проём в детскую.
06.06.2014
Ответить
Ольга
я не могу пока определиться.. или спальня или кухня-гостиная без света будет... и что выбрать даже не представляю...
06.06.2014
Ответить
Ольга
1. возможно ли перенести вход в детскую...2. в стене, смотрящую на эркер, сделать дверь в спальню, и две ниши — выреза как окна, придать вид кирпичной кладки, тогда свет будет частично проникать из эркера... Где б еще денег на это найти) и МНОГО)) — тогда если нельзя п.1, то тогда как у Солнечного лета, но с дверью и "окнами" на эркер...
1. возможно ли перенести вход в детскую...2. в стене, смотрящую на эркер, сделать дверь в спальню, и две ниши — выреза как окна, придать вид кирпичной кладки, тогда свет будет частично проникать из эркера... Где б еще денег на это найти) и МНОГО)) — тогда если нельзя п.1, то тогда как у Солнечного лета, но с дверью и "окнами" на эркер...
06.06.2014
Ответить
irishka
У нас похожее узкое окно в доме су-155. Убрали окно и срезали подоконник.у нас квартира торцевая,балкон остеклен с двух строн,за счет этого в комнате светло
06.06.2014
Ответить
Ольга
Ирин, а можно поподробнее? У нас получается несущая стена дома с окном, вам разрешили такую перепланировку с убиранием окна?
06.06.2014
Ответить
irishka
Нет :) мы не согласовывали. Если надумаем продавать, вставим франзуское окно. Мы срезали не до пола,а до арматуры,внизу остался порожек.но вообще именно такой вариант согоасуем. А вот вбок расширять не стали,это может нарушить несущую способность. У нас этаж 19 из 22.чем выше этаж,тем проще согласовать
06.06.2014
Ответить
Ольга
у нас 18ый из 25, я думала может стойку небольшую сделать на месте окна типа барной, но она маленькая получается.. Вбок не получится, это я уже понимаю(а как с утеплением балкона? я переживаю, вдруг зимой будет холодно....ребенок маленький
06.06.2014
Ответить
irishka
Ну там конечно не жарко,мы пока сами только переехали в марте.на комнату 14м+4м балкон поставили батарею 10 секций,в самые холода будем ставить обогреватель. В старой квартире тоже был балкон присоединен,не мерзли
06.06.2014
Ответить
Елена
Я бы на Вашем месте туалет соединила бы с ванной комнатой,вход сделала бы где вход в ванную,а на месте двери в туалет наверное поставила бы миниприхожую,большую комнату пополам,получилась бы кухня-гостинная
06.06.2014
Ответить
Ольга
да, коридор реально "больное место"объединять не очень хочу, если честно, туалет и ванну... НО все может быть! Такую идею даже не предполагала, спасибо!
06.06.2014
Ответить
Елена
Между кухней и ванной сделать гардеробную, часть комнаты с окном под спальню, коридорную стену оставить, а вот между гостиной и кухней убрать. Чтобы было светлее в гостиной, можно вход в спальню сделать широким, оформив раздвигающимися дверьми с матовым стеклом.
06.06.2014
Ответить
Ольга
это один из основных вариантов))) СПАСИБО! Чуть позже выложу картинку самого лучшего на мой взгляд варианта, но если между детской и залом стена несущая, он не пройдет(
06.06.2014
Ответить
Оставшиеся комментарии доступны после регистрации
Зарегистрируйтесь и получите полный доступ ко всем функциям сайта.

