Перепланировка 2к квартиры для семьи из 3 человек
Перепланировки стен. Согласование перепланировки квартир и нежилых помещений.Нужна была детская (с перспективой для 2 деток и правильным размещением света)
Гостиная+кухня
Спальня и места для хранения+ мини-кабинет
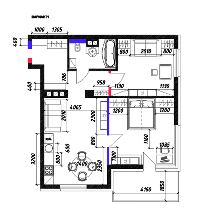
Получились такие варианты
красным- демонтаж/перенос
синим- монтаж
Второй вариант:

Elena
Не рассматривался ли вариант (см. Ваш второй), когда спальная на месте гостиной?
15.07.2014
Ответить
akvitty
А первоначальная планировала какая? Есть чувство, что кухня перенесена в жилую зону, а детская — на место кухни.
15.07.2014
Ответить
Ирина Жураховская
Нет переносов такого плана не делали.На плане видны коммуникации.
15.07.2014
Ответить
Ирина Жураховская
Исходная вроде бы не плохая,минус в узком коридоре, отсутствии в расстоянии слева от входа для шкафа.получается практически бесполезный узкий и длинный коридор, который никак нельзя расширить (коммуникации в стене между гостиной и коридором)Получается квартира большая, а мест хранения/гардероб полноценный нельзя организовать(.Приходится залазить шкафами в комнаты
15.07.2014
Ответить