Какую выбрать?
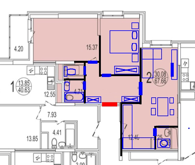
Какая планировка на ваш взгляд более удачная, нужно будет отделить спальню, гостиную и кухню, и выделить кладовку/гардеробную, одна комната идет под детскую, и что лучше сделать без окна гостиную или спальню?



блондинка
Добрый вечер! Мы купили квартиру с 3 планировкой) теперь вот тоже думаем на счёт перепланировки, желания такие же как у вас! Вы в итоге какую взяли???
16.11.2014
Ответить
YaMama
Мы взяли второй вариант))) посмотрите ниже девушки рисовали к третьей планировке варианты!
16.11.2014
Ответить
Таня
Мне кажется вторая планировка лучше! Если еще актуально могу набросать перепланировку)
01.11.2014
Ответить
YaMama
К сожалению нету((((( только известно что ширина комнат 3.30 минус стенки, а ширина кухни 3.60 минус стенки. Стенки по идее 15 см, но это все плюс минус и как посчитать сама не знаю(( еще известна длина капитальной стенки на кухне/балконе от стены 1.20(это где окно будет, до двери балконной.
02.11.2014
Ответить
YaMama
Да вот что то типа этого думала... Только опять же боюсь будет тесно в гостиной... Спасибо за наглядные схемы!!
05.11.2014
Ответить
YaMama
Ого прям с мебелью! Спасииибо! Только вот думаю не будет ли слишком тесно на кухне / гостиной? Может разлелить комнату и в левой части у окна сделать спальню а справа минигостиную? Рабочий стол в принципе особо не нужен... А на спальню отвести минимум места... Но тож думаю не будет ли тесно в такой гостиной?
05.11.2014
Ответить
Таня
ну вот чуть ниже вариант с отдельной гостиной. там стена несущая, да? (правая часть стены между комнатой и кухней)
05.11.2014
Ответить
YaMama
Да там кусок несущий, я еще думала сделать из кухни проем в гостиную и скосить спальню этим проходом... А дверь в кухню залржить и сделать там кладовую из коридора... Как думаете?
05.11.2014
Ответить
Таня
Тоже хороший вариант) просто еще перепланировка зависит от бюджета на ремонт)
05.11.2014
Ответить
YaMama
Бюджета пока совсем нет))) но будем делать для жизни, поэтому экономия в пределах разумного. Изначально хотели трешку, но выбрали другой более дорогой район, поэтому будем что то думать с этими квадратами..
06.11.2014
Ответить
Евгения
Ань, я туплю уже мин 15 над этими планами) Объясни, как спальня без окна выйдет? во всех комнатах же окна или балкон.
26.09.2014
Ответить
YaMama
На второй планировке разделить комнату 19 м пополам и правая часть например гостиная а левая спальня и сделать дверь купе или наоборот спальню у окна а диван с тв справа без окна
26.09.2014
Ответить
Евгения
А, поняла теперь)) я, если честно, тяжело во всякие планы вникаю. Так что советчик я тут никакой.. третий ничего вроде, но мне не нравится 12 м под кривой коридор отдавать - жалко метры под такое ненужное пространство как коридор. Может второй хороший?
26.09.2014
Ответить
YaMama
Просто важнее кухня и гостиная а спаленка так чисто поспать)) ну это я так думаю... И по площади гостей принимать да и вообще тусить постоянно в гостиной а не в спальне
26.09.2014
Ответить
Elena
Третий вариант привоекателен еще и тем, что возможен перенос входной двери. Такие перепланировки тоже разрешаются БТИ. Судя по схеме стена, к которой примыкает ванная не несущая и вход в квартиру может быть и там.Примерные мысли...
САнузел около кухни можно превратить в постирочную/кладовку.Так же знаю, что БТИ утверждает и перепланировки в которых кухня размещается на месте с/у. Но это уже открытый вопрос, надо уточнять...Или коридорчик делаем совсем маленький, но большую кухню/гостиную :-)
САнузел около кухни можно превратить в постирочную/кладовку.Так же знаю, что БТИ утверждает и перепланировки в которых кухня размещается на месте с/у. Но это уже открытый вопрос, надо уточнять...Или коридорчик делаем совсем маленький, но большую кухню/гостиную :-)
26.09.2014
Ответить
Анютка
если дверь переносить, можно еще часть коридора захватить. как раз вся одежда и обувь влезет. я бы ни за что этот уголок соседям не оставляла. 

26.09.2014
Ответить
Анютка
грязная обувь вместится и открывание можно сделать ручкой в сторону вашей кухни. у нас по плану без переноса две двери рядом. никто еще никого не убил.
26.09.2014
Ответить
YaMama
У нас у свекров тоже двери так по плану что одна в другую.. Просто можно ли подъезд прикарманить вот в чем вопрос
26.09.2014
Ответить
Анютка
Мы когда квартиру на покупку искали, Видели квартиру нашей мечты. Место гов...е а дом хороший. Там все трешки себе прилепляли общий коридор 8 кВ.м. У меня муж с ума сходил, как хотел такую. Все лыжи, доски, гидики, и прочую спортивную атребутику сложить и еще гардеробную сделать. Так вот там все делали 2 мет двери. 1 старая квартирная + 1 дверь внешная.
26.09.2014
Ответить
YaMama
У нас у свекров тоже двери так по плану что одна в другую.. Просто можно ли подъезд прикарманить вот в чем вопрос
26.09.2014
Ответить
Elena
Можно... Здесь нет никаких нарушений. В нашем доме подобные перепланировки узаконены еще в момент приема дома. Люди купили каартиры на стадии строительства и сразу с застройщиком обговорили размещние дверей. БТИ при приемке дома сразу внесла эти изменения в планировки и утвердила.Так же есть владельцы таких же квартир, которые поступили как их соседи уже после ввода в эксплуатацию дома. Это не является нарушением, переносить входную дверь можно, если не затрагиваются коммуникации и несущие стены.http://www.pereplanirovkamos.ru/1357814589.html
26.09.2014
Ответить
Анютка
третий вариант самый лучший. изначально кухня 16 м к ней добавить немного от соседней комнаты и гостинная-кухня готова.
26.09.2014
Ответить
Tatiana
третий самый классный вариант в плане перепланировки. однозначно за него голосую! а дом этот вам нравится?
26.09.2014
Ответить
Олеся (Лесёнок)
Третья оптимальна для переделки так, как вы хотите. Вот смотрите на скорую руку)))Приимущества такой перепланировки -1) Появляется достаточно большая прихожая с достаточным местом, чтоб там поставиь прихожую группу и шкаф купе, допустим для хранения верхней одежды.2) Появляется кухня-гостиная, не сильно большая, но достаточно уютная и хватит места.3) Расширена за счёт коридора (!!!) что не маловажно ванная комната, она станет чуть больше, зато вам не надо будет играть в тетрис, куда бы и что поставить. Там хватит места и под двойную раковину, и под стиралку, и под унитаз, и под ванну. 4) Появляется ваша спальня и гардеробная комната, небольшая, но достаточная, чтоб вместить ваши вещи. Она же служит частичной звукоизоляцией от вашей спальни.
26.09.2014
Ответить
Олеся (Лесёнок)
В данном случае я туалет расширила за счёт не жилой зоны, за счёт части коридора. Да, так можно.
26.09.2014
Ответить
Мамзелька (Аня)
2. В третьей не нравится длинный узкий коридор, 12 кв коридора — жалко...Во 2-й делаете 21 кв комната — детская, 19 кв — кухня-гостинная(коммуникации тянуть недалеко из ванной), а 14 кв комната с балконом — отличная спальня с собственым туалетом, либо кладовку на месте туалета.
25.09.2014
Ответить
Яюшка
Нельзя, чтобы мокрое помещение (кухня, ванная, туалет) располагались над жилыми комнатами соседа снизу.
27.09.2014
Ответить
Мамзелька (Аня)
А кухня в коридоре не запрещена?Я не архитектор, но у нас полдома таких перепланировок. И мы собираемся из кухни делать спальню, записав предварительно как кабинет. У автора для двушки много требований, а как их тогда все сочетать?
26.09.2014
Ответить
Мария (www. vmrstudio.com )
3я тоже хорошаянужно будет отделить спальню, гостиную и кухню, и выделить кладовку/гардеробную, одна комната идет под детскую, и что лучше сделать без окна гостиную или спальню?-не ясно конкретно сколько комнат надо
25.09.2014
Ответить
Мария (www. vmrstudio.com )
3й вариант лучше всего!есть варианта 4 перепланировка, а то и все 5
26.09.2014
Ответить
Оставшиеся комментарии доступны после регистрации
Зарегистрируйтесь и получите полный доступ ко всем функциям сайта.