Помогите с перепланировкой!!!
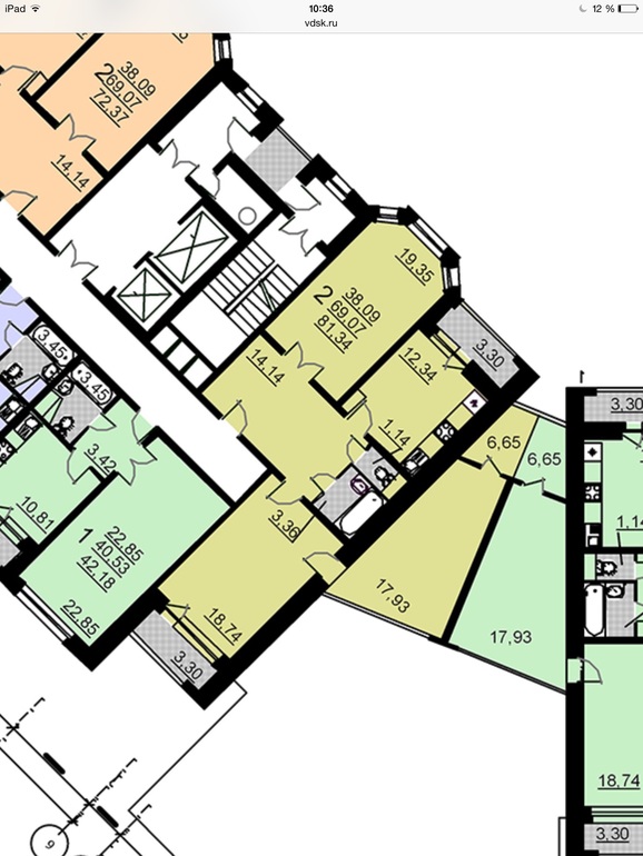
Перепланировки стен. Согласование перепланировки квартир и нежилых помещений.Дд, имеем 2-комнатную квартиру с зимним садом ( это неправильной формы комната 17,93), общая площадь 80 кВ.м., в задумках из зимнего сада сделать спальню, еще и гардеробную там оборудовать) но тогда детская получиться проходная, прийдется делать перегородку.А еще хочу один балкон соединить с кухней, что бы увеличить ее.Не знаю пока, возможно ли это вообще, там вроде стена несущая получается. Вообщем буду рада любым идеям

Елена Тарасова (дизайн, 3D)
Жалко еще "дарить" такую площадь коридору...Я на бегу так прикинула
05.02.2015
Ответить
bkola
Возьмите себе весь блок 18.74 и 17.93 немного увеличьте су. (холл просто гигантский больше кухни) а детскую разместите в комнате с эркеромС уважением дизайнеры квартир
05.02.2015
Ответить
Светушня
у моих друзей такого плана квартира, только вход в зимний сад между кухней и сан.узлом. Можно детскую немного сократить и подвинуть стенку (или сделать еще одну) за дверью в сад. Но идея сошедшей с ума интереснее.) А что касается кухни, то стену вряд ли получится убрать, но друзья просто убрали окно и используют часть стены, как элемент декора-стойка-стол, а за ней (на балконе) стоит холодильник
05.02.2015
Ответить
Елена
Я как то не думала делать детскую из комнаты с эркером, думаю гостиная нужна большая, так как чаще всего там все собираются, ну как то так, не знаю
05.02.2015
Ответить
Сошла с ума
я бы из детской сделала проходной зал, а детскую перенесла. Получилась бы клевая детская с эркером)проходной зал меня лично не смущал совершенно)
05.02.2015
Ответить
Мамзелька (Аня)
А этот зимний сад теплый? Какие там окна,во всю стену, получается?По поводу перегородки, тут только отрезать от детской кусок, иначе никак. А если к детской присоединить балкон, чтобы компенсировать по площади?
05.02.2015
Ответить
Елена
Он не теплый будет, и окна большие, но мы уже по факту будем смотреть, в аналогичных домах утепляли, закладывали и отопление проводили, мы интересовались у знакомой такая квартира, она переделала.Я вот 2 балкона не хочу, мне и одного хватит, судя по всему, у кухни балкон с несущей стеной, поэтому его наврядли можно убрать( хотя я мечтаю о большой кухне),в детской стена тонкая, может его и можно убрать, главное что бы ребенку в комнате было тепло, а так если делать проход, то за счёт балкона эта площадь компенсируется, это точно.Нужно подумать
05.02.2015
Ответить
любовь
А почему детская получится проходная? Стену переставьте, сразу за дверью в зимний сад и все будет норм!
05.02.2015
Ответить
Елена
Ну да, я тоже так думала, стену перенести, детскую немного уменьшить.Спасибо
05.02.2015
Ответить