Помогу получить максимум от вашей жилплощади
Привет.
Правильная функциональная планировка - залог комфортной жизни.
подробнее

Предлагаю свою помощь в планировке вашей квартиры (зонирование + расстановка мебели).
По образованию я дизайнер интерьера, есть опыт работы архитектором, поэтому в проектах придерживаюсь нормативов в проектировании жилых помещений. Люблю сложные задачи и нахожу нестандартные решения.
Стоимость - 150 руб за кв.м. по полу.
За эту стоимость вы получаете 3 варианта планировки с расстановкой мебели и указанием размеров. И из понравившихся моментов собираю для вас финальную планировку квартиры/дома.
Примеры:
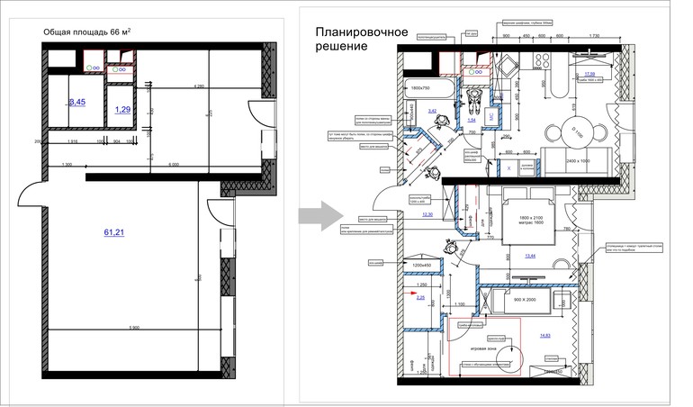
1. 2х-комнатная квартира, общей площадью 66 кв.м.
Состав семьи: родители + маленький ребенок (возможно появление второго).
Задача: две комнаты + кухня с гостевой зоной + обязательно наличие темной комнаты (кладовка, гардеробная).
Особые пожелания: как можно больше мест для хранения
2. квартира-студия, общей площадью 28 кв.м.
Состав семьи: молодая пара - это их первое совместное жилье
Задача: разместить двух человек + наличие гардеробной
На этом примере хочу показать возможности использования жилого пространства, когда каждый метр важен.
3. 1-комнатная квартира, общей площадью 55 кв.м
Состав семьи: родители + ребенок школьного возраста
Задача: разделить комнаты + выделить место для приема гостей. Разделить санузел
Особенности: часто необходимо сделать из однушки "трехкомнатную" квартиру. Конечно, комнаты получаются небольшими и кухня чаще всего остается без окна, но таким образом у каждого есть свой
Варианты исполнения чертежей могут отличаться: дополняться картинками, коллажами и т.п. по необходимости (чтобы донести идею)
