Комната для 13-летней девочки
Интерьерное решение детской комнаты
Интересное решение пространства комнаты девочки-подростка от сайта Ремонт без правил.
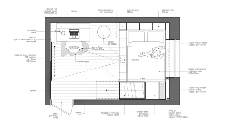
Пространство этой обычной комнаты площадью 14 квадратных метров очень преобразилось благодаря нестандартному интерьерному решению авторов проекта - питерской студии INT2 architecture.
Вместо привычного наполнения подростковой комнаты - дивана, шкафа и комода - они предложили создать многофункциональный «бокс», сочетающий в себе все эти элементы.
Таким образом, пространство стало единым, к тому же полностью освободилась стена напротив него. Эта стена также несет важную функцию, даже несколько: она одновременно является меловой доской, зеркалом и экраном для проектора. В комнате появилось место и для большого письменного стола, необходимого для учебы. В проекте используются экологичные материалы: инженерная доска, фанера, ротанг и натуральный текстиль - хлопок, шерсть и лён.
