Сама себе дизайнер или...
Перепланировки стен. Согласование перепланировки квартир и нежилых помещений.Как рождается планировка нашей будущей квартиры.
Строится наш будущий дом, а с ним и планы строятся. Сейчас остановилась на двух вариантах и если вдруг третий не родится, буду выбирать из них. Вам какой больше нравится? И может быть какие-то идеи/предложения, удобства/неудобства? Поделитесь опытом?
Первый вариант

Второй вариант

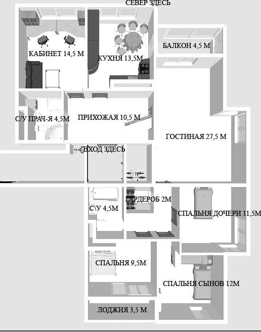
АПД. Добавлю исходных данных. Кабинет в дальнейшем трансформируется в комнату одного из сыновей. Большая отдельная от кухни гостиная необходима для приема 30 человек гостей (у нас как минимум 6 подобных мероприятий в год проходит). А это то, что имеем на входе (планировка от застройщика) 
Мария
ну в общем вот один из вариантов без присоединения коридора
здесь сверху большая кухня-гостиная, рядом гостевой с/у. Напротив входа гардеробная для верхних вещей, она же небольшая кладовка может быть. Рядом с кухней-гостиной нерикаенное помещение. Его можно объединить со следующей комнатой и тогда будет большое помещение для спальни-кабинета девочки, например, или спальня-игровая мальчиков. Ниже спальня родителей, еще ниже объединенное помещение опять же или для девочки или для мальчиков.Еще не понятно, можно сносить межквартирную перегородку? Она монолитная или из блоков?А вообще, у вас интересных вариантов можно придумать много. Я бы на вашем месте кинула планировочку на форум ивд. Там много грамотных дизайнеров-архитекторов любят голову поломать. А над интересными квартирами так вообще. Мне там с моей сильно помогли в свое время.
здесь сверху большая кухня-гостиная, рядом гостевой с/у. Напротив входа гардеробная для верхних вещей, она же небольшая кладовка может быть. Рядом с кухней-гостиной нерикаенное помещение. Его можно объединить со следующей комнатой и тогда будет большое помещение для спальни-кабинета девочки, например, или спальня-игровая мальчиков. Ниже спальня родителей, еще ниже объединенное помещение опять же или для девочки или для мальчиков.Еще не понятно, можно сносить межквартирную перегородку? Она монолитная или из блоков?А вообще, у вас интересных вариантов можно придумать много. Я бы на вашем месте кинула планировочку на форум ивд. Там много грамотных дизайнеров-архитекторов любят голову поломать. А над интересными квартирами так вообще. Мне там с моей сильно помогли в свое время.
10.08.2015
Ответить
Анна
Тоже интересно. Спасибо. Нижняя комната как общая детская может быть, а потом ее можно будет разделить. Единственное, что кухня-гостиная это табу. Муж категорически против объединения этих зон.Спасибо за идею, насчет ивд! Как-то я забыла про них. Пойду полазию
10.08.2015
Ответить
Анна
Ага, Кать:) Думали трешку+однушку, но в итоге решили так. Лучше потом когда-нибудь еще дом как у вас построим:)
10.08.2015
Ответить
Мария
ваш первый вариант не возможно будет согласовать (если только квартира не на 1 этаже). т.к. располагать кухня над жилыми помещениями нельзя.Вот накидала один из возможных вариантов. Из-за того, что не понятно, какие стены несущие, какие нет, возможно, что и мой вариант не жизнеспособен. Плюс не очень понятны размеры комнат. В любом случае, может что-то и натолкнет вас на интересную мысль
я отталкивалась от той идеи, что жилую зону и общественную необходимо разнести. Чтобы гости и застолья не мешали детям спокойно играть и спать. Опять же, зачем гостям таскаться по спальной зоне хозяев. Поэтому кухня и основная гостиная в отдельной квартире. Там же гостевой туалет и хозяйственная комната, в которой можно разместить нужности для кухни или сделать постирочную зону.В хозяйской части есть 4 комнаты — спальня для родителей, дочкина спальня с кабинетом на балконе, спальня мальчиков и общая игровая/маленькая гостиная. В которой дети могут тусить во время праздников или просто все тусить, чтобы не "разносить" большую гостиную.В общем, вот, как вариант.
я отталкивалась от той идеи, что жилую зону и общественную необходимо разнести. Чтобы гости и застолья не мешали детям спокойно играть и спать. Опять же, зачем гостям таскаться по спальной зоне хозяев. Поэтому кухня и основная гостиная в отдельной квартире. Там же гостевой туалет и хозяйственная комната, в которой можно разместить нужности для кухни или сделать постирочную зону.В хозяйской части есть 4 комнаты — спальня для родителей, дочкина спальня с кабинетом на балконе, спальня мальчиков и общая игровая/маленькая гостиная. В которой дети могут тусить во время праздников или просто все тусить, чтобы не "разносить" большую гостиную.В общем, вот, как вариант.
10.08.2015
Ответить
Анютка
мне ваш вариант нравится больше. но я вот не могу себе в голову вбить: как нужно любить гостей, чтобы себе кроить маленькие спальни и кухню для 4-х человек в 9 квадратных метрах и при этом иметь гостиную 27 квадратных метров. 30 человек в этой квартире это же ужас. Давно уже для этих целей рестораны есть и банкетные залы.
10.08.2015
Ответить
Анна
это самые близкие:) мамы, папы, бабушки, братья и сестры с семьями уже 20 человек:) Если родных тетю и дядю с семьей звать будет 30.Банкетные залы мы не очень любим. У меня дома очень вкусно готовят:)А мне и детям спальни нужны только для того, чтобы спать, т.е. по сути там должна просто кровать стоять ну и у детей потом стол со стулом, чтобы уроки делать. Остальное время мы будем проводить все вместе в гостиной на 27 метров:) Кстати столовая зона тоже в гостиной будет основная. Стол на 4х человек в кухне нужен для быстрого перекуса, если кто-то спешит на работу или по делам и не хочет накрывать застолье на себя одного
10.08.2015
Ответить
Мария
ну, по-поводу банкетов на 30 человек — тут уж у кого как принято. Квартира большая, вполне можно изредка позволить себе приглашать больщое количество гостей. Я тоже люблю звать родных/друзей. У меня хоть и не такие площади, но кухня-гостиная 26 м и частенько собираются гости от 10-20 человек. И вполне себе чувствуют нормально, не тесно. Поэтому большую гостиную для 30 человек вполне можно отнести. А по-поводу "маленькие спальни". Ну, комнаты по 13-14 кв.м. я бы не называла маленькими. Для спальни родителей так это вообще выше крыши, что там делать-то, только спать. Для спальни девочки нормально, т.к. есть еще отдельный кабинет на балконе. А мальчишкам так вообще раздолье. А когда подрастут, можно сделать небольшой ремонт и без лишних усилий разделить комнаты.
10.08.2015
Ответить
Анютка
вот я тоже думаю, при таких количествах гостей лучше кухня-гостиная. хотя бы в отсутствие гостей пространство будет использоваться. да и метание на стол для 30 человек из кухни в другую комнату как-то неудобно.
10.08.2015
Ответить
Анютка
а все-таки если изредка банкет нужен, планировка квартиры не должна быть для этого "изредка". это не правильно. гости гостями, а семья живет здесь каждый день.
10.08.2015
Ответить
Анна
Маш, вариант супер. Я тоже с него начинала, но уперлась в невозможность "прихапать" кусок лестничной клетки, т.к. это невозможно по пожарным нормативам. Т.е. если присоединим к своей квартире часть лестничной клетки (что в принципе возможно по законодательству, т.к. мы имеем право на часть общественной собственности), но найдутся те, кому это не понравится — мы обязаны будем все снести за свой счет по решению суда. Если оформлять кусок лестничной клетки "официально" это возможно только с согласия 100% всех собственников жилья ВСЕГО дома, что тоже маловероятно. Кто-то да не согласится. В целом, получается много бюрократии, волокиты и борьбы с этим прихапыванием, поэтому мы решили просто отказаться от него. Только шкафчик маленький поставим который вряд ли кому будет мешать.А вот сделать приватную и общую зону по прежнему хочется... Вот только как? Я только первый вариант смогла придумать....
10.08.2015
Ответить
Мария
честно говоря, я бы не стала "заморачиваться" по-поводу соседей и что кому-то "вдруг" не понравится ваше отделение. Все же обычно каждый сам по себе, а вы ничьих интересов не ущемляете, зато появляется прекрасная возможность хорошо распланировать квартиру.Для других вариантов хорошо бы знать, какие стены в квартирах несущие и хотя бы основные размеры комнат...
10.08.2015
Ответить
Анна
Маш, я с тобой согласна, тоже бы так сделала и уже "пободалась" если кому что не понравится, но муж сказал не присоединять и жить спокойно. Хозяин-барин. Я смирилась:)В квартире несущих стен нет вообще, даже стены между квартирами не несущие. Только стояки.
Размеры правда тут плохо читаются:( А больше картинку не могу сделать...
Размеры правда тут плохо читаются:( А больше картинку не могу сделать...
10.08.2015
Ответить
Анна
Второй вариант. Мои аргументы:- более удобный проход из кухни в гостиную (а когда приходят в гости, хозяйке часто приходится проделывать такой путь)- гостиная будет почти весь день освещена естественным светом (окна на две стороны)- больше кухня чем в первом (при таком метраже каждый метр важен)- спальная зона полностью отделена от общественной- длинный витееватый коридор — это всегда неудобно по эргономике, во втором варианте куда лучшеСдругой стороны, если кабинет потом трансформируется в комнату старшего сына, то при втором варианте он будет у вас спать отдельно от всей семьи((( как-то неочень... Тогда лучше первый вариант! И еще. Вы же присоединяете еще и часть общего коридора на площадке, да?Можно ли за счет него увеличить гардероб? Насколько я вижу, там нет несущей стены, там дверь в "однушку". Если у вас будет большая гардеробная, куда можно зайти закрыть дверь и там переодеться, то тогда незачем будет выделять место для шкафа в вашей маленькой спальне.
10.08.2015
Ответить
Анна
Ань, все именно так! Вы прямо мысли мои прочитали!:) Нам тоже всем нравится больше второй вариант, но не нравится, что потом приватная зона будет разделена на две части. Во втором варианте наличие общественной и приватной закрытой зоны полностью реализовано, но да. Появляется этот жуткий коридор... Как бы так сделать, чтобы и приватная и общественная зоны были четко разделены, но при этом без коридоров???Прихватизировать кусок лестничной клетки мы думали немножко другим способом. Планировали установить там шкаф и хранить велосипеды, одежду не по сезону и т.п. Т.к. если соседи нажалуются (неизвестно ведь что за соседи будут) и придется сносить мы будем сносить просто шкаф на лестничной клетке, а если сделать там гардеробную — это уже ремонт в квартире, совсем другая история...
10.08.2015
Ответить
Анна
Ее можно "прихватизировать" совершенно законно, тк там только ваши квартиры и вы никому не помешаете присоединив часть площадки (если там не располагается пожарный гидрант или какой-нибудь технический люк). У меня знакомые делали так, но им все делал дизайнер, но точно законно и официально. Поузнавайте-ка.И правильно Мария написала — кухню над спальней нельзя. Ну можно, только не согласуете.
10.08.2015
Ответить
Анна
Насчет согласования, я ниже писала "я мокрые зоны (мойку и посудомойку) оставила в границах реальной кухни, в
остальной части только шкафы + если будет этот вариант, будет серьезная
гидроизоляция, чтобы защитить соседе. Насчет согласования... В этом
случае гостиная согласовывается как кухня-гостиная, а кухня как спальня.
Согласовывать буду все равно голые стены."Там законно да, чаще всего удается доказать, что имеем право (мы имеем право метров на 10-12 по-моему, а отгараживать будем около 7, но есть прецеденты, когда особо настойчивые соседи добивались сноса по суду. Я соседей пока не знаю и не хочется на "авось". Лучше перестрахуюсь, но буду спать спокойно
10.08.2015
Ответить
Анна
Должен быть форум у вашего ЖК. Найдите там соседей, спишитесь и спросите у них. Может нормальные люди.
10.08.2015
Ответить
Анна
А вообще мысль с гардеробной классная! Можно и вправду кусок добавить под гардеробную, а кусок оставить под "грязное" типа великов.Супер! Спасибо огромное!
10.08.2015
Ответить
Анютка
площадь большая, планировки совсем не нравятся. спальня родителей как кладовка, зато кабинет 14,5 м??!!!!
10.08.2015
Ответить
Анна
Площадь 120 метров. Спальня родителей 9,5 + 3,5 балкон, который можно будет присоединить. Итого 13 метров. Кабинет сейчас это кабинет + детская игровая зона или гостевая (если кто останется ночевать). Кабинет потом трансформируется в комнату одного из сыновей.А это то, что я имею изначально
10.08.2015
Ответить
Василина
ммм так если такая планировка, тогда первый вариант не проходит с расположением кухни
10.08.2015
Ответить
Василина
и еще вопрос, какие стены между квартирами? по плану кажутся что несущие, тогда второй вариант тоже не проходит
10.08.2015
Ответить
Анна
В квартире ни одной несущей стены, только в подъезде несущие. В квартире только вент.шахты и стояки мешают, остальное можно перестраивать
10.08.2015
Ответить
Анна
Вот да... правда я мокрые зоны (мойку и посудомойку) оставила в границах реальной кухни, в остальной части только шкафы + если будет этот вариант, будет серьезная гидроизоляция, чтобы защитить соседе. Насчет согласования... В этом случае гостиная согласовывается как кухня-гостиная, а кухня как спальня. Согласовывать буду все равно голые стены.
10.08.2015
Ответить
Татьяна Специалист по недвижимости
с такой площадью вариантов может быть огромное количество.долго не могла понять что меня смущает в ваших планах, поняла СЫНОВ
10.08.2015
Ответить
Елена
В целом за 1. Кухню в гостиную. Кабинет в кухню. И получается еще спальня детская
10.08.2015
Ответить
Оставшиеся комментарии доступны после регистрации
Зарегистрируйтесь и получите полный доступ ко всем функциям сайта.
