Добрый день, девочки, прошу вашей помощи и совета, голова кругом!!!
уже есть дизайн проект,
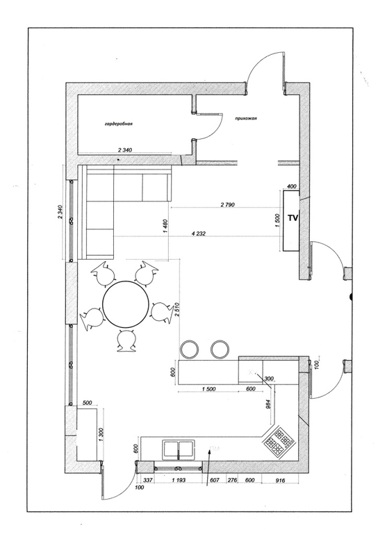
но что-то не лежит к нему душа, посмотрите планировку, меня смущает местоположение телевизора, удобно или нет? или перенести на стену к гардеробной?? на стол не обращайте внимания, будет меньше по размерам, это нам такой забабахал дизайнер
. ну и вообще окиньте взглядом, может у кого есть какие предложения.всем откликнувшимся спасибочки 
Poison777
Из личного опыта - если душа не лежит, значит точно ищите еще варианты. Потому как и дальше она лежать не будет - только потом окажетесь в рамках уже выведенных труб и электрики и менять что либо станет крайне сложно :(
18.08.2015
Ответить
Инна Дизайнер Частного дома
А дизайнер только один вариант предложила? Я бы тоже поискала другие варианты. Возможно диван поставить спинкой к кухне а торцом к простенку между окнами, там где стол сейчас. Тогда ТВ на стену гардеробной - сейчас слишком далеко от спинки дивана до телевизора. А кухню перепланировать, может и оставить остров, но именно остров, а не барную, чтобы в нем была система хранения.
18.08.2015
Ответить
Лена
вот и мне кажется такая планировка более удачливая, если телевизор повесить на стену гардеробной
18.08.2015
Ответить
Татьяна Специалист по недвижимости
согласна с пред. комментом, барная стойка только проход загораживает, тв куда не поставь его будет плохо видно из-за света в окнах
ну и расположение плиты лучше поменять, тянуться в угол чтобы отмыть его через плиту не удобно, а жир будет лететь на стену
18.08.2015
Ответить
Лена
Татьяна, спасибо, но перенести наверное не получится, там подвод газа, может из орг.стекла думаю сделать типа ширмы и при готовке закрывать угол, конечно не удобно наверное будет носиться с ширмой.меня тоже смущают окна напротив телевизора, вот и думаю, если на стене гардеробной. может блики меньше будут?
18.08.2015
Ответить
Татьяна Специалист по недвижимости
неделю поноситесь и потом оставите эту затею, гибкая подводка вам позволит перенести или просто перепаять трубу.
не могу ответить на ваш вопрос, так как не знаю когда и куда у вас свет падает
18.08.2015
Ответить
Инна Дизайнер Частного дома
Лучше проконсультироваться у газовиков и один раз сделать, чем потом постоянно мучиться
18.08.2015
Ответить
Анна
Мне все нравится. Если перенести на стену гардеробной, как вы собираетесь его смотреть? Смотреть-то планируете с дивана, наверное.
А барная стойка вам прям очень нужна? Я вот вообще не понимаю зачем они нужны. Если ее убрать, то уберется большой обеденный стол для всей семьи и останется достаточно места для движения. Я бы для своей семьи так сделала, но, возможно, у вас другие задачи и привычки. Тогда все отлично!
18.08.2015
Ответить
Лена
Анна, это "островок", может и действительно не нужен. а если телевизор переносить на стену гардеробной, то и диван расположить к стене между окон, чтобы он был напротив, даже может и не угловой тогда. меня смущает что телевизор вроде как "на проходе" получается.
18.08.2015
Ответить
Анна
Ну да, есть резон. Тогда хотя бы прямого света на телек не будет - тонкую шторку задернул и все гуд! Если у вас там не южная сторона+тонкая шторка, то точно не должно быть проблем с бликами. Скажите дизайнеру, пусть перерисует, может вам больше понравится.
По поводу варочной в углу тоже хотела вам написать критику, но потом передумала. Рабочий треугольник у вас сохранен - холодильник-мойка-плита. Расстояние от мойки до плиты как раз хорошее, чтобы было удобно готовить на нем. Если плиту чуть передвинуть по стене, где окно, то расстояние для готовки уменьшится на 60 см(((( будет мало. Если плиту передвинуть на стену справа, то слишком увеличится, замучаетесь бегать. Представьте, помыла овощи, порезала и побежала к плите, и так по кругу. Готовить надо каждый день, а мыть угол за плитой максимум раз в неделю (дли чистюль), а то и реже, раз в месяц. Хотя... там от мойки до плиты 607+276+600+еще до внутреннего угла сантиметров 20... Итого если варку поставить чуть ближе к мойке, то от нее до мойки будет 607+276+20=903 плюс-минус)))) А может и метр. Нормально вроде для готовки. Немножко подвинуть плиту можно с помощью гибкого шланга. Мы же не предлагаем ее переносить совсем. Просто чуть развернуть по той или другой стене.
В общем мое мнение - либо оставить плиту в покое))) либо чуть развернуть по стене, где мойка.
18.08.2015
Ответить