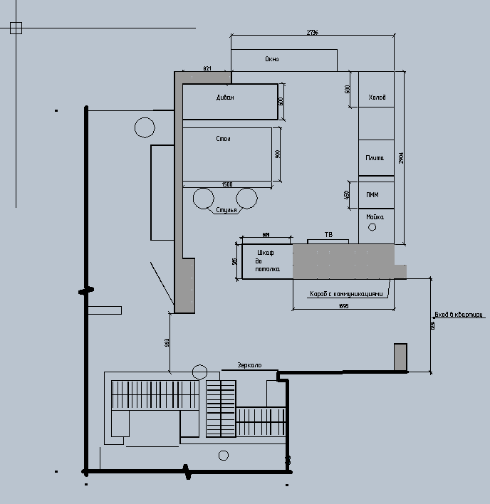
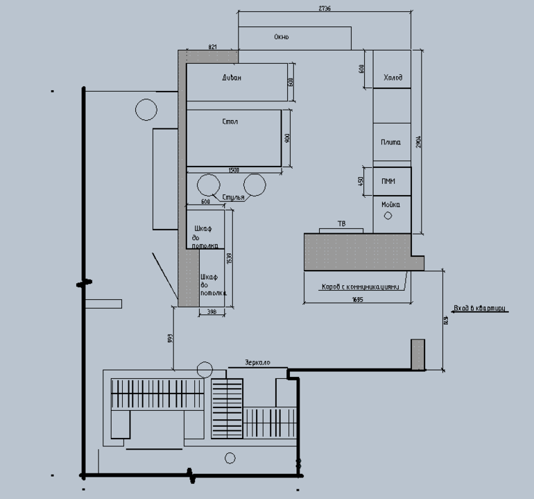
Схематично будущая кухня и вопрос как удобнее.
Авторские проекты дизайнеров.(Посты не по теме будут удаляться!)Добрый день! Посоветуйте, как удобнее будет расположение шкафов в кухне. 
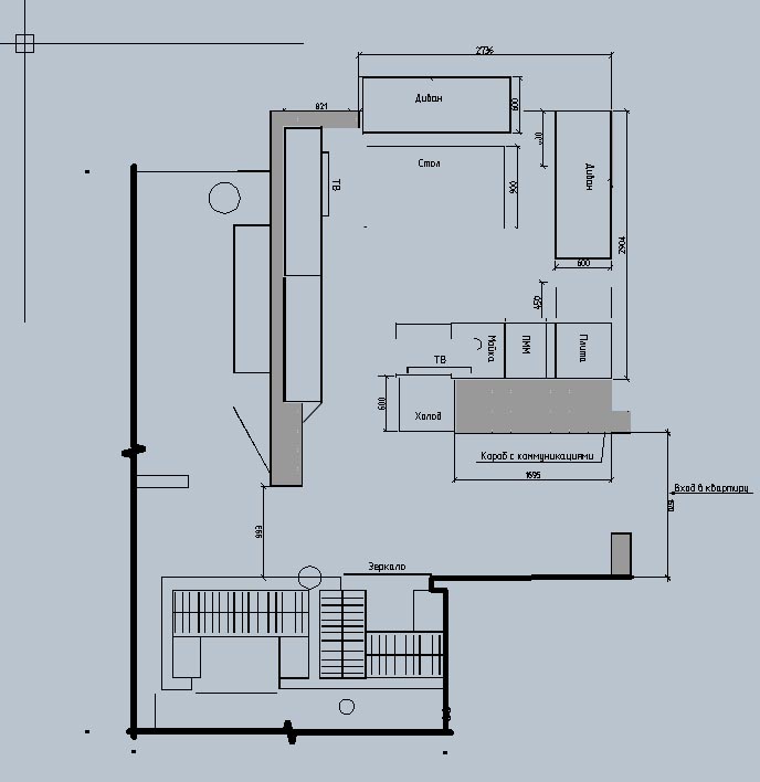
Первый вариант первоначальный так будет по планировке в сданном доме. Второй я нарисовала как альтернативный вариант. Дверь не планируется ставить. Хочется, чтобы было достаточно мест для хранения. И ещё по второму варианту не близко ли от входной двери будет проем в кухню, хочется чтобы с грязной зоной все-таки не пересекаться.
Марина
Второй вариант лучше. Я бы большой шкаф оставила (там где стол), а на месте маленького толстые полки до потолка. (это даст много объема)
02.01.2016
Ответить
Ирина
Сразу прорисуйте, где еще дополнительная техника стоять будет (чайник, микроволновка, пароварка, кофеварка, тостер и т.п.) разместите их на рабочей поверхности хватит Вам?
30.12.2015
Ответить
Анна
Из техники мультиварка и свч(думала их убрать в закрытый шкаф, чтобы на виду их не было. Чайник скорее всего будет на плите стоять. Блендер маленький тоже в шкаф. Мясорубка ещё есть и соковыжималка...эх, влезет ли все по шкафам?? Задумалась сейчас
30.12.2015
Ответить
Ирина
под технику еще и розетки просчитать не помешает, чтоб не выдергивать одно, если понадобилось другое, техника имелась в виду электро, что в постоянном пользовании, у меня к примеру на столешнице стоит. Рабочей зоны у вас маловато, лишь бы потом не пришлось и под технику ей делиться. Я лодырь))) техникой убранной в шкаф почти не пользуюсь, но и выставку из нее не устраиваю))) так по минимуму стоит на столешке, но место занимает.
30.12.2015
Ответить
Анна
Да, конечно, в первую очередь для розеток и хочу расстановку сделать. Сейчас вот в постоянном пользовании только микроволновка и чайник электрический ( но с этой кухне заменю его на обычный на плиту ставить скорее всего). В идеале бы вообще сделала розетки в шкафах для мультиварки например. И там же в шкафу включала её. Видела у кого-то так сделано было.
30.12.2015
Ответить
Анна
Если просто дверками шкафа закрыть без задней стенки микроволновку и мультиварку (скороварка у нас, в процессе варки не открываю даже) с соблюдением свободного пространства вокруг. А про свч думала при разогревании дверку шкафа не закрывать при разогревании. Это на 3 минуты максимум, зато весь день она не на виду.
31.12.2015
Ответить
Ольга
У вас очень маленькая рабочая поверхность. Готовить негде. Я бы вместо шкафа до потолка поставила холодильник, плиту передвинула на один ящик ближе к окну. У вас получится между мойкой и плитой 95 см рабочей поверхности. По расположению шкафов оба варианта неплохие, но мне второй больше нравится. Грязная зона у вас почти 2 м- это не так и много, но думаю, достаточно, чтобы грязь за ногами не таскать.
30.12.2015
Ответить
плиту переставить надо из угла и много по мелочи, но в целом идея столовая-гостиная зона у окна, готовка вглубь кухни
Зона отдыха на подоконнике