Комната для девочки 11 лет.
Интерьерное решение детской комнатыЗдравствуйте! Помогите, пожалуйста, сделать выбор расстановки мебели в комнате для девочки 11 лет.
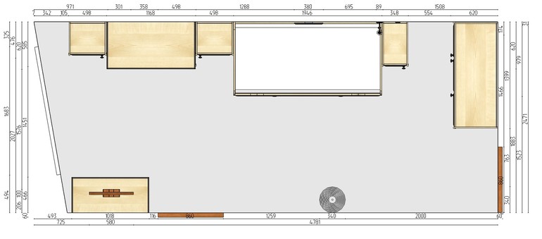
Комната 15 кв. м, но длинная и узкая, как вагон, да еще и со скосом. Дверь по длинной стене ведет на балкон - она белая пластиковая со стеклом. У меня 2 варианта, помогите сделать выбор, или предложите свой вариант, как бы сделали Вы. Буду благодарна за любой совет и мнение.
И еще вопрос: может быть у кого-то есть мебель Ангстрем, как она в эксплуатации, нравится Вам?
1 вариант:

Вид сверху:

2 вариант (здесь меня смущает стеллаж над кроватью - не люблю, когда что-то висит над головой во время сна - опасно и вызывает беспокойство, но это альтернатива тумбочке):

Вид сверху:

Fomi_Anna
А почему бы стол не поставить к окну? Стеллаж свет на стол перекрывает :( В первом варианте хорошо то, что комната визуально не такая вытянутая становится.
09.01.2016
Ответить
Юлия
Спасибо. А как к окну поставить: так же наискосок, как стена идет, или прямо? Комната на южной стороне, с обеда всегда солнце. Сейчас там столешница вдоль окна от стены до стены - ребенку не удобно - солнце светит прямо в лицо + от батареи очень жарко (
09.01.2016
Ответить
Fomi_Anna
Тогда можно просто стеллажи все справа поставить, или слева какой-то низкий стеллаж, чтобы свет не перекрывал. Южная сторона действительно ярко :)
09.01.2016
Ответить
Юлия
Низкого стеллажа в этой коллекции к сожалению нет. А вот все стеллажи справа поставить - это мысль. Спасибо!
09.01.2016
Ответить
Oksana
Fomi_Anna прямо с языка сняла "просто стеллажи все справа поставить", а остальное, как в перво варианте. :-))))
10.01.2016
Ответить
Oksana
Жаль, что стеллажей пониже не выпускают. Ну, если над столом две открытые полочки для учебников, то будет более законченный вид. Я подобный уголок школьника подобным образом обыграла (только у нас пока книги и учебники на полку не переезжают - младшая залезает и всё рвёт. Но это временно):
10.01.2016
Ответить
Юлия
Как у Вас уютно и все продумано! Полку повешу позже - у нас сынок тоже очень любопытничает - чтобы не было соблазна залазить на стол ))
10.01.2016
Ответить
Oksana
у нас столешница - это остатки подоконника. А ножки в ИКЕА куплены. Стулья и закрытая полка там же... Шкафу лет 20, не меньше. А идею со шторами подсмотрела опять же в ИКЕА.
10.01.2016
Ответить
Юлия
У нас в городе нет ИКЕА (( Только доставка из Новосибирска + 15% к стоимости в магазине. Да и покупать, не видя вещь в живую, я не люблю.
10.01.2016
Ответить