Коллективный разум, советы!!!! ПОЖАЛУЙСТА!!!
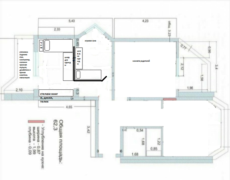
Авторские проекты дизайнеров.(Посты не по теме будут удаляться!)Наша долгожданная квартира!!! П44т двушка торцевая. Нас четверо: мы с мужем и дети, мальчик скоро 15 лет и шиложоп девчушка))))скоро 2 года . Я сломала всю голову
как спланировать пространство? Забрать нам с дочкой большую, а сыну отдать 14 кв? Или пока устроить себе спальню в маленькой. А большую поделить на комнату сына и мини гостиную ? А еще же есть кухня 13 кв , там я хотела бы сделать кухню -гостиную 

Elena
Я бы предложила комнату с эркером для родителей и дочки, а вторую комнату сыну.
Спальное место дочки и родителей можно разделить стеллажом или шторами, чтобы не строить стен. Комнату сына оформить нейтрально, чтобы была возможность потом переделать ее в спальную дочери. Но даже если сын задержится у родительского очага, то всем должно быть комфортно.
Строить перегородки в комнате с эркером, мне кажется, не лучшее решение.
Спальное место дочки и родителей можно разделить стеллажом или шторами, чтобы не строить стен. Комнату сына оформить нейтрально, чтобы была возможность потом переделать ее в спальную дочери. Но даже если сын задержится у родительского очага, то всем должно быть комфортно.
Строить перегородки в комнате с эркером, мне кажется, не лучшее решение.
22.11.2016
Ответить
Elena
где-то недавно видела проект, когда в такой квартире вынесли кухню в коридор напротив санузлов, детям маленькую комнату и кухню отдали, большую комнату поделили на спальню для родителей и мини-гостиную..
вот нашла! надеюсь можно тут оставлять ссылки на другие порталы... http://ideas.vdolevke.ru/posts/29664/dvuhkomnatnaya-59m2-moskva-mperovo/
22.11.2016
Ответить
Стася
Спасибо , столько искала вариантов , этого не видела. Только не пойму в коридоре вент шахта , они ее снесли?
22.11.2016
Ответить
Elena
мне прям очень запомнился этот вариант, я думала, что невозможно решить в этой планировке столько задач)))
думаю, что его там не было.. серия дома наверное немного другая.. если так делать, вам наверное как-то обыгрывать вентшахту придется.. например напротив санузлов оставлять только мойку, варку, поверхность между ними, а на территорию кухни после вентшахты уносить холод и колонку с техникой или ее подобие. а по длине венткороба совсем неглубокий шкафчик пускать под запасы..
22.11.2016
Ответить
Евгения Акимова ПРО Дизайнер
Стася, сразу напишу, что хоть по ссылке и написано, что кухню вынесли в коридор и это легко согласовать, просто имейте ввиду, что конкректно этот вариант на 99% не согласуем, даже если не учитывать снос вентиляционной шахты.
22.11.2016
Ответить
Стася
Спасибо , на снос шахты я никогда не пойду. Сейчас живу в квартире , где новый , сосед над нами ее снес. Врагу не пожелаешь .Вроде все хорошо в этом проекте , но готовить напротив туалета (((..... это не для меня. Для меня все таки важна кухня , гости , атмосфера
22.11.2016
Ответить
Стася
Евгения , не подскажете , сколько будет стоит проект нашей квартиры у вас ? Только такой , чтобы мебель была реальная и стояла в магазине ,в нашем ценовом диапозоне, а не на заказ ( финансово мы не потянем) Спасибо, ответ жду в личку
22.11.2016
Ответить
Екатерина
Идеальный вариант поделить большую. И сделать комп стол и даже камод с вещами сыну На балконе. Ня днях смотрела трёшку с такой комнатой, сразу представила такой вариант
22.11.2016
Ответить
Марина
А может быть, нижнюю комнату на плане разделить на две маленькие детские спальни? Сыну дальнюю часть, с балконом, а дочке с треугольным эркером. Так окна будут в каждой комнатке. Чтобы каждому из детей была возможность уединиться. сделать уроки, поспать днем и проч. Основная жизнь семьи всего равно проходит в зале и на кухне. А верхняя на плане комната зал-спальня родителей. Кухня на месте. Если сын, когда вырастет, будет жить не с вами, то перегородку потом убрать.
Но всё это я, конечно, чисто теоретически предлагаю.
21.11.2016
Ответить
Оля (я скоро мамой стану снова)
мне нравится эта идея, будут 2 небольшие комнаты, причем перегородки можно поставить из гипсокартона и получится 2 входа изолированных и размер стены позволит поставить спальное место и рабочее место
22.11.2016
Ответить
Рыжая
Я бы большую комнату поделила на 2 части детям. Мальчику хоть и 15, он еще несколько лет будет в детском возрасте и сидеть в компьютерных играх, а играть в стрелялки до седых волос будет, поэтому утеплить лоджию и устроить ему там кабинет, вот там пусть и стреляет и поет. Так как громкие стрелялки и песни ни вам сильно мешать не будут, ни соседям. Доче после дележки отдать меньшую комнату, ей еще лет 8-10 не понадобиться много шкафов-зеркал и т.д., ей нужно пространство где разбежаться и раскидать игрушки, поэтому одного шкафа и кровати - из большой мебели ей достаточно, да и лоджия в комнате для неё сейчас не безопасна. А лет через 8-10 сын женится, дай бог квартиру себе купит, снесете стену и отдадите ей всю комнату.
21.11.2016
Ответить
Marina
Сыну маленькую, вам с дочкой большую. Видела в сети фото ремонта в такой же квартире как ваша. Там в маленькой комнате еще прямо от входа гардеробная была сделана, оставшаяся часть комнаты была хоть и маленькой, но вполне функциональной.
21.11.2016
Ответить
Оксана
Я не могу особо подсказать , но то что я знаю практически наверняка что старший сын поживет в этой комнате не так много (учеба и взрослая жизнь уже на пороге) да и вообще в ней будет появляться не так часто . Лично у нас было так . Я была младше и у меня была отдельная комната , а вот у брата это и его комната и зал и все на свете . Удобный диван и комп с телевизором все что ему надо было , а появлялись дома можно сказать только на ночь , пришли поспали и дальше гулять учиться и т.д. А вообще спросите у старшего сына чего он хочет и отталкивайтесь от его желания , так как доче пока не так важно какая будет комната , ей главное чтоб к Вам поближе.
21.11.2016
Ответить