Интерьер дома в стиле прованс
Авторские проекты дизайнеров.(Посты не по теме будут удаляться!)Хорошо иметь большую семью! И большой дом, где всем хватает места. :) Вот как у моих заказчиков: им, семье из двух взрослых и четырёх детей, повезло жить в кирпичном таунхаусе площадью примерно 145 квадратных метров. Четверо детей - это дочь-подросток, у которой отдельная спальня в мансарде, двойняшки помладше - им досталась одна детская на двоих, и совсем крохотное чудо, спальное место которого мы покажем чуть ниже. В оформлении интерьера мы использовали стиль прованс - по-настоящему домашний и уютный. Ну что, прогуляемся по комнатам?


Кресло - мебель на любителя, не все понимают его прелесть. В некоторых случаях оно становится сборщиком одежды, сумок и игрушек. :) Ставить его в угол «ради красоты» при таком раскладе - не лучшая идея, поскольку хорошее кресло стоит ого-го сколько! По опыту скажу, что этот предмет мебели чаще покупают те люди, которые реально кайфуют от процесса: сесть в кресло у камина, почитать книжку, выпить чашку ароматного чая или бокал вина.
Кстати, к слову о каминах. Они характерны для стиля прованс, но перспектива возиться с дровами, брикетами и дымоходами радует далеко не всех. В таком случае советую обратить внимание на фальш-камины с большими свечами - они становятся прекрасной альтернативой электрокамину, который в выключенном состоянии смотрится не так прикольно (хотя, опять-таки, на любителя).

А вот здесь, на месте этого дивана, был санузел. Лестница вообще была в холле, но заказчику хотелось перепланировать дом так, чтобы подняться на второй этаж можно было из гостиной. При этом саму гостиную тоже хотелось увеличить, что вполне объяснимо при такой большой семье. В общем, глядя на картинку ниже, вы можете представить, как мало было места в кухне для семьи из 6 человек.
Перенос ванной комнаты был самой сложной частью работы, потому что мы долго искали интересное решение. В результате мы зашили водопроводные трубы в стену, в короб, и сделали в нём окно с зеркальными «стёклами», занавесочками и светильником на подоконнике.

Кстати, обратите внимание на шторы в кухне, их там две и они разные. Опускающаяся римская штора приходится на рабочую зону, поэтому более функциональна. А зелёная - длинная, в пол - добавляет уюта, и делает кухню-гостиную очень домашней и обжитой.

Вот мы добрались и до родительской спальни. Уютные цвета, прелестный прованс :)) Благодаря широкому бордюру под потолком стены выглядят не пустыми, а вполне себе завершёнными. Мы даже обошлись без традиционных картин в изголовье двуспальной кровати.)


А вот на этих картинках видна микро-детская для младшего ребёнка, который пока предпочитает спать рядом с родителями. В будущем здесь планируется сделать рабочую зону.

Я редко показываю санузлы, потому что они далеко не всегда входят в дизайн-проект. Но не в этот раз.) На фото совмещены два вида, то есть, если стоять лицом к зеркалу, то унитаз и биде находятся за спиной. Если бы у меня спросили, что нужно заранее продумать в ванной, кроме её внешнего вида и сантехники, я бы советовал обратить внимание на выбор хорошего освещения. Особенно возле зеркала, ведь именно тут совершаются ежедневные косметические процедуры: бритьё, стрижка триммером, нанесение макияжа и кремиков, ну и всё в таком духе.

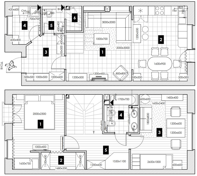
Планы двух этажей. Вверху - план первого этажа, внизу - план второго. На первом этаже, как я уже писал выше, мы увеличили зону гостиной за счёт холла, благодаря чему лестница тоже сместилась в гостиную (цифра 1).
На втором этаже можно рассмотреть спальню родителей (под цифрой 2 видна гардеробная), санузел и детскую двойняшек.
Всем хорошего настроения и прекрасных выходных!