Расстановка в детской
Интерьерное решение детской комнатыИмеем комнату 12,3 м2, балкон 2,7 м2. Балкон будет объединён с комнатой. На его месте будет рабочее место. 
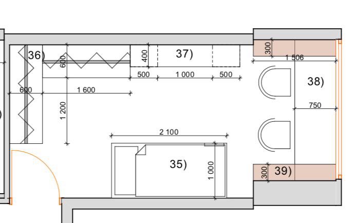
Комната для девочек 2-х и 8-ми лет.
Есть примерный план расстановки 
На плане:
35) 2-х ярусная кровать
36) угловой шкаф купе
37) закрытые стеллажи для книг и игрушек
38) рабочий стол на два места
39) пенал для книг над столом открытые полки, под столом закрытые.
Рабочее место точно останется неизменным.
Меня смущают шкафы, кажется их очень много. Но и они тоже нужны, может угловой на обычный заменить? Или кровать переставить? Не пойму что не так... помогите, пожалуйста! Что придумать можно?
Виктория
Может, на лоджии сделать два стола вдоль коротких стен, т.е. чтобы спинами друг к другу сидеть? Две кровати поставить вдоль длинной стены, а вдоль короткой - шкафы?
Все-таки двух ярусная кровать - это крайнее решение, как мне кажется.
А радиаторы где планируются?
12.04.2017
Ответить
Олеся
А вот про радиаторы то я и забыла 🙈 Хотим двухъярусную что бы сьэкономить место, шкаф думаю поменять на обычный... спасибо за мнение!
13.04.2017
Ответить
Сальма♥МЕБЕЛЬ♥Орматек♥38Попуг
возможно исполнение другого стеллажа под игрушки (все закрытые полки сделать или вообще другая конструкция)
здесь максимально использованы стандартные модули серии (серия Классика, фабрика 38 Попугаев), на которую сейчас акция идет
Если заинтересует вариант, пишите - придумаем и другие варианты расстановки ;)
12.04.2017
Ответить
Наталья
Мне, кажется, угловой шкаф будет очень массивно выглядеть. Может есть возможность уменьшить шкаф и оставить его только по одной стене? У нас новая детская будет почти такой же по размеру и тоже 2 дочки похожего возраста.
12.04.2017
Ответить
Олеся
Вот скорее всего выберу такой вариант, смущает меня именно угловой. У вас уже есть наброски детской? Можно глянуть, очень интересно )))
12.04.2017
Ответить
Irylen
как то лихо вы избавили от этих частей стен
Так то это несущая конструкция.
Может рассмотреть вариант рабочей зоны вокруг этого подоконника?
Так то это несущая конструкция.
Может рассмотреть вариант рабочей зоны вокруг этого подоконника?
12.04.2017
Ответить
Олеся
А как определить несущую стену? Вокруг подоконника не получится для двоих. Даже не представляю что там можно сделать вокруг него... а по поводу шкафов что думаете?
12.04.2017
Ответить
Irylen
ну я чисто взглядом непрофессионала посмотрела на толщину стены.
у нас дома шкаф 160х60, там хранятся вещи двух взрослых и одного ребенка. Вполне хватает. Считаю, что чем меньше мест для хранения вещей, тем чаще мы проводим ревизию в вещах и реже страдаем шопоголизмом))))
может как-то так?
Подоконник переходит в стол
Подоконник переходит в стол
12.04.2017
Ответить
Олеся
Муж говорит там керамзитный блок, проблем не должно быть. По поводу шкафа и места в нем абсолютно согласна ) перед переездом будет капитальная зачистка и расхломление ) спасибо за мнение )
12.04.2017
Ответить
Valer.ka
Олеся, я наверное заведу скоро на форуме свою колонку: дизайн-проекты:)
Если есть возможность, то скиньте проект комнаты и описание пожеланий мне на почту: valer.ka35@yandex.ru
Я попрошу подобрать (или сделать новый) проект. Перечень мебели у Вас уже окончательный? А ремонт когда планируете делать в комнате? Время есть еще?
Жду. Не затягивайте!
12.04.2017
Ответить
Олеся
Время есть, мебель не окончательна. Но мне проект не нужен. Мне нужено немного помочь направить меня в нужное русло ) а колонку почему бы и не завести 😉
12.04.2017
Ответить