Проект кухни. Помогите и оцените!
Интерьерное решение кухниДобрый день. Вот сделали проект кухни. Холодильник будет другой. Слева столешница, она еще на окно уходить будет. Вопросы у меня есть. 
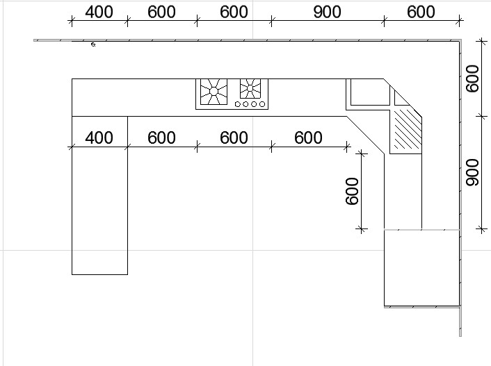
1. Подвинуть газовую плиту вправо, но газовая труба 30 см от стены слева. А потом идет посудомойка. Так можно?
2. Раковина угловая или около холодильника?
3. Цвет. Хочу 2 цвета, но не сильно маркий. 2 детей сразу отпечатки оставят. Какие цвета выбирать?
Спасибо вам за предложения.
Ангелина-Кухни /Шкафы на заказ
угловая мойка на любителя, не могу сказать что она не удобна, мне вполне нравится, учитывая что у вас 900х900 угол и дверь будет не слишком маленькая
я бы сверху оба шкафа сделала бы либо распашные или горизонтальные, лучше горизонт , буде лаконично смотреться.
21.04.2017
Ответить
Irylen
у меня угловая мойка, мне нравится. Но вот эта узкая дверка снизу, если нужно что-то внутри подкрутить (ну кран к примеру разболтался), муж всеми бранными словами ругается, пока туда залезет. Поэтому я бы сделала по короткой стене и снизу с двумя распашными дверками)))) (или ящиками которые можно полностью вынуть при необходимости)
19.04.2017
Ответить
Ольга
В вашем случае, я бы над холодильником сделала шкаф, чтобы вписать его в гарнитур. И раковину сделала по короткой стороне возле угла. Я бы под мойку столько места не отдала, учитывая, что есть ПММ. По цвету могу сказать, что светлый, что темный - если однотон, то пятна видны. Я бы выбрала светлую фактуру дерева, по моему, это самый выигрышный вариант. На матовом пластике отпечатки видно не меньше, чем на глянце.
18.04.2017
Ответить
Диляра
Шкаф под раковину сделала бы буквой Г, вместо скошенного, так будет удобнее, лично для себя это поняла, спина меньше болит, но это имхо. А ПММ нельзя поменять местами со шкафом из выдвижных ящиков, справа будет сподручнее, плюс раковина будет в доступе во время открытой дверцы машинки.
18.04.2017
Ответить
Tatyana Tiffany
Что будет в том шкафу, который слева от плиты, и как вы планируете туда комфортно залезать под столешницей? Кухня вроде такая большая, а нижних ящиков маловато.
Расположение ПММ неудобное. Напляшетесь вокруг почем зря. Нарисуйте ее с открытой дверцей )) и представьте, что вот она открыта, а вы вынимаете посуду, столовые приборы и сразу их убираете на место.... вам придется тесниться в маленьком закутке, образованном получившимся углом... Посуда из раковины - ну тут дело привычки, мы вообще, например, грязную посуду не кладем туда, зачем? сразу в ПММ... но и то - стряхнуть остатки пищи в мусорное ведро придется же, а если ведро под мойкой - только в два приема.
18.04.2017
Ответить
selena1002
Светлана, добрый день!
1) Ничего страшного, если отодвинуть варочную на 60 см вправо. Она соединяется со стояком гибким шлангом, поэтому ее можно двигать и дальше. А первым у окна рекомендую сделать что-то типа буфета - труба будет совсем закрыта тогда.
2) Раковину оставьте угловой, так будет и рационально и красиво. Холодильник
советую обрамить и сделать сверху шкаф.
И вытяжку совершенно необязательно делать в коротком шкафу и выдвижную при этом. Поставьте плоскую мощную вытяжку.
Сейчас у меня нет времени, к сожалению. Если будут вопросы, пишите мне на почту astella11@yandex.ru. Да, шкафы не надо делать такие разные и нестандартные, это никому не нужно и не красиво.
Сейчас у меня нет времени, к сожалению. Если будут вопросы, пишите мне на почту astella11@yandex.ru. Да, шкафы не надо делать такие разные и нестандартные, это никому не нужно и не красиво.
18.04.2017
Ответить
Datura
Если вы будете стоять у раковины, то не сможете открыть ПММ в этот же момент, а, говорят, удобно чтоб одновременно. Я свою ПММ перенесла, и вам можно ее подвинуть к плите.
18.04.2017
Ответить
Mamma_Mashutka
А мне нравится идея со столешницей-подоконником, места сразу больше становится, а по мне, так это дополнительное преимущество.Мойка, как мне кажется, сейчас имеет идеальное расположение, потому что ее не рекомендуют располагать вплотную, ни к холодильнику, ни к плите.Расстояние между тем и другим, не менее 60-ти см.А мойку можно купить специальную, угловую.
18.04.2017
Ответить
Olga Vlasova
зачем Вам столешница-подоконник?
раковину оставьте в углу. чтобы сделать не столь громоздкой, можно не ставить такой угловой шкаф, сделать обычные.
снизу сделайте матовое покрытие - отпечатков не будет видно. цвет как посоветовать - на Ваш вкус.
на счет газовой трубы ничего не подскажу.
18.04.2017
Ответить
Светлана
у нас изначально нет подоконника, планировали столешницу. А стол в другом месте стоять будет, в гостиной собираться будем, а тут кофе выпить. Розетки все вывели около окна
18.04.2017
Ответить