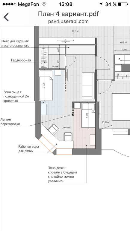
Детская.... мальчику 6 лет, девочке 3
Вопросы и ответы
Совсем плохо да? 
Мне тут пишут гардеробная не нужна.. сделайте шкаф, го блин им переодеваться то как? Просить другого из комнаты выйти? ((( сыну через 4 года 10, дочке 7.... уже большие будут
Плюс я просила зонирование, чтобы у каждого свой угол
Анна
Тоже рву голову над вопросом... Решила просто посередине комнаты раздвижную дверь.... И кровати чердаки невысокие, со столом. У каждого свой....
23.08.2017
Ответить
Лена
Гардеробная- это очень удобно. Если есть место, то лучше она, чем шкаф и видом и функционалом
21.08.2017
Ответить
Datura
Мне нравится первый вариант, только убрала бы диван, лучше место для игр оставить
21.08.2017
Ответить
Елена
Я не спец по дизайну. Но что я бы подкорректировала. Стол продлила до стены вправо в зону девочки, и добавила стеллажные полочки над столом.
21.08.2017
Ответить
Елена
По-моему, шикарный вариант номер 1.
С другой стороны, если Вас что-то смущает, то года через 4 сделаете как вариант номер1, а пока номер 2.
21.08.2017
Ответить
Елена
А выдумаете, дети будут играть на зоне игр?!))
Не передивайте по этому поводу, возле окна хорошая площадь для игр, у дочки есть угол с комодом, да и кто запрещает играть на кровати!?)
И еще, вы поймите, что все зону у окна не вместятся, нужно чем то жертвовать, по -моему удачная планировка даже с этой точки зрения.
21.08.2017
Ответить
JEKROMARIOFEDER
Я за второй вариант. Нет угла стола (зачем Вам лишние травмоопасные углы в детской?), стол больше и прямой. И дочкина перегородка аккурантее смотрится, а не перегораживает полкомнаты, как в первом варианте. Да и на мой взгляд кровать в углу у окошка уютнее намного. С другой стороны, дочка с нее будет всегда лицезреть зону брата, что минус к их обособленности. Но может сейчас, это наоборот и ни к чему? А как подрастут, можно будет переставить дочкину кровать к перегородке как на первом варианте. Только тумбочка уже не поместится рядом с кроватью. Ну вместо нее может предусмотреть тумбу за изголовьем? На всю глубину кровати (надеюсь понятно, какого плана я имею ввиду). Место позволяет. На счет гардеробной и переодеваний, наверное, Вы правы.
21.08.2017
Ответить
Сальма♥МЕБЕЛЬ♥Орматек♥38Попуг
мне ОЧЕНЬ нравится идея с перегородками! в 1м варианте с загогулиной, где дочкина кровать - больше нра
21.08.2017
Ответить
Оставшиеся комментарии доступны после регистрации
Зарегистрируйтесь и получите полный доступ ко всем функциям сайта.