Вопрос по планировке квартиры
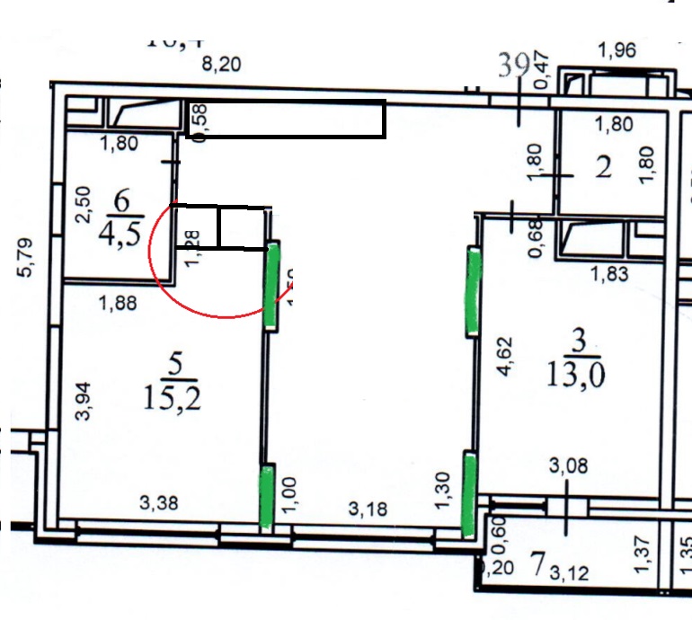
Всем привет. Подскажите пожалуйста как лучше сделать планировку стен в крайней комнате - отметил красным.Не хочется иметь бесполезный коридор при входе в нее.Стен нет совсем -новостройка. На рисунке несущие обозначены зеленым цветом.

Дмитрий
Всем Спасибо. мне больше по душе вариант Елены. Теперь вопрос - согласуют ли такую перпланировку ?
10.10.2017
Ответить
selena1002
Дмитрий, добрый день!
Можно сделать следующим образом, стену перенести вплотную к несущим, расширив коридор. В нем все равно будут шкафы, поэтому расширить не помешает)). Стену су максимально перенести к дверному проему в спальню (это разрешено). А вход в су сделать из спальни (так называемый, американский вариант). Если не нравится, можно и со стороны коридора оставить.
Тогда ненужный тамбур уберется, а площадь будет использована целиком.
Тогда ненужный тамбур уберется, а площадь будет использована целиком.
10.10.2017
Ответить
Оксана (дизайнер, инста: @persona_story)
Дмитрий, коридор у Вас совсем не бесполезный, а очень даже! Вообще не понятны цели и задачи, но можно, как вариант для симметрии стены крайних комнат немного "утопить", чтобы зрительно уйти от "коридорной системы". Эти комнаты от этого не пострадают, тем более двери в этих комнатах будут открываться наружу.
Можно один с/у присоединить к комнате. Узаконят, т.к. есть другой.
Кухню в коридор переносить не советую, да и могут не узаконить.
А в общем, квартира - "шикардос"! )
09.10.2017
Ответить
Юлия
для себя я бы сделала кухню в коридоре, посередине гостинную, тот узел, который вам не нравится можно поделить пополам, со стороны спальни - шкаф, со стороны кухни - встроенная колонна и холодильник.
в спальне личный санузел. вторая комната (бывшая кухня) - детская, вход ил гостинной либо из коридора, я бы для себя сделала из гостиной, а на месте бывшей двери - вешалку под одежду и пуфик
для себя я бы сделала кухню в коридоре, посередине гостинную, тот узел, который вам не нравится можно поделить пополам, со стороны спальни - шкаф, со стороны кухни - встроенная колонна и холодильник.
в спальне личный санузел. вторая комната (бывшая кухня) - детская, вход ил гостинной либо из коридора, я бы для себя сделала из гостиной, а на месте бывшей двери - вешалку под одежду и пуфик
09.10.2017
Ответить
Татьяна Специалист по недвижимости
можно просто бесполезное пространство в полезное превратить, поставьте в угол шкаф или стеллаж и закуток будет задействован
09.10.2017
Ответить
Елена Тарасова (дизайн, 3D)
Дмитрий, нужно смотреть общую концепцию квартиры (перепланировку). А коридочик этот либо останется в комнате либо в коридоре. При такой плнировке другого не дано.
09.10.2017
Ответить