Помощь в планировке
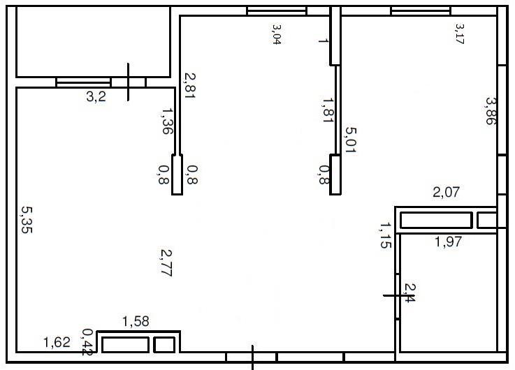
Перепланировки стен. Согласование перепланировки квартир и нежилых помещений.Нужна помощь в планировке. Есть вот такая двушка в новостройке. Стен нет, есть только пилоны и тех короба, остальное наметили в 1 кирпич.
Семья - двое взрослых. Нужны - кухня-гостиная, кабинет и спальня. Спальню планирую сделать рядом с с/у, там нужна только 2сп кровать, 2 мини тумбочки и шкаф. Посередине - кабинет, здесь нужны 2 стола - рабочий с компом и для творчества (увлекаюсь декупажем), диван, шкаф для книг и всякой всячины для творчества. Кухня-гостиная - сама кухня, стол для еды, зона с диваном и ТВ.
Как не кручу, всё комнаты становятся уменьшаются, а холл наоборот увеличивается. Была ещё мечта сделать гардеробную, но её вообще не вижу куда втиснуть.
Здесь убраны стены, которые нарисовал застройщик, оставила только пилоны и те, то не думала переносить:
вход в кабинет из гостиной (а можно из спальни). Вход в гардеробную из спальни, если это именно гардеробная, а не кладовка - тогда вход из коридора.
Еще была похожая планировка
иногда, есть возможность сместить входную дверь законным путем, может быть и у вас есть такая возможность
а вообще, конечно, планировки разрабатываются конкретно для каждого проекта. Если не справитесь - обращайтесь, помогу. Не такие большие деньги, зато у вас будет четкое представление вашей квартиры
и вот тут еще похожий проект
