Как сделать?
Интерьерное решение жилых помещений.
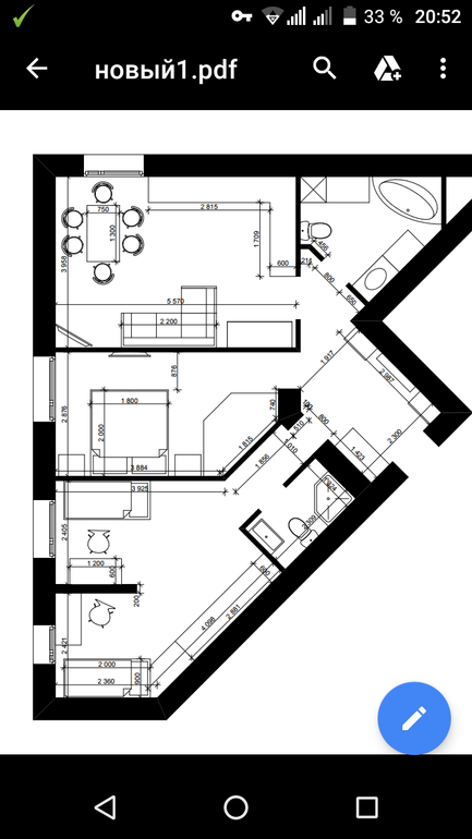
здравствуйте.надеемся получить ключи от этой квартиры этим летом.новостройка.угловая.первая наша своя квартира)уже почитала что покупать лучше более квадратной формы кв и не угловые)проживать будут в ней:папа,мама,двое детей-девочки(4,5 г и 1,8г)но возможно в будущем ещё родим.хочется кухню с гостиной и место хранения вещей(может гардеробную) в детской запланировать или поставить стол для будущей школьницы.буду рада вашим предложениям и идеям.
Datura
очень все примерно, но идея, думаю, ясна - максимально маленькая изолированная спальня, остальное пространство объединить максимально, отказаться от гардеробной в пользу обычных шкафов, благо, материалы сейчас позволяют сделать шкафы чуть ли ни дизайн-объектом. Нарисовала я шкафов - тьму) но без размеров думать о них сложно
очень все примерно, но идея, думаю, ясна - максимально маленькая изолированная спальня, остальное пространство объединить максимально, отказаться от гардеробной в пользу обычных шкафов, благо, материалы сейчас позволяют сделать шкафы чуть ли ни дизайн-объектом. Нарисовала я шкафов - тьму) но без размеров думать о них сложно
20.04.2018
Ответить
Елена
Сама тут писала подобный пост. Много было советов. Но все не то. В итоге нам сделал дизайнер планировку. Небо и земля.
Жить в квартире не один год. И стоимость услуг дизайнера (если не весь дизайн проект) по сравнению с тем, что на ремонт тратится - копейки.
19.04.2018
Ответить
Валентина
Спасибо.такой вариант тоже рассматриваем. Можете подсказать дизайнера?
19.04.2018
Ответить
Валентина
Спасибо.Так тоже думали.но над спальней будет кухня, как то не хочется(
19.04.2018
Ответить
Оксана (дизайнер, инста: @persona_story)
Как сделать? Хотя бы планировку с дизайнером , чтобы не испортить функционал.
19.04.2018
Ответить
Евгения
А мне кажется, невозможно вместить сюда и гостиную, и гардеробную, и еще спальню вам и детскую. Если попытаетесь, получите кучу тесных пространств. Я бы комнату 20 м изолировала и отдала детям. Вторую под вашу спальню. Без гостиной можно обойтись. Вместо гардеробной комнаты - большие шкафы. Я понимаю, что хочется все-все, но на таком метраже нереально.
19.04.2018
Ответить
Almost
20 метровую комнату делить на 2 - спальня и детская.
между залом и кухней стена несущая? зал бы не стала трогать
19.04.2018
Ответить
Irylen
делайте большой шкаф в прихожей, у вас там слон поместиться
комнату 20,7 можно поделить на две: небольшую спальню и небольшую гостиную со входом из кухни
столько окон - чудесно!
19.04.2018
Ответить
Дизайнер 3D
Разработаю Дизайн проект интерьера _ любого вашего помещения.
Какая у вас Площадь ?? Стиль интерьера который вы рассматриваете ?? В ответ пришлю или озвучу цену.
Список Услуг https://www.babyblog.ru/user/id2191345/22481
Мой дневникhttps://www.babyblog.ru/user/lenta/id2191345
Без праздников и выходных с 9-30 до 21-00
Цены ниже ББшек и Дизайн студий. __
Цены доступные для каждого.
19.04.2018
Ответить
то