Шкаф в коридор
Интерьерное решение прихожих, коридорчиковДевочки, привет! Нужен в коридор шкаф до потолка! Считали в стильных, тк есть у них сертификат, получается дорого, 72 тысячи, просто полки! Подскажите пожалуйста, где еще посчитать? Если ничего не выберем врзьмем пакс икеа, но они не до потолка((
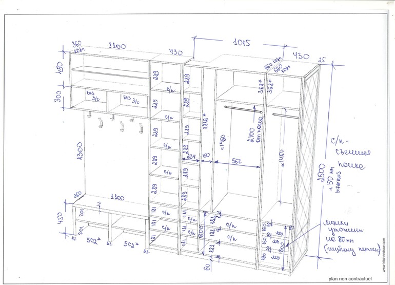
Эскиз прилагаю:)может, еще покритикуете- слева половина техническая, для 2 пыдесосов, швабр, химии, вторая часть- верхняя одежда будет

selena1002
Добрый день!
Может быть для "стильных" это и не дорого, а для такого шкафа дорого. Может быть цена возросла из-за курса? Попробуйте в "Домиранг" посчитать. Мы покупали у них шкаф до потолка с раздвижными дверями, причем, с матовым зеркалом в середине на всех дверях. По длине он больше Вашего, наверное. И стоил он тогда около 40 т.руб. http://domirang.ru/
20.04.2018
Ответить
Наталья
Добрый. Убрала бы перегородки? на полках: используйте корзины/ящики и тд. 2 пылесоса-просто интерес- как используете? Один моющий-1 робот? Есть выдвижная конструкция компактная специально под ваши нужды швабры/щетки/но один пылесос-поищите в интернете.
19.04.2018
Ответить
Ольга. Строю дома www.kamen-dom.ru
шкаф на заказ делали, с противоположной стороны еще один шириной 1 метр, общая сумма со сборкой 200 000, заказывала в Маруся- мебель
шкаф на заказ делали, с противоположной стороны еще один шириной 1 метр, общая сумма со сборкой 200 000, заказывала в Маруся- мебель
19.04.2018
Ответить
Жаркое Лето
Странно
Мой шкаф 155 на 255 мдф видимые боковины 30см и массив двери они насчитали на 130тр
А у тебя не шпон боковины?
20.04.2018
Ответить
Ольга. Строю дома www.kamen-dom.ru
поднажми на них))) скажи что у меня дешевле было, я им уже столько клиентов привела пусть скидку дают!
20.04.2018
Ответить
Ольга. Строю дома www.kamen-dom.ru
шкаф мой покажи))) может "Красивый дом", подействует, я обсуждала с ними сотрудничество, но дальше разговоров не зашло
20.04.2018
Ответить
Fabiana
Делали шкаф в коридор, только правая стенка, наполнение, двери и прихожка справа. 3 с чемто метра, 43 тыс.р. Делали тут http://www.kupiteshkaf.ru/ Очень довольны!!!
19.04.2018
Ответить
Наталья
По правде говоря, не особо дорого насчитали. Если учесть, что это нестандартный размер, распил по вашему эскизу... Для примера, у нас шкаф до самого потолка, створки купе с зеркалами, два отсека: 1) под одежду, 2) инструмент мужа, сезонная обувь и пр. Мы платили 3 года назад сотку, но у нас усиленные полки, куда кладется инструмент + усиленные полозья ящиков (ящики огромные).
19.04.2018
Ответить