Зонирование 1-комнатной квартиры
Интерьерное решение жилых помещений.Всем привет!
Имеем однушку площадью 38 квадратов.
Хотелось бы грамотно зонировать на спальное и гостиное пространство.
Даже не представляю как это - гипсокартон? Или с помощью ДСП?
Очень хотелось бы посмотреть как это получилось у вас!
Спасибо!
selena1002
Аида, добрый день!
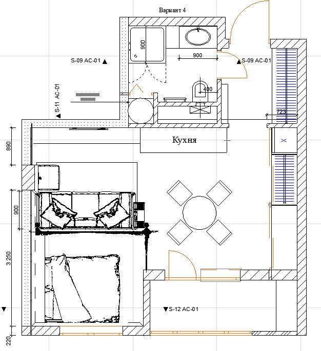
Не так давно делала план для однушки, правда, меньшей площади. Посмотрите, может быть пригодится)):
Зона спальни отделялась такими способами:
Можно много чего еще придумать).
Зона спальни отделялась такими способами:
Можно много чего еще придумать).
07.06.2018
Ответить
Счастье
перегородка
посмотрите такие перегородки в виде плотной шторы из экокожи
07.06.2018
Ответить
Анна
мне очень нравится вариант либо стена из гипсокартона, либо прям пеноблоки. в стене оставить окно для света и вентиляции, на него шторку или можно ставни декоративные, либо обязательно какое-то вентиляционное отверстие оставить.
двери распашные самые обычные, но со стеклом.
06.06.2018
Ответить
Almost
планировку посмотреть бы
если позволяет, то спальню вырезать с окном отдельно, остальное под гостиную, но 38 квадратов... лучше оставить как есть.
06.06.2018
Ответить
Datura
не стоит в маленьком пространстве делать монументальные перегородки, мне кажется. Все это красиво выглядит на картинках
06.06.2018
Ответить
Вероника
Мы хотели зонировать красивыми раздвижными дверями. Но такие двери, которые нам нравились, выходили около 300 тысяч. Дороговато))
Поэтому сложили из пеноблоков. Пеноблоки выгоднее гипсокартона, т.к. это нормальная стена, к которой потом можно крепить что угодно. Мы отделили угол под гардеробную и маленькую "нишу" с окном и шторки:
вот мой пост https://www.babyblog.ru/community/post/housedesign/3211915
вот мой пост https://www.babyblog.ru/community/post/housedesign/3211915
05.06.2018
Ответить
Фаина
Зонировали спальню стеклянной стационарной перегородкой. Из гостиной вход в кухню. На кухне окно в пол, поэтому в гостиную попадает и свет с балкона/из кухни, и из спальни.
05.06.2018
Ответить
Ната
Зонируют раздвижной перегородкой , как двери-купе. Я для знакомых, желавших купить однушку, пересмотрела множество проектов, этот мне больше всего понравился
https://zen.yandex.ru/media/field_rage/funkcionalnaia-odnushka-40-m-dlia-semi-s-tremia-detmi--5b06de549d5cb39718a1a980
Как раз в нем и зонирование просматривается
05.06.2018
Ответить
Анна
Вот только на астрономическую сумму, в которую обходится такой ремонт вместе с понтовым дизайн-проектом, можно было однушку поменять на двушку - это я про Москву, в других городах, возможно, и на трёшку. Но охота пуще неволи )))
В данном случае плюсуюсь к раздвижной перегородке, только не до потолка, чтобы движению воздуха не препятствовать.
05.06.2018
Ответить
Анна Сестренка
Двушку с хреновым ремонтом и ещё и непонятно в каком районе)))) могут быть куча доп причин, о которых мы не в теме, почему хозяева решили так сделать
05.06.2018
Ответить
Анна
В нормальном районе и в нормальном состоянии, ради интереса сравните сами полные затраты на такой мегапуперпонтовый проект и разницу в цене квартир. С хреновым - трёшку, если есть желание. Разве что район внутри Садового кольца не рассматриваю, это отдельный мир, где и конура стоит дороже виллы в Майами :) А почему люди делают у себя тот или иной дизайн и на что вообще тратят свои деньги - исключительно их индивидуальное дело
05.06.2018
Ответить
Анна
У меня некоторые есть - мы недавно меняли однушку на двушку и сейчас делаем ремонт ))) В ближнем Подмосковье разница цены, если брать там же, где продаёшь и в аналогичном доме - порядка полутора миллионов, в Москве (не Капотня и не Бульварное кольцо :) ) - 2-3 в зависимости от кучи параметров. Стоимость полного радикального ремонта с заменой мебели, перепланировками, понтовыми нестандартными решениями, элементами на заказ и т.п. в нынешних ценах - до бесконечности, а с проектом в раскрученной фирме - даже не буду представлять )))
05.06.2018
Ответить
Анна
при том еще - ремонт по дизайнерскому проекту строители делают раза в два дороже обычного, без проекта :о)))
06.06.2018
Ответить
Ната
Это однушка в Гомеле, Беларусь. С таким ремонтом можно было докинуть и трёшку купить.. У меня только одно объяснение сему маразму - однушку дали льготную по льготному кредиту как многодетным, причём явно это не первая квартира, иначе выделили бы трёшку.. В общем, 😵тут думаешь, как в трешке с двумя детьми расположиться, а народ и в однушке с тремя умудряется😂
05.06.2018
Ответить
Galya
Согласна)) тоже первая мысль такая, когда смотришь понтовые дизайн проекты малогабаритных квартир)
Кому что, конечно, но жить в однушке с 3мя детьми в любом интерьере это жесть)
Автор, на самом деле вопрос финансов - если готовы нехило потратиться, то стеклянные перегородки или раздвижные двери под заказ. Если хотите бюджетно, то стеллажи покупные и/или шторки.
Ну или планировка позволяет, сделать перепланировку так, чтобы расширить кухню за счет гостиной и оставить за дверью маленькую спальню.
05.06.2018
Ответить
Оставшиеся комментарии доступны после регистрации
Зарегистрируйтесь и получите полный доступ ко всем функциям сайта.
