Яркая квартира.
Авторские проекты дизайнеров.(Посты не по теме будут удаляться!)Наконец дошли руки фотки показать.
Уверена, что не все оценят дизайн. Проект выполнен для конкретных людей, которым уютно находится в такой ярком интерьера. В этом проекте много интересных моментов, хочу показать, что не надо бояться ярких цветов и экспериментов в интерьере.

осторожно, много фото
В данном проекте было много работы с подбором цветовых решений окраски стен, штор, мебели. Каждый цвет именно такого оттенка, которым он и должен быть
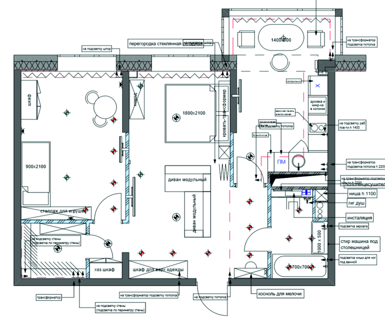
поменяла комп, проект остался на старом компе. Удалось найти только такой план (со светом), но для общего понимания хватит
Итак, дано двушка (60 квадратов) для семьи с ребенком

В этой квартире нет как таковой прихожей, сразу попадаем в гостиную, она же спальня. Для русского человека такой вариант непривычен, однако заказчики часто бывают в штатах и такой вариант расположения их устраивает. Неудобств не испытывают. Вообще, они открытые, позитивные люди, к которым можно зайти в гости, если находишься недалеко.



Т.к. комната является спальней, решили использовать кровать-трансформер. Складываем кровать, двигаем диван и получается нормальная гостиная. Как сказала хозяйка: "Кровать-шкаф это вещь". Для зонирования спальни от гостиной есть стеклянная перегородка. Ей хозяева пользуются редко. Когда хозяйка сидит с подружками на кухне, а мужу надо отдохнуть. Кому интереснее про стеклянную перегородку, есть отдельный пост тык


В прихожей нет зеркала, зато есть до безобразия крутая раздвижная зеркальная дверь инвизибл. Оч крутая дверь, она как будто плывет по воздуху.


подсветочка в кордиоре

ну и сама входная группа. Кстати входная дверь тоже визуально интересная

с зеркалом тут недоработка. Оно должно было быть красным, но в наличии было только белое, поэтому рядом встал красный горшок из икеи


Гардеробная. Сама гардеробная как гардеробная, ничего интересного, а вот дверь в нее стоит инвизибл под покраску. Сейчас такие двери стали популярны. С ними нет сложностей в установке и эксплуатации, их не надо бояться



Кстати, в этой квартире и остальные двери в скрытом коробе (без наличников и доборов) и высота у них 2,3 метра. Если есть возможность увеличить высоту дверного проема - увеличивайте не задумываясь, такие двери всегда смотрятся круто

Рядом с гардеробной есть хоз шкаф со встроенной гладильной доской. Удобная опция, с утра маечку прогладить


Пошли на кухню.
Сначала покажу 3д картинку, т.к. кухня еще не собрана до конца. Заказали у частника, в целях экономии, вот уже год с ним воюют

А теперь фотки
Возле окна стол со стульями - вечером, с подсветкой получается очень уютный уголок. Вот, кстати, тут видно работу с цветом. На фоне темно-коричневого кирпича (теплого цвета), холодные пыльно-синие шторы, на полу белая плитка под мрамор и теплый ламинат. Интерьер построен на контрастах и смотрится эфектно




Вертикальный радиатор отопления тоже интересная деталь. Не разорились хозяева на черный (он стоил дороже), а жаль


Ну и моя любимая графичная стена. Это обои, фартук прозрачное стекло. Когда на него встанет оранжевый шкафчик, будет шикардос


обращу внимание на зеркальный цоколь на кухне, люблю его. Создает эффект парящей кухни.
Стена с телеком в брутальном кирпиче, который смягчается уютными шторами

Отдельным постом идет ванная тык и детская тык
Вот такая классная и неординарная квартира получилась. Хочу сказать спасибо заказчикам, которые слушали меня и не сомневались в предложенных решениях.
Ну и по мелочи, интересности
розетки с usb выходом - удобная штука, которую оценят все

трековые светильники, вместо обычных встроенных лампочек


на полу виниловый ламинат, который не боится влаги. Писали тут, что он продавливается, в одном из проектов он лежит уже второй год - с ним все хорошо. Возможно, зависит от производителя. Укладываем не самый дешевый винил, ценник у него 2200 руб за кв м - вот с ним проблем нет

Тоже кондей над входной дверью