Бюджетный проект евродвушки.
Авторские проекты дизайнеров.(Посты не по теме будут удаляться!)Обычно выкладываю проекты "не для всех". Этот проект другой случай.
На примере него хочу показать, что даже с ограниченным бюджетом, без дизайнерских изощрений можно сделать стильную квартиру.
Дано - однокомнатная квартира (евродвушка), площадью 45 кв м для семьи с ребенком.

Думаю, многие обратят внимание, что нет детской зоны (даже детской кровати нет). Сразу уточню: ремонт выполнен с расчетом на продажу квартиры в скором времени, чтобы расшириться. Не стояла задача зонировать комнату, выделить место для ребенка. Сейчас ребенку уже 2 года - спит с мамой в спальне, папу отправляют в гостиную. Ну и основное место для игр тоже в гостиной - столик, игрушки в комоде.
Также, отмечу, что бюджет прям ограничен был. Все материалы куплены в масс маркете (твой дом, леруа мерлен, оби). Мебель - Икея. В спальне кровать от Асконы (из самой недорогой их серии). Кухня от Стильных кухонь.
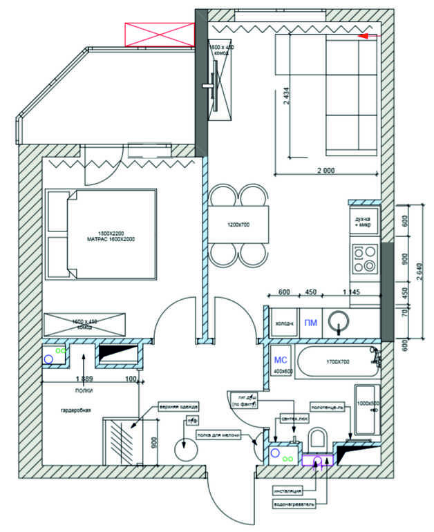
План квартиры

Хорошая планировка, с двумя стояками. Планировку не меняли - как застройщик указал стены, так и сделали. Единственное, вытянула перегородки, чтобы вписать кухонный гарнитур в стены.
Коридор
Просторный коридор, с кучей дверей ) На стенах обои под штукатурку.
В прихожей зоне нет плитки - везде уложен ламинат. Качественный ламинат можно укладывать и в прихожей и на кухне - проблем с ним нет.
Проход в гардеробную перекрыт дверями - купе. Отодвигаешь одну створку - место для верхней одежды. Открываешь другую - заходишь в гардеробную. Хороший вариант, с точки зрения эстетики + реальная экономия на дверях. Кстати, внутрянку гардеробной сделал глава семейства: материалы куплены в ОБИ.



гардеробная


Гостиная
Выбор материалов отталкивался от кухни. Т.к. надо было сэкономить - кухонный гарнитур с белыми гладкими пленочными фасадами.
Бежево-серо-белую гамму оттенила сочными фиолетовыми обоями (баклажанными). На их фоне кухонный гарнитур заиграл. Плюс холодный оттенок создает контраст с теплыми серо-бежевыми цветами. А интерьеры, построенные на контрасте всегда смотрятся интересно.



Ну и сам кухонный гарнитур. Да, вытяжку весит высоко - так получилось.


Обратите внимание на фартук - он выполнен из крупноформатной плитки. У нас осталась вскрытая коробка плитки с ванны и решили мы, что не надо ей пропадать. Плитка цвета айвори (кухня белая), чтобы завязать эти два цвета добавила вставку из дорогущей мозаики. Кстати, хороший прием, чтобы недорогой отделочный материал смотрелся на 110 %

это дорогая мозаика из натурального камня и стекла. Ценник у нее около 10 тыс за кв м, но т.к. ее можно распустить, нам хватило 3 штуки и обошлась эта красота всего в 3 тыс руб
Обои декоративные поближе + двери покажу. Двери недорогие, всем известные профиль дорс.

Ванная комната
По ней есть отдельный пост
В данном случае выбор был ограничен. В выделенном бюджете понравилась заказчице только эта плитка. Подумали, обсудили, взвесили все за и против и решилась она на темную плитку в ванной. Да, она темно-серая, да, на ней остаются разводы после принятия ванны. Я бы себе никогда так не сделала, ибо не педантичный я человек. Выход оказался прост - после водных процедур скребком сгоняет воду с плитки. На это действие уходит 30 секунд и не вызывает проблем у хозяев. Мужа тоже приучила. Зато, как говорит заказчица, в ванной всегда чисто.



сама по себе плитка здоровская. Особенно рельефная которая (пупырки ее называем). Прям так и тянет их потрогать. И, кстати, уложили ее по-вертикали - так визуально помещение вытягивается.
Спальня
Как всегда, заказчики хотят уютныю спальню в бежевых оттенках. И да, она в бежевых оттенках, но с добавлением мятного цвета. Благодаря этому цвету (да и любым другим в этой бирюзово-голубой гамме) в маленьких комнатах ощутимо можно прибавить воздуха.



За кроватью хорошие, орнаментальные обои, которые не требуют дополнительного декора.
Ну и балкон. Вот на нем бюджет закончился. Но, надо его делать. Если балкон не сделать сразу - после до него руки никогда не доходят. Затянули пояса, у родственников денег заняли - сделали.
Тут все просто, но опрятно. Утеплили пол (керамзитом), на пол положили недорогой ламинат (из остатков купили). Поменяли окна, покрасили красный кирпич от застройщика в белый цвет.


Другая сторона балкона не сфоткана - сушилка там висит) почти всегда с вещами 😁
Ну вот и все. Получилась аккуратная, стильная квартира. На мой взгляд хороший вариант, если не знаешь чего хочешь. Да и продавать/сдавать квартиру с таким ремонтом будет легко.