Бюджетный проект, работа в параллель с бригадой.
Моя работаБыл и вот такой у меня проект.
Всегда сложно работать ,когда помимо строго ограниченного бюджета ,еще и строго ограничены во времени, и когда работу нужно было сделать еще вчера... И было много сомнений, спешка, нестыковки, сложности в принятии решений. Но все же, работа нам удалась.
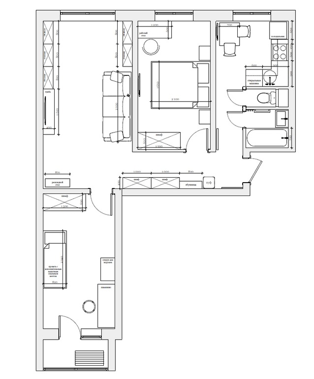
Дано: квартира в Подмосковье, для пожилых родителей, к которым будут приезжать маленькие внуки периодически в гости. Родители продали жилье в другом городе и приехали поближе к детям. Люди старой закалки, строго убеждены были с том, что дизайнер - это шарлатан и без него можно отлично справиться, потому все взаимодействие было через вторые руки) Это тоже значительно усложняет, обычно, работу. Все должно быть в квартире максимально спокойным ,бежевым с допустимо легкими цветовыми пятнами, недорогим, никаких материалов под заказ ,все только из наличия.

С санузлами определились довольно быстро, раскладка плитки конечно очень традиционная. Но на такой площади вообще ооочень сложно развернуться...





Гостевая комната для деток с кушеткой (деток двое, мальчики - близнецы, 3 года). Пианино - необходимо ,избавиться от него нельзя. Комната узкая, тесная, с балконом в торце ,темная, старались сделать ее максимально светлой и не загруженной. Но белую мебель хозяйка не хотела категорически.




В гостиной основным требованием было - много стеллажей под книги ,у родителей огромная библиотека. Тут было сложно ,мы перепробовали массу вариантов.

Еще ооочень просили вписать ковер, но он больше свободного пространства комнаты. В итоге решили ,что лучше без него.

Столик хотели другой сначала, но нужен был именно большой, раскладной стол. Остановились на этой модели.




С кухней было больше всего сложностей. Как всегда и бывает ,когда переезжаешь из жилья намного больше...
Плитка вот эта запала в душу, ноооо увы и ах ,ее мы не нашли в наличии. И потом все, все разрушилось ,было очень сложно выбрать альтернативу.


На белую кухню пришлось все же пойти ,потому что темная на такой площади - это мрак.










Со спальней тоже было очень сложно. Пробовали выбрать интересные обои, но ничего не понравилось хозяйке, пришлось остановиться на нейтральном варианте.





За что нас вообще упаковывают в такие площади?((

ковер- чудо!)))