Квартира для двух
Авторские проекты дизайнеров.(Посты не по теме будут удаляться!)Всем доброго утра, давно не писала.
Хочу выложить проект,который делала не так давно для семейной пары в зрелом возрасте.

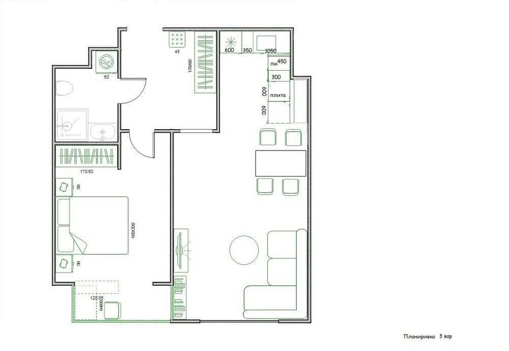
это квартира студия ,евродвушка.
Заказчики очень хотели сейчас модный мрамор и молдинги ,которые мы внесли в проект.
Ванна получилась мраморная,хотя мне хотелось разбавить декором. Заказчикам так больше понравилось.




Заказчик все хотел в холодных тонах, жене же хотелось теплого, мы следовали этой идее в разумных пределах)



В спальне мы совместили балкон с комнатой

Занавеска при желании может закрывать пространство стола от зоны спальни,сделали длинный карниз.


у окна есть небольшой стол чтобы поработать на ноуте.

Спасибо всем за внимание)
хорошего дня, буду рада поработать с новыми проектами.
До 10 апреля действует скидка 14 %
Лучший ответ
Nat
Мне оч нравится идея рабочего уголка, в небольшой квартире это немного уединения, это важно! Но стиль актового зала (эти шторы и люстры) бррр! Я так понимаю, это вкус заказчика. Средняя обезличенная гостиница.
02.04.2021
Ответить
Joy
Скажите, а батарея только в спальне? На балконе нет теплого пола? Тоже хочу обьединить балкон со спальней.
03.04.2021
Ответить
Лана
Мне очень понравилось , стильно и уютно , многие кто критикует не понимает видимо , что у заказчика и дизайнера разные вкусы и не всегда заказчик полагается на вкус дизайнера
03.04.2021
Ответить
Алла Арт терапевт психолог
Sanja, Добрый день, сейчас можно заказать от 1200 р за 1 кв, но нужно смотреть метражу, пишите мне 89031356109 вотсап если заинтересованы
03.04.2021
Ответить