Квартира 133 м2 в классическом стиле в ЖК Дыхание
Авторские проекты дизайнеров.(Посты не по теме будут удаляться!)
Проект создавался для зрелой семейной пары. В квартире они планируют проживать одни, дети и внуки выросли и живут отдельно. Заказчики хотели видеть статусный, классический интерьер в светлых, пастельных тонах, без ярких цветовых акцентов
Пожелания заказчика к планировке включали в себя наличие обеденной зоны в гостиной для шумных семейных праздников. На кухне должно быть много места для приготовления еды, заказчица очень любит готовить. В квартире должно расположится две спальни. Одна хозяйская, вторая для гостей. Принципиально было наличие рабочего кабинета.
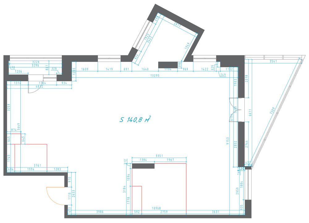
Заказчиков устраивала планировка, предложенная застройщиком, по этому сильно я ее не менял. Лишь перенес вход в гостиную в центр комнаты. Это решение позволило разбить гостиную на две равные по площади зоны. На одной половине расположился большой обеденный стол, а на второй большой диван и комфортное кресло. Пройдя транзитом, между этими зонами можно свободно попасть в кабинет. Для него была выделена самая маленькая комната с неправильной геометрией стен. Ее я обыграл большим книжным шкафом во всю стену, а письменный стол расположился лицом ко входу, чтобы сидящий за столом человек мог видеть всех кто входит к нему в кабинет.
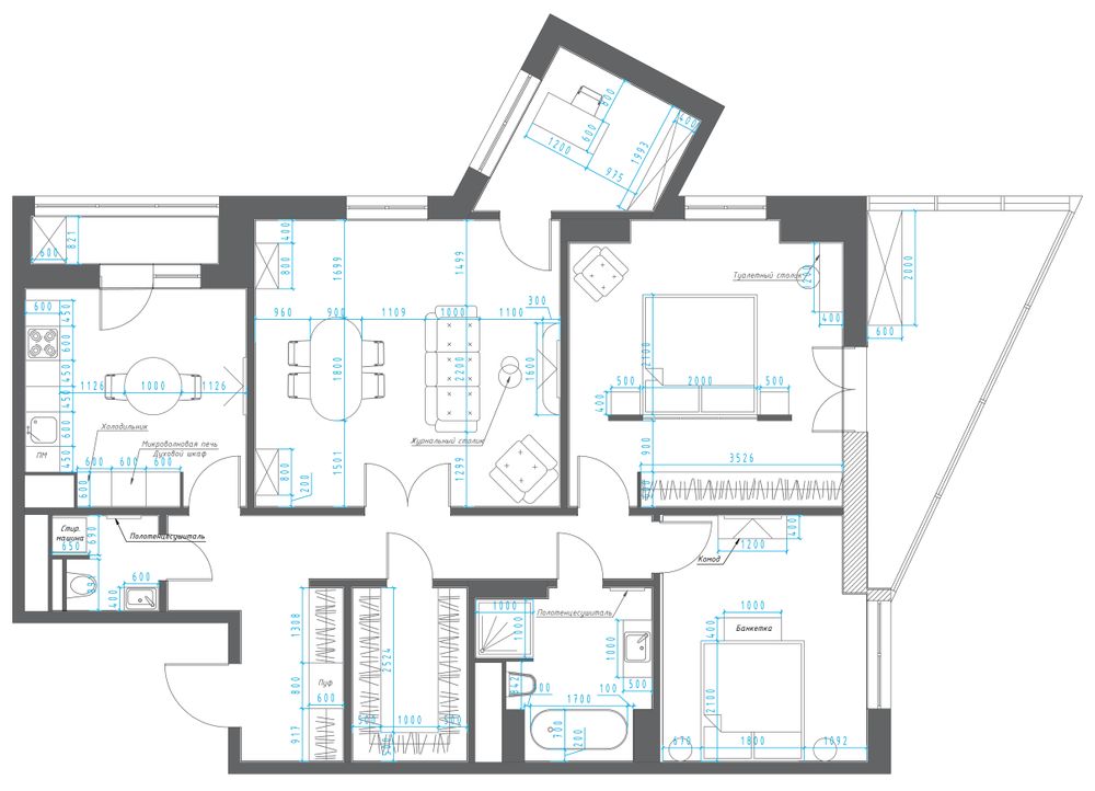
Кухня расположилась линейно, так заказчице во время готовки придется меньше перемещаться по кухне. Холодильник, микроволновую печь и духовой шкаф вынесены в отдельный блок и размещены слева от входа на кухню. Такое решение позволило максимально увеличить рабочую зону кухонной столешницы.
Самое необычное планировочное решение получилось в хозяйской спальне. Из-за того, что в этой комнате два окна, оставалась всего одна стена у которой было возможно поставить кровать, но тогда она оказывалась прямо напротив входа. Поэтому было принято решение разместить кровать по центру комнаты. Чтобы это решение не выглядело сильно странным, за изголовьем кровати сделана декоративная перегородку из колонн, облицованных зеркалами и декоративных панелей из стекла с матовым рисунком.

Прихожая, коридор.
Для отделки этих помещений, как и всей квартиры в целом был выбран светло-сливочный оттенок. Он отлично гармонирует с золотистым цветом инженерной доски и благородным белым керамогранитом под мрамор. Золотые элементы в мебели и декоре наряду с рельефной лепниной придают интерьеру парадный, статусный вид.
Шкафа в прихожей у нас получился с секретом. Стена, вдоль которой стоит шкаф длиннее, чем стена с входной дверью. Для того чтобы сформировать прихожую правильной, прямоугольной формы фасады шкафа разбили на две части. Белые фасады с фаской сделаны по размеру стены с входной дверью, а фасад, выходящий за пределы стены, сделаны рифленым и покрашены в цвет стены. Такое решение создало визуальную иллюзию, что шкаф заканчивается там, где заканчивается белый фасад, а дальше идет стена, относящаяся к коридору.
Центром внимания в коридоре стало декоративное панно в виде двух окружностей. Они сделаны из гипсокартона. Маленькую окружность отделали золотой поталью, а на большую наклеили фреску. Дополнительно в большую окружность встроена диодная подсветка. Она загорается если кто-то заходит в коридор и выполняет роль ночной подсветки.
Не забыли мы и об инженерии. Все электрические щиты и WI-FI роутер расположились в шкафу в прихожей. Шкаф с гребенками для радиаторов расположили в гардеробной.





Гостиная.
Интерьер гостиной построен по строгим классическим канонам. Общую площадь гостиной разбита на две равные по площади зоны: столовую и диванную. По середине комнаты оставлен проход к кабинету. Весь интерьер выстроен симметрично по центральной оси.
Диванная и столовая зона выделена классическими хрустальными люстрами, элегантно сочетающимися с современными трековыми светильниками.
Не обошлось и без конструктивных сложностей. Вдоль стены с окном проходила монолитная, несущая балка. Что бы ее скрыть и сделать нишу под шторы, при помощи декоративной лепнины был сделан фриз, с его помощью была скрыта балка и ниша под шторы. Фриз я пропустили по периметру всей комнаты.




Кухня.
В интерьере кухни объединились изысканный дизайн с продуманным функционалом. Хозяйка любит готовить, и ей было важно иметь большую зону готовки на кухне.
Я разделил кухонный фронт на две части. Модули с бытовой техникой расположился отдельно от основного кухонного фронта. Такое решение позволило сделать максимально большую поверхность для готовки, при этом, не ухудшая эргономику всей кухни.





Хозяйская спальня.
Интерьер спальни привлекает своей нестандартной планировкой. Из-за того, что выход на балкон и окно располагались на разных стенах, у нас оставалась одна стена, у которой можно расположить кровать. Но в этом случае кровать располагалась напротив входа, что само по себе не очень правильно. Да и каждый раз, готовясь ко сну, обходить кровать не очень удобно. Поэтому, я предложил заказчикам расположить кровать по центру комнаты.
Чтобы кровать по центру комнаты не смотрелась одиноко и странно, была предусмотрена декоративная перегородка. По бокам от кровати возведены пилоны, облицованные зеркалами. На них разместились блоки прикроватных розеток и выключателей. Такое решение с одной стороны позволило их визуально облегчить, а с другой стороны, одеваясь в спальне можно посмотреть на себя в полный рост. За изголовьем кровати расположились стеклянные панели с матовым рисунком. С их помощью зона спальни стала обособленной и не создается впечатления, что кровать стоит на проходе.






Гостевая спальня.
Лаконичный, изысканный интерьер, в мягкой цветовой гамме, располагает к приятному отдыху. В интерьере этой спальни продолжена общая стилистику всей квартиры. Изголовье кровати оформлено рельефными 3д панелями, напоминающих рисунок классических каннелюр. Зеркало в изящной раме перекликается с воздушной, хрустальной люстрой и бра. Прикроватные тумбы гармонично дополняют эффектный золотистый комод. В изножье кровати предусмотрена банкетка, на которую можно сложить вещи перед сном.



Кабинет.
Неправильная геометрия стен кабинета была обыграна гармоничной планировкой. Большая библиотека напротив окна придала кабинету более правильную прямоугольную форму. Стол расположился лицом к входу, что бы сидящий за столом человек, вдел всех кто заходит в кабинет. Триптих с классическим античным сюжетом стал центром композиции всего кабинета. Своим античным, классическим сюжетом он сразу дает понять, что кабинет принадлежит серьезному, деловому человеку.



Санузлы.
Чтобы подчеркнуть индивидуальность и изысканность всего интерьера для каждого санузла было разработано свое уникальное решение. В маленьком санузле из короба под инсталляцию была сделана ниша с подсветкой в которой установлена авторская скульптура. В большом санузле акцентом стал барельеф в виде тропических листьев. Его дополнительно подсвечивает диодная лента, что придает ему еще больше объема и выразительности.
Помимо эстетики не забыт и функционал. У ванной и в зоне душевой были предусмотрены ниши с полками, на которых можно разместить все необходимые шампуни и гели.






