Стильная квартира для молодой семьи
Авторские проекты дизайнеров.(Посты не по теме будут удаляться!)
Проект создавался для молодой семейной пары с сыном начального школьного возраста. Заказчики молодые, энергичные люди, готовые к смелым, не стандартным решениям. Они хотели яркий, запоминающийся интерьер с обилием авторских решений.
Пожелания заказчика к планировке включали в себя наличие отдельных спален для родителей и ребенка. Они хотели большую кухню гостиную в которой можно собираться всей семьей и устраивать семейные праздники. Обязательно в каждой комнате нужно было предусмотреть большое количество мест хранения и отдельную, большую гардеробную.
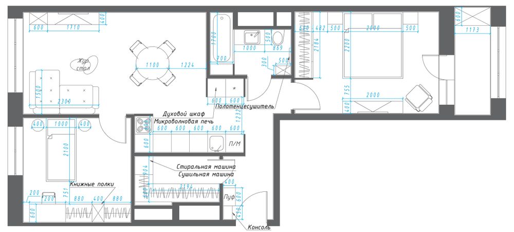
Изначально у заказчиков была двух комнатная квартира с кухней 12 м2. Сделать из нее полноценную кухню гостиную с обеденным столом и диваном было не возможно. Мы предложили объединить гостиную с коридором и на месте коридора организовать кухню нишу. Помещение кухни было решено сделать детской. Маленький санузел объединили с гардеробной. Это позволило организовать большую гардеробную, в которой мы разместили стиральную и сушильную машину.

Прихожая.
Лаконичны дизайн и сдержанная цветовая палитра встречают нас на входе в квартиру. Не смотря на не большую площадь, мне удалось наполнить эту прихожую всем необходимым функционалом. Слева от входа разместилась не большая консоль, на которую можно положить ключи, мягкий пуф, на котором можно с удобством раздеться. Напротив разместилось большое зеркало, в которое удобно посмотреться перед выходом из квартиры. Чтобы не захламлять прихожую заказчики отказались от открытых вешалок. Всю верхнюю одежду и обувь они планируют хранить в гардеробной.



Кухня гостиная.
Смелое сочетание классической лепнины и современных 3д панелей делают интерьер не обычным и передают энергичный дух молодой семьи. Яркий зеленый диван вместе с терракотовыми стульями добавляют нотку свежести и задают интерьеру праздничную атмосферу. Контрастные элементы темного дерева оттеняют пастельные тона интерьера, передовая ему яркости и контраста.
Функционально помещение разделено на три зоны: кухню, столовую и диванную. Кухню я спрятал в нише, таким образом, что человек, сидя на диване, ее не видит. Для каждой зоны было придумано свое акцентное решение. Зону гостиной выделяют 3д панелями, а для столовой зоны придумано авторское панно из лепнины.





Спальня.
Игра классики и современности продолжается и в спальне. Классическая, хрустальная люстра элегантно сочетается с современными трековыми светильниками и перекликается с рифлеными фасадами шкафа. Классическое авторское панно из лепнины гармонично сочетается с современными 3д панелями.
Несомненно, изюминкой всего интерьера стала кровать. Она притягивает к себе внимание, а ее глубокий бордовый цвет придает интерьеру благородства и роскоши.





Детская.
Нежные, не навязчивые персиковые и песочные оттенки придают детской атмосферу тепла и уюта. Причудливые бра в виде обезьянок, не обычные полукруглые формы шкафа и кровати погружают в мир детства, создавая волшебный, сказочный антураж.
Грамотная планировка позволила мне организовать не только спальное, рабочее место и места хранения, но и оставить пространство для игр.




Санузел.
К оформлению санузла я подошел не стандартно. Его хотелось сделать камерным и теплым. Для стен подобран керамогранит под мрамор с крупным, золотистым рисунком, потолок и верхняя часть стен покрашена в кофейный цвет. Такое сочетание придает интерьеру обволакивающую, теплую атмосферу. Лоска добавляют элементы матового золота в мебели и аксессуарах.



Больше проектов можно увидеть на моем сайте
Лучший ответ