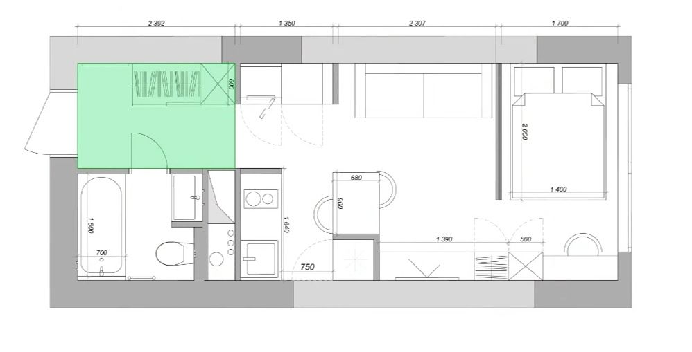
Планировка микро студии
Вопросы и ответыПрошу помощи в выборе планировки. Будет малюська студия. 23,5 метра.
Квартиру планирую вначале сдавать, потом для сына. Хочу сделать хорошо. Именно в плане продумывания мест хранения, удобства. Конечно на такой площади это сложно, но нашла два варианта в интернете, понравились оба. Как вы думаете, что удобнее? Здесь квартиры зеркальные, но суть однаодна.
Вариант 1.
Вариант 2.
Лучший ответ
selena1002
Анна, добрый день! Мне довелось делать проект в аналогичном помещении. Может пригодится).
12.08.2022
Ответить
selena1002
Анна, спасибо! Так можно кухню сделать более протяженной и место экономится).
12.08.2022
Ответить
Евгения Акимова ПРО Дизайнер
selena1002, а у вас было 2 стояка? или насос тянули?
20.08.2022
Ответить
selena1002
Евгения, добрый день! Стояк был один и никакого насоса не ставили. Там расстояния-то). У меня был проект, там и на большее расстояние не ставили насос. Правда, тянули по прямой. Если кидать трассу радиусом, то насос не нужен, главное - избегать прямых углов.
20.08.2022
Ответить
Евгения Акимова ПРО Дизайнер
selena1002, Добрый ) То есть просто под полом провели канализацию? без уклона, да?
20.08.2022
Ответить
selena1002
Евгения, да, главное - радиус побольше сделать. А Вам не приходилось раньше такое делать?
20.08.2022
Ответить
Евгения Акимова ПРО Дизайнер
selena1002, неа )) так никогда не делала, поэтому и решила спросить ))) в 95% ставим по той же стороне, что и стояк. Пару раз был насос. Но вообще без него ни разу. Не следите за объектом? Не было жалоб?
20.08.2022
Ответить
selena1002
Женя, никаких нареканий не было, это не первый мой объект с "далеким" расположением водорозеток от стояка. Я знаю общую тенденцию лепить все рядом с саншкафом - как бы чего не вышло((. Если интересно, пишите мне на почту, покажу - расскажу)) astella11@yandex.ru
20.08.2022
Ответить
Nelli
Мне во втором нравится входная зона, если мало мест хранения можно типа антресоли (как верхние кухонные шкафы) повесить по одной из стен под самый потолок.
В 1 варианте нравится кухня, кажется что так больше приватности.
Что НЕ нравится в обоих вариантах - и кровать и диван. Это лишнее. Поверьте человеку 10 лет прожившему в студии)))) на хорошем диване отлично спать)))
Лучше шкаф добавить или рабочий стол
11.08.2022
Ответить
Анна
Nelli, ещё есть вариант - откидная кровать трансформер. Типа диван, а на него такая кровать опускается. Но у нас такая кочующая семья . Мы то тут, то там... Я вот думаю а вдруг я в гости приеду, или там к сыну в гости кто придёт... Да и вроде как всё по зонам. Ладно, подумаю.
11.08.2022
Ответить
Ася
В первом очень мало мест для хранения и катастрофически неудобный подход к кровати. Там ниша 1700, Кровать 1400(это только матрас), так она в лучшем случае 1500, по 10 см с каждой стороны)) т.е. нужно залезать только через ноги. Ну это ок в 10 лет, но взрослому это не удобно. 2-х метровый диван. Зачем? Есть Диваны отличные по 160см. Даже раскладные. Окно перекрывается полностью в 1 варианте. Я за 2 вариант. Он как-то эргономичнее, больше мест для хранения и больше пространства остаётся.
11.08.2022
Ответить
Анна
Ася, спасибо. Я пока больше за первый вариант. Мне нравится как сделана кухня. Я думаю, что подвигаю перегородки и конечно поиграю с размерами диванов, тумб, шкафов.
11.08.2022
Ответить
Ася
Анна, ну тут надо брать 2 примера и делать однозначно 3й, потому что у обоих я вижу недостатки. В 1 варианте стиралка в коридоре. Как туда воду подвести? Оптимизируйте под себя.
11.08.2022
Ответить
Анна
Ася, стиралку точно убираю в ванную комнату, и там будет душ, а не ванна. Место позволяет. Да, так и получится, микс))))
11.08.2022
Ответить
-Night-
Мне кажется, и диван, и кровать на такой площади - это роскошь! Может удобный диван-кровать, или кровать, выпадающую из шкафа?
11.08.2022
Ответить
Анна
-Night-, а я наоборот хочу и диван и кровать. Я то в гости планирую наведываться 🤣. Но вариант с диваном - кроватью тоже рассматриваю.
В целом , на ютьюбе есть ролики с ремонтами с этих планировок. Очень достойно и функционально.
11.08.2022
Ответить
-Night-
Анна,
говорю по своему опыту, в комнату 20 метров поставили кровать и диван - и это уже тесновато, а у вас всего 23,5...
Если это квартира на одного, то можно уменьшить кровать до 100 или 120 шириной, и диван с 2 метров до 1,4, например.
11.08.2022
Ответить
Анна
-Night-, а если я сюда ссылки ютьюб пришлю с этими ремонтами, это разрешается?
11.08.2022
Ответить
Маринка
Я бы дорабатывала первый вариант, но соглашусь с большинством, и кровать и диван это роскошь в такой маленькой квартире. И перегородки эти.. Такая квартира для одного человека или молодой пары, от кого отгораживаться?
11.08.2022
Ответить
Наталья
1. Я бы стеклянную перегородку в спальне сделала, чтобы был свет, когда нет гостей.
2. Хранение мне больше нравится во второй, а обеденная зона - в первом.
11.08.2022
Ответить
Анна
Наталья (дизайнер интерьера), а вы видео посмотрели? Я чуть ниже прикрепила ссылки?
Полностью перегородки стеклянная очень дорого получается. Там частичное зонирование стеклом
11.08.2022
Ответить
Elenа22
У дочек студии по 30 м и с кроватью очень тесно получалось,в итоге диван полноценный,вокруг шкафы под потолок
11.08.2022
Ответить
Анна
За второй и убрать все лишние стены, кроме как за кроватью. Поставить там лёгкую перегородку из балок например. В СУ унитаз развернуть. В первом варианте нагромождение стен и мебели, узкие проходы.
11.08.2022
Ответить
Анна
Анна, спасибо. Вот иногда что то нравится и уже не видишь минусов. Сейчас со стороны подсказали на минусы планировок и уже понимаю, что надо учесть.
11.08.2022
Ответить
Оставшиеся комментарии доступны после регистрации
Зарегистрируйтесь и получите полный доступ ко всем функциям сайта.