Перепланировка смущает.
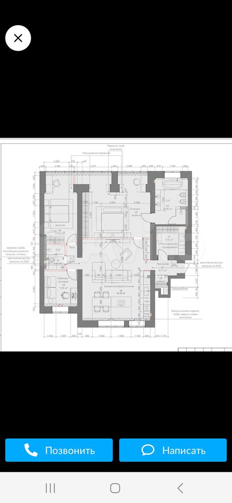
Перепланировки стен. Согласование перепланировки квартир и нежилых помещений.Присмотрела квартиру на 2м этаже, созвонились, уточнила, что были объединены 4х и 1х комнатные 17лет назад, документы есть якобы, числится сейчас как одна квартира 120кв м. В настоящий момент делают ремонт к продаже , вот проект
Нашла в этом же доме в продаже 4х
Вот смотрю на новый проект и не пойму, мне кажется или действительно не хватает несущих стен. Дом кирпичный 1985г 9этажка. Цена заманчивая
Анила
ЙаНеЛеди, документы ещё не видели, надо ехать смотреть квартиру потом документы, так онлайн не готовы они отправлять.
29.04.2024
Ответить
Анила
Фаина, а как же эта стена, вернее её отсутствие. И выход на балкон, они частично убрали несущие
https://imgbb.ru/frontend/posts/comments/2024-04-29/gdlppeqiecdm0pqvvapy7295wyhng1at1hy.jpg" alt="Изображение">
29.04.2024
Ответить
Фаина
Анила, все, поняла. Стену нужно проверить. Если есть документы на перепланировку, там должны быть указаны компенсационные меры.
Документов на объединение балкона вы не увидите никогда, такое не согласовывать в принуипе. Нужно смотреть в реале, насколько картинка отличается от реальности. Езжайте, смотрите квартиру, потом будете думать. Чего бежать впереди паровоза.
29.04.2024
Ответить
Юлия
Найдите хорошего агента по недвижимости или юриста, пусть все проверит . Законность, наличие разрешений, согласований и тд. Незаконная перепланировка очень дорогое удовольствие
29.04.2024
Ответить